Locale Commerciale Massarosa
€ 690.000
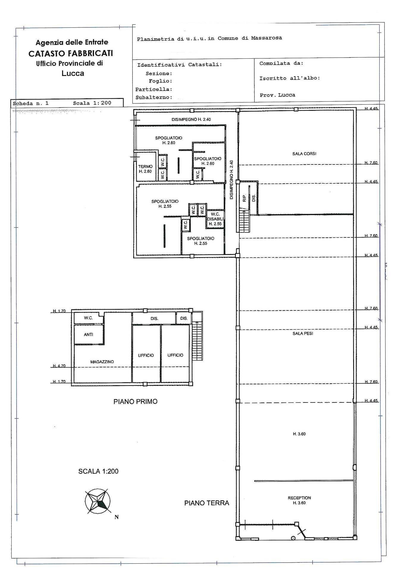
Massarosa, Bozzano, Vani 10, in zona di forte passaggio, storico locale, adibito attualmente a palestra, di 830 mq su 2 livelli e già locato con un ottima rendita, composto da : ingresso, ampia sala pesi, sala corsi, spogliatoi privati e pubblici, sala massaggi, ufficio, deposito e 7 bagni. Ampio parcheggio intorno all'immobile ! Da vedere ! La nostra missione è offrire unesperienza personalizzata e di qualità per ogni cliente, accompagnandolo in tutte le fasi della compravendita immobiliare. Conosciamo profondamente il territorio e ci impegniamo a comprendere le esigenze uniche di chi si rivolge a noi, lavorando con trasparenza e passione per creare un rapporto di fiducia duraturo. Puntiamo a migliorare costantemente i nostri servizi per essere un punto di riferimento locale affidabile e competente.
Dati principali
| Riferimento | 82260 |
| Data annuncio | 15/05/2025 |
| Contratto | Vendita |
| Tipologia | Locale Commerciale |
| Superficie | 830 m2 |
| Locali | più di 5 (10 altro), 7 bagni |
| Occupato | Occupato da Proprietario |
| Arredamento | Parziale |
Caratteristiche
Costi
| Prezzo | 690.000 € |
| Prezzo al m2 | 831 €/m2 |
Efficienza energetica
| Stato | Ottimo |
| Tipo Impianto Di Riscaldamento | ad aria |
| Tipo Alimentazione Riscaldamento | Elettrico |
| Classe energetica | E |
| Indice di prestazione energetica (IPE) | - |
Planimetrie
Indirizzo e mappa
Massarosa
Annuncio senza mappa,
prova a chiedere la posizione all'inserzionista
prova a chiedere la posizione all'inserzionista
Calcolo mutuo
Prezzo di vendita:
Anticipo
20,00
Mutuo
80,00
Tasso: -+
Rata: 1.973 al mese
I risultati sono una stima indicativa basata sui dati inseriti e non costituiscono un’offerta finanziaria.
Inserzionista

Studiozero24 Viareggio
Corso Garibaldi 92, Viareggio
Mostra Telefono
Mostra Cellulare
Chiama
CONTATTA

