Appartamento a Venezia de la Testa 6363, Venezia
€ 960.000
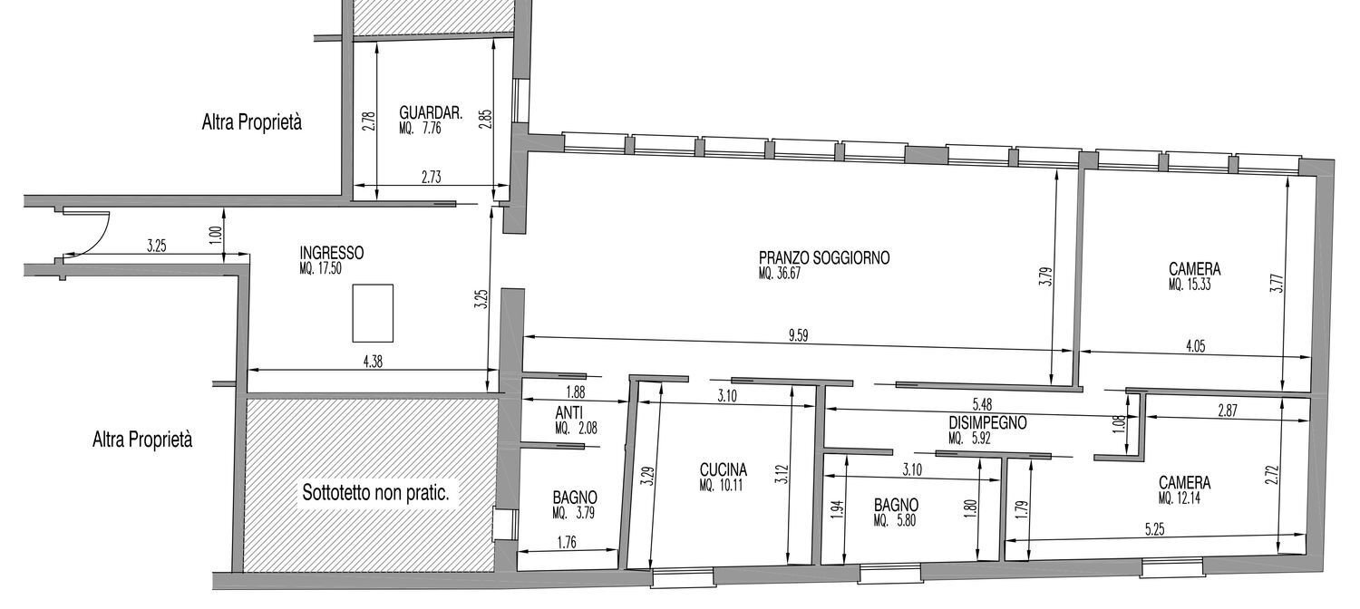
Venezia, sestiere di Cannaregio appartamento al piano ultimo completamente restaurato a nuovo, mai abitato da arredare con buone finiture in contesto di palazzo d'epoca, dotato di ascensore e magazzino esclusivo la piano terra, parti comuni in ottimo stato. Ingresso soggiorno/pranzo ampiamente finestrato con bella vista verso la chiesa di Santi Giovanni e Paolo, cucina, due camere, due bagni, altra stanza studio/guardaroba. pavimento in parquet, infissi in legno, bagno in marmo, mansarda con travatura a vista. tutte le certificazioni degli impianti compresa l'agibilità e la dotazione di fosse settiche. impianto di riscaldamento a pavimento, aria condizionata L'immobile è inserito in un contesto di palazzo storico nel quale sono stati fatti lavori di radicale restauro comprese le parti comuni ricavando appartamenti posti ai piani primo, secondo, terzo e quarto. Ascensore comune interno e magazzini esclusivi per ogni unità. La zona di Cannaregio nei pressi dell'ospedale Santi Giovanni e Paolo è comoda ai servizi anche di trasporto, a 10 minuti a piede dal Ponte di Rialto, 15/20 minuti da Piazza San Marco, il contesto dove è ubicato l'immobile è in una calle di passaggio con poco afflusso turistico. ulteriori informazioni telefoniche oppure via mail scrivendo al nostro indirizzo Ulteriori unità immobiliari in vendita sullo stesso stabile con metrature e prezzi differenti, se interessati contattateci oppure visitate il nostro sito.
Dati principali
| Riferimento | cn20230926SAN |
| Data annuncio | 15/05/2025 |
| Contratto | Vendita |
| Tipologia | Appartamento |
| Superficie | 140 m2 |
| Locali | 5 (3 camere da letto, 2 altro), 2 bagni, cucina abitabile |
| Piano | 4 di 4 totali |
| Tipo di costruzione | Media |
| Arredamento | Assente |
Caratteristiche
Costi
| Prezzo | 960.000 € |
| Prezzo al m2 | 6.857 €/m2 |
Efficienza energetica
| Stato | Parzialmente ristrutturato |
| Riscaldamento | Autonomo |
| Tipo Impianto Di Riscaldamento | a pavimento |
| Classe energetica | G |
| Indice di prestazione energetica (IPE) | 327 kWh/m2 anno |
Planimetrie
Indirizzo e mappa
a Venezia de la Testa
6363, Venezia
Annuncio senza mappa,
prova a chiedere la posizione all'inserzionista
prova a chiedere la posizione all'inserzionista
Calcolo mutuo
Prezzo di vendita:
Anticipo
20,00
Mutuo
80,00
Tasso: -+
Rata: 2.746 al mese
I risultati sono una stima indicativa basata sui dati inseriti e non costituiscono un’offerta finanziaria.
Inserzionista

Vetrina Affari intermediazioni immobiliari
castello 5847, Venezia
Mostra Cellulare
Vetrina Affari Intermediazioni Immobiliari
Mostra Telefono
Chiama
CONTATTA

