Magazzino via dei Carpentieri 5, Camaiore
€ 1.300.000
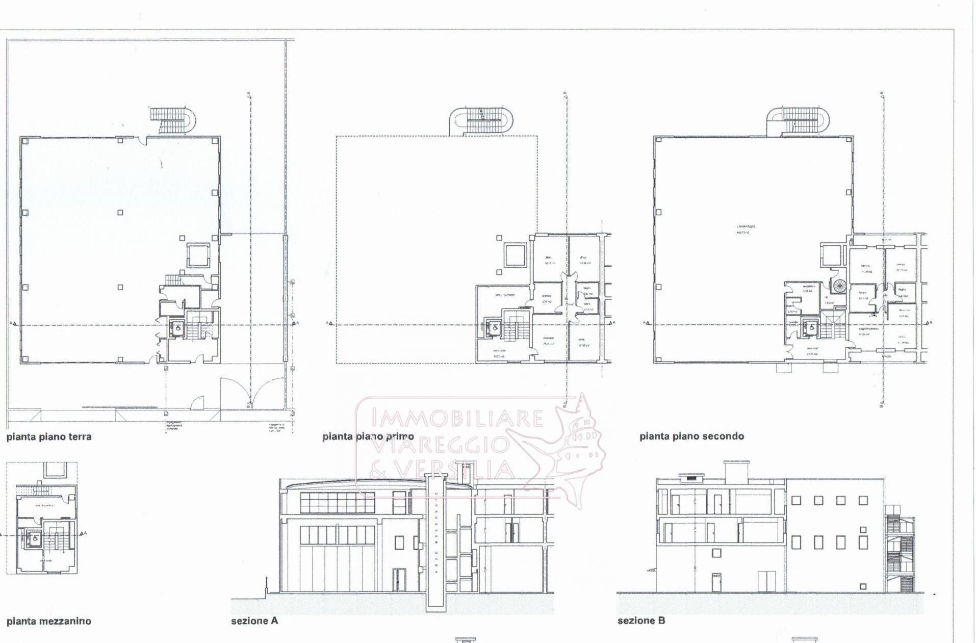
Capezzano Pianore, loc. Le Bocchette, si offre in vendita CAPANNONE ARTIGIANALE di mq 1200 di NUOVA COSTRUZIONE e ideale per la NAUTICA. Il capannone è disposto su due livelli: il piano terreno di mq 500 con altezza di circa 10 metri è collegato mediante scale e montacarichi al piano superiore di mq 500, di altezza di 3 metri. E' dotato di uffici di 100 mq e di un appartamento di 100 mq, con scale e ingresso indipendenti dall'area produttiva. Resede su tre lati di complessivi 350 mq. Predisposizione per montacarichi, impianto elettrico e carroponte. Scale interne ed esterne. Anello antincendio. IDEALE PER CANTIERE NAUTICO o altra attività produttiva. ***CAPANNONE FINITO*** Rif. VEN-V426 Richiesta 1.300.000 Trattabili
Dati principali
| Riferimento | VEN-V426 |
| Data annuncio | 15/05/2025 |
| Contratto | Vendita |
| Tipologia | Magazzino |
| Superficie | 1300 m2 |
| Occupato | Libero |
Caratteristiche
Costi
| Prezzo | 1.300.000 € |
| Prezzo al m2 | 1.000 €/m2 |
Efficienza energetica
| Stato | Ottimo |
| Tipo Alimentazione Riscaldamento | Altro |
| Classe energetica | E |
| Indice di prestazione energetica (IPE) | - |
Planimetrie
Indirizzo e mappa
via dei Carpentieri
5, Camaiore
Annuncio senza mappa,
prova a chiedere la posizione all'inserzionista
prova a chiedere la posizione all'inserzionista
Calcolo mutuo
Prezzo di vendita:
Anticipo
20,00
Mutuo
80,00
Tasso: -+
Rata: 3.718 al mese
I risultati sono una stima indicativa basata sui dati inseriti e non costituiscono un’offerta finanziaria.
Inserzionista
IMMOBILIARE VIAREGGIO E VERSILIA
via Ciro Menotti 8, Viareggio
Mostra Cellulare
Chiama
CONTATTA

