Magazzino via dei Metalmeccanici, Camaiore
€ 690.000
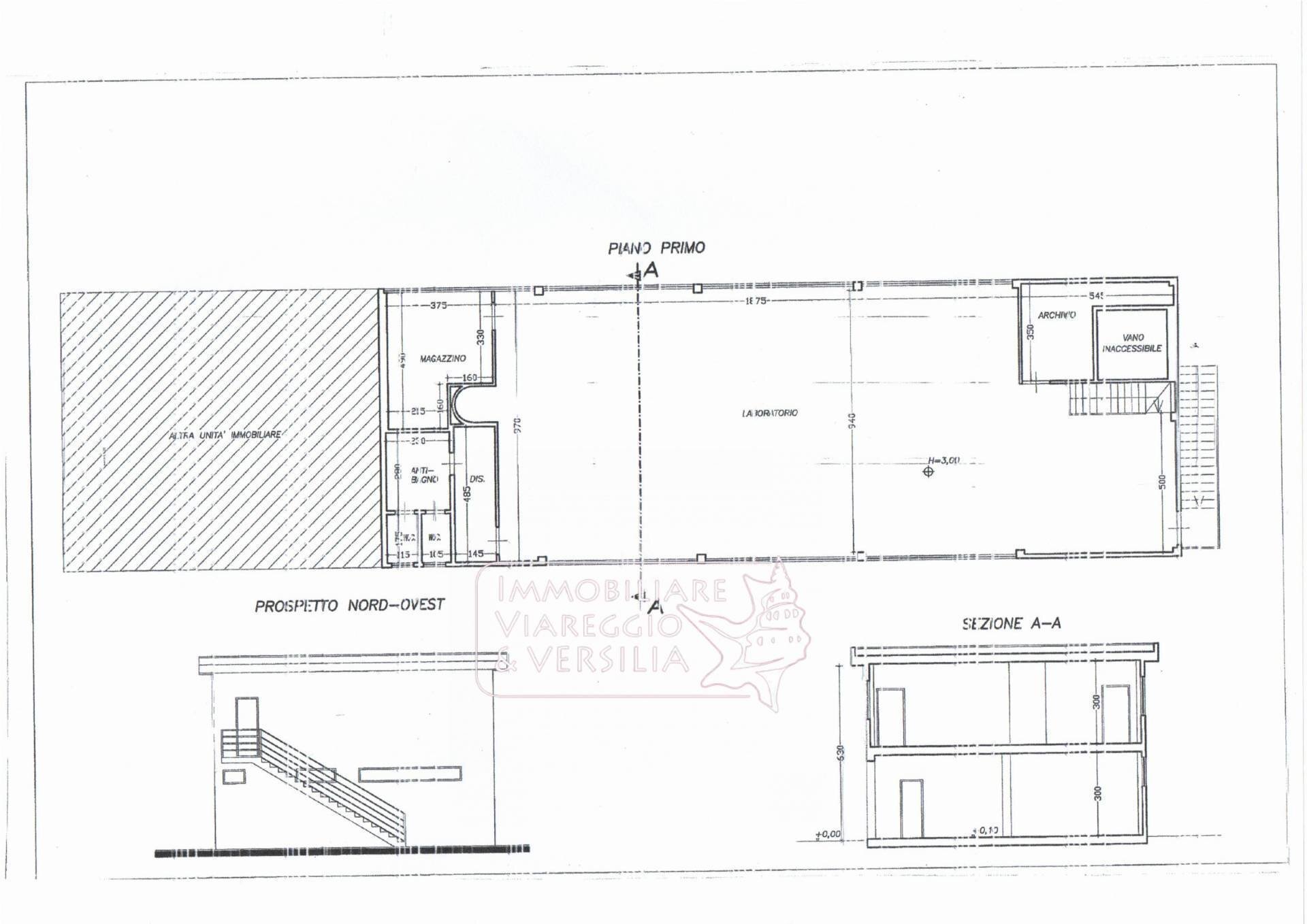
In z.a.i. Le Bocchette, si offre in vendita capannone artigianale di mq 800 disposto su due livelli e corredato da piazzale su quattro lati di mq 600. I locali sono molto ampi e luminosi. Tripli servizi. Ogni piano ha un altezza di 3 metri. L'immobile è organizzato in un laboratorio di mq 700 disposto su due piani (mq 400 a piano terreno e mq 300 al primo piano) con il proprio ingresso indipendente. Da un altro ingresso si accede agli uffici che sono posti al piano terreno e ad un appartamento che è posto al piano primo per una superficie di oltre mq 100 corredato da mansarda e da un'ampia terrazza. Ampio parcheggio pubblico adiacente alla proprietà. POSSIBILITA' DI ACQUISTARE CON MODALITA' RENT TO BUY!!! Rif. VEN-V335 Rich. 690.000 Trattabile
Dati principali
| Riferimento | VEN-V335 |
| Data annuncio | 15/05/2025 |
| Contratto | Vendita |
| Tipologia | Magazzino |
| Superficie | 800 m2 |
| Occupato | Libero |
Caratteristiche
Costi
| Prezzo | 690.000 € |
| Prezzo al m2 | 863 €/m2 |
Efficienza energetica
| Stato | Buono |
| Tipo Alimentazione Riscaldamento | Altro |
| Classe energetica | G |
| Indice di prestazione energetica (IPE) | - |
Planimetrie
Indirizzo e mappa
via dei Metalmeccanici, Camaiore
Annuncio senza mappa,
prova a chiedere la posizione all'inserzionista
prova a chiedere la posizione all'inserzionista
Calcolo mutuo
Prezzo di vendita:
Anticipo
20,00
Mutuo
80,00
Tasso: -+
Rata: 1.973 al mese
I risultati sono una stima indicativa basata sui dati inseriti e non costituiscono un’offerta finanziaria.
Inserzionista
IMMOBILIARE VIAREGGIO E VERSILIA
via Ciro Menotti 8, Viareggio
Mostra Cellulare
Chiama
CONTATTA

