Ufficio Via Andrea Costa, Pesaro
€ 750 al mese
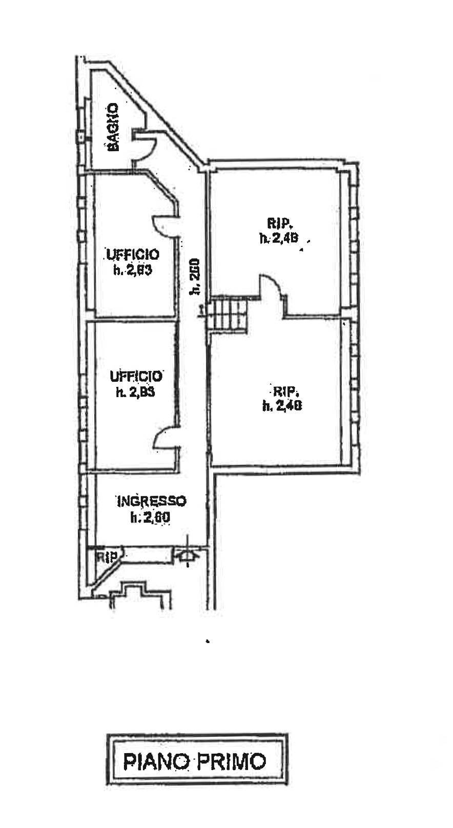
Pesaro - zona semicentrale, ottimamente servita da parcheggio e tutti i maggiori servizi, proponiamo posto al piano 1° servito da ascensore, ampio e luminoso ufficio con nr. 2 stanze operative e due stanze accessorie ottimamente sfruttabili. Buone finiture, qualità pari la nuovo. Canone + iva + spese condominiali. Maggiori informazioni, visite su appuntamento, scrivere a [email protected] - whts 346/7480725.
Dati principali
| Riferimento | PUFN1007 |
| Data annuncio | 15/05/2025 |
| Contratto | Affitto |
| Tipologia | Ufficio |
| Superficie | 120 m2 |
| Locali | 4 (4 altro), 1 bagno |
| Piano | 1 di 9 totali |
| Occupato | Libero |
| Arredamento | Assente |
Caratteristiche
Costi
| Prezzo | 750 € al mese |
Efficienza energetica
| Stato | Ottimo |
| Riscaldamento | Centralizzato |
| Tipo Impianto Di Riscaldamento | ad aria |
| Classe energetica | Immobile esente da certificazione energetica |
Indirizzo e mappa
Via Andrea Costa, Pesaro
Annuncio senza mappa,
prova a chiedere la posizione all'inserzionista
prova a chiedere la posizione all'inserzionista
Inserzionista

La Pesarese
V.le XII Settembre 44, Fano
Mostra Telefono
Mostra Cellulare
Chiama
CONTATTA

