Villa VIA BENZI, Soncino
€ 370.000
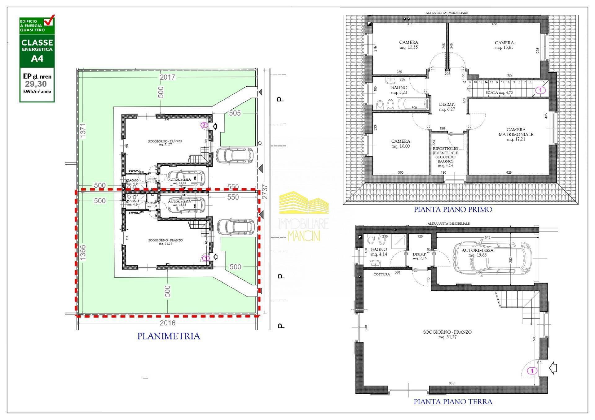
A SONCINO, in NUOVA ZONA RESIDENZIALE di prestigio, Immobiliare Mancini propone NUOVA COSTRUZIONE - BELLISSIMA PORZIONE DI VILLA BIFAMILIARE SU DUE LIVELLI CON GIARDINO ESCLUSIVO + BOX SINGOLO FUORI TERRA - IMMAGINI CAMPIONE INDICATIVE - L'immobile, di NUOVA COSTRUZIONE 2024, si troverà in contesto residenziale di sole ville. In FASE DI COSTRUZIONE e IN PRONTA CONSEGNA A DICEMBRE 2025! La villa, in CLASSE ENERGETICA "A4", è composta da ingresso pedonale coperto su GIARDINO ESCLUSIVO di 188 mq, ingresso in ampia zona giorno con cucina a vista per un totale di 51 mq , disimpegno e bagno. Tramite scala si accede al PIANO PRIMO dove troviamo ampia CAMERA MATRIMONIALE di 17 mq, disimpegno, secondo bagno, ripostiglio con possibilità di trasformazione in terzo bagno o lavanderia e tre ampie CAMERE DA LETTO. A completare la proprietà, BOX SINGOLO di 15 mq fuori terra. Accatastamenti ed allacciamenti fuori dal prezzo di vendita, per un importo di 5.000,00. Questa unità abitativa sarà COMPLETAMENTE INDIPENDENTE e CON ALTA POSSIBILITA' DI PERSONALIZZAZIONE. Accessoriata di impianto fotovoltaico ampliabile, pompa di calore già fornita con predisposizione climatizzazione estiva, riscaldamento a pavimento, predisposizione sistema di allarme. Possibilità soluzione interamente elettrica e dotata di impianto fotovoltaico e di installare un accumulatore di corrente con il quale è possibile abbattere ulteriormente i costi di gestione. Capitolato dettagliato, con relativi riferimenti tecnici e finiture di qualità garantita e possibilità di accesso a detrazioni fiscali e mutui tassi agevolati tipo Green. L'unità immobiliare sorgerà vicino le scuole, fermata del bus e AUTOSTRADA A4. E' un ottima soluzione, perfetta sia per una coppia che desidera ampi spazi sia per una famiglia che cerca una soluzione adatta alle proprie esigenze! SE SIETE INTERESSATI NON ESITATE A CONTATTARE IMMOBILIARE MANCINI AI NUMERI 0262068566 O 3311211947, OPPURE LASCIATE UN MESSAGGIO ALLA MAIL [email protected] E VERRETE RICONTATTATI. CI TROVATE IN VIA MAZZINI N. 70, TREZZO SULL'ADDA , CENTRO POLIFUNZIONALE "LA PIAZZA".
Dati principali
| Riferimento | 264 |
| Data annuncio | 15/05/2025 |
| Contratto | Vendita |
| Tipologia | Villa |
| Superficie | 174 m2 |
| Locali | 5 (4 camere da letto, 1 altro), 3 bagni, cucina a vista |
| Piano | Terra, 2 totali |
| Tipo di costruzione | Signorile |
| Occupato | Libero |
| Box auto | Singolo |
| Arredamento | Assente |
Caratteristiche
Costi
| Prezzo | 370.000 € |
| Prezzo al m2 | 2.126 €/m2 |
Efficienza energetica
| Riscaldamento | Autonomo |
| Tipo Impianto Di Riscaldamento | a pavimento |
| Tipo Alimentazione Riscaldamento | Elettrico |
| Classe energetica | A4 |
Indirizzo e mappa
VIA BENZI, Soncino
Annuncio senza mappa,
prova a chiedere la posizione all'inserzionista
prova a chiedere la posizione all'inserzionista
Calcolo mutuo
Prezzo di vendita:
Anticipo
20,00
Mutuo
80,00
Tasso: -+
Rata: 1.058 al mese
I risultati sono una stima indicativa basata sui dati inseriti e non costituiscono un’offerta finanziaria.
Inserzionista

IMMOBILIARE MANCINI
VIA MAZZINI 70, Trezzo sull'Adda
Mostra Telefono
Chiama
CONTATTA

