Ufficio Via Terraglio, Preganziol
€ 2.200 al mese
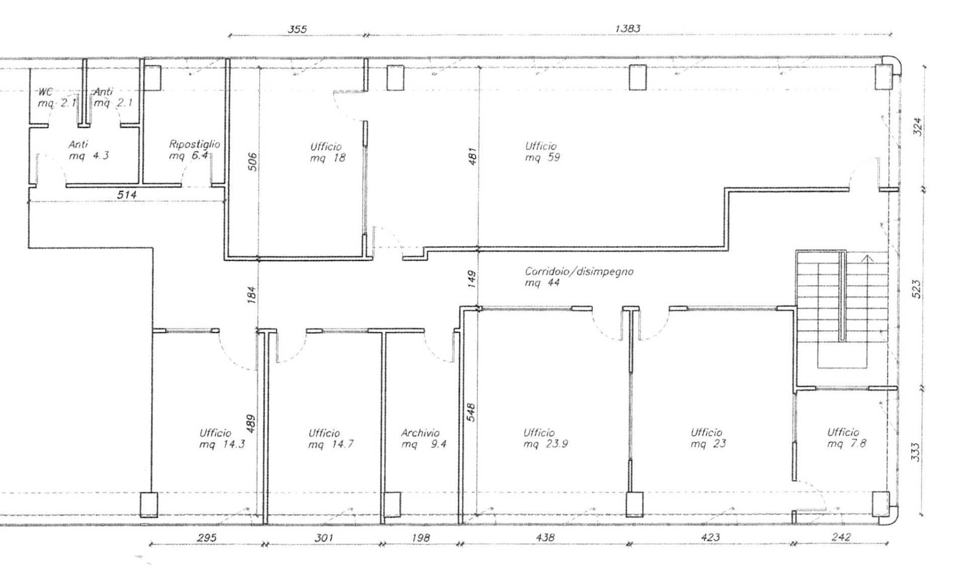
in località Le Grazie di Preganziol, in affitto, begli uffici di 250 mq. con parcheggio libero con circa 25 posti a disposizione. Gli uffici si trovano al piano terra e primo di un fabbricato commerciale/direzionale dei primi anni '90, tenuto molto bene. Al piano terra si accede da ingresso indipendente, troviamo la zona server, archivio, sala riunioni di 20 mq., antibagno, bagno e laboratorio; al piano primo, senza ascensore, si trovano altri 6 uffici di diverse metrature, rtra i quali un ufficio di 59 mq. ed uno di 18 mq.; due antibagno, bagno, corridoio di raccordo e archivio. L'energia elettrica è autonoma, cablaggi rete cat. 6, riscaldamento con caldaia a gas, raffrescamento con pompa di calore. Viene locato già con impianto wi-fi e internet. Gli spazi sono disponibili subito. Per informazioni su questo immobile, chiamare agenzia CASA PLANET di Mogliano Veneto al n. 0418940162 e chiedere del rif. CP074
Dati principali
| Riferimento | CP074 |
| Data annuncio | 15/05/2025 |
| Contratto | Affitto |
| Tipologia | Ufficio |
| Superficie | 270 m2 |
| Locali | più di 5 (12 altro), 3 bagni, cucina non presente |
| Piano | 2 di 2 totali |
| Occupato | Libero |
| Box auto | Assente |
| Arredamento | Parziale |
Costi
| Prezzo | 2.200 € al mese |
Efficienza energetica
| Stato | Ottimo |
| Riscaldamento | Autonomo |
| Tipo Impianto Di Riscaldamento | ad aria |
| Tipo Alimentazione Riscaldamento | Elettrico |
| Classe energetica | F |
| Indice di prestazione energetica (IPE) | 40 kWh/m2 anno |
Planimetrie
Indirizzo e mappa
Via Terraglio, Preganziol
Annuncio senza mappa,
prova a chiedere la posizione all'inserzionista
prova a chiedere la posizione all'inserzionista
Inserzionista

Casa Planet Snc
Piazza Caduti, 39, Mogliano Veneto
Mostra Telefono
Mostra Cellulare
Chiama
CONTATTA

