Appartamento VIA ALDO MORO, Villa del Conte
€ 170.000
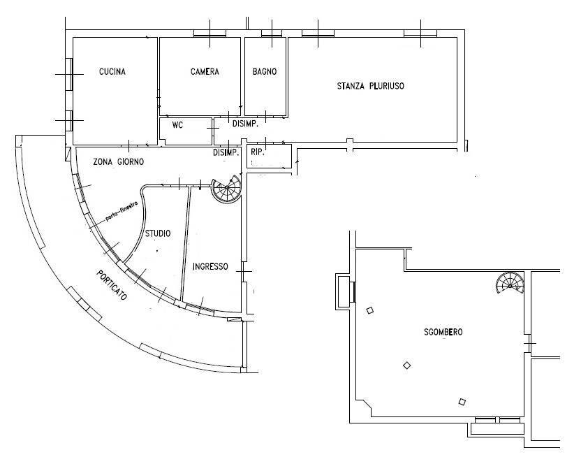
Villa del Conte (PD) - proponiamo in vendita un appartamento, da ristrutturare, posto al piano terra con un'ampia taverna di oltre 60 mq. Inserito in una palazzina di sole quattro unità, l'appartamento è composto da ingresso, zona giorno, cucina, due camere da letto matrimoniali, due bagni; possibilità di ricavare 3/4 camere da letto. Al piano interrato troviamo un ampia taverna di oltre 60 mq collegata direttamente alla zona giorno. L'immobile è da ristrutturare. Un garage al piano interrato è compreso nel prezzo di vendita. L'abitazione è ubicata in un verdeggiante e tranquillo quartiere residenziale di raffinate villette singole e a schiera. Contattare Polis Real Estate per ricevere maggiori informazioni e per visionare questo appartamento in vendita a Villa del Conte. RIF.1514
Dati principali
| Riferimento | 1514 |
| Data annuncio | 15/05/2025 |
| Contratto | Vendita |
| Tipologia | Appartamento |
| Superficie | 280 m2 |
| Locali | più di 5 (4 camere da letto, 3 altro), 2 bagni, cucina abitabile |
| Piano | Terra, 3 totali |
| Occupato | Libero |
| Box auto | Singolo |
| Arredamento | Assente |
Costi
| Prezzo | 170.000 € |
| Prezzo al m2 | 607 €/m2 |
Efficienza energetica
| Stato | Da ristrutturare |
| Riscaldamento | Autonomo |
| Classe energetica | G |
| Indice di prestazione energetica (IPE) | 298 kWh/m2 anno |
Planimetrie
Indirizzo e mappa
VIA ALDO MORO, Villa del Conte
Annuncio senza mappa,
prova a chiedere la posizione all'inserzionista
prova a chiedere la posizione all'inserzionista
Calcolo mutuo
Prezzo di vendita:
Anticipo
20,00
Mutuo
80,00
Tasso: -+
Rata: 486 al mese
I risultati sono una stima indicativa basata sui dati inseriti e non costituiscono un’offerta finanziaria.
Inserzionista

POLIS SNC
Via San Crispino 114, Padova
Mostra Telefono
Chiama
CONTATTA

