Ufficio Via Cefalonia 56, Brescia
€ 645.000
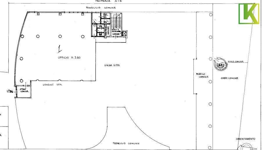
PROPONIAMO IN VENDITA AMPIO UFFICIO Brescia, in via Cefalonia, in prossimità della fermata della metro e in zona servita da ogni servizio e vicina al Centro Storico della città, vendiamo comodo ufficio amministrativo in palazzo recentemente ristrutturato. L'immobile è sito al piano terra servito da ascensore per accedere ai posti auto coperti di proprietà e si compone di reception, una sala riunione, sette uffici di diverse metrature, sala ristoro e servizi igienici. Completano la soluzione 10 posti auto coperti di proprietà. Prezzo di vendita richiesto 645.000,00
Dati principali
| Riferimento | 13479 |
| Data annuncio | 15/05/2025 |
| Contratto | Vendita |
| Tipologia | Ufficio |
| Superficie | 450 m2 |
| Locali | 4 bagni, cucina non presente |
| Piano | Terra, 3 totali |
| Occupato | Libero |
| Box auto | Assente |
| Numero posti auto | 10 |
| Arredamento | Parziale |
Caratteristiche
Costi
| Prezzo | 645.000 € |
| Prezzo al m2 | 1.433 €/m2 |
Efficienza energetica
| Stato | Ottimo |
| Riscaldamento | Semi-autonomo |
| Classe energetica | G |
| Indice di prestazione energetica (IPE) | - |
Planimetrie
Indirizzo e mappa
Via Cefalonia
56, Brescia
Annuncio senza mappa,
prova a chiedere la posizione all'inserzionista
prova a chiedere la posizione all'inserzionista
Calcolo mutuo
Prezzo di vendita:
Anticipo
20,00
Mutuo
80,00
Tasso: -+
Rata: 1.845 al mese
I risultati sono una stima indicativa basata sui dati inseriti e non costituiscono un’offerta finanziaria.
Inserzionista

Belisama Srls
Via Rossini 8, Varese
Mostra Telefono
Chiama
CONTATTA

