Ufficio via Como 16, Olgiate Molgora
€ 65.000
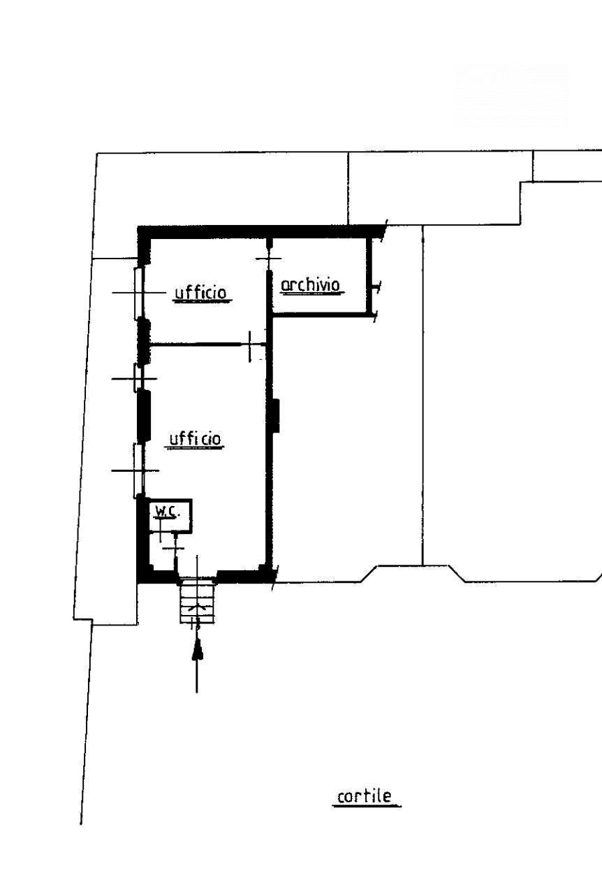
Ufficio fronte strada con parcheggioLuigi Ottolini propone in vendita ufficio al piano terra, inserito in contesto commerciale e residenziale, con ampio parcheggio comune esterno. L'immobile è indipendente e si sviluppa su piano unico, è composto da ingresso, ufficio open space, ufficio privato, stanza archivio e bagno. Ideale per piccole imprese e professionisti. Non perdere lopportunità di acquisire questo locale commerciale unico ad Olgiata Molgora. Contatta subito lagenzia immobiliare Luigi Ottolini per visitare questo immobile e fare unofferta. Non perdere tempo, questa proprietà sta attirando lattenzione di molti imprenditori e investitori, quindi agisci rapidamente per assicurarti di poter acquisire questo immobile per la tua attività. Per appuntamenti ed informazioni chiamare il (+39)3924774565 o inviare una mail a [email protected] Contattaci, segui il nostro sito web per rimanere sempre aggiornato e scopri i nostri SERVIZI!
Dati principali
| Riferimento | LC-CAI-OLGIATEMOLGORA |
| Data annuncio | 15/05/2025 |
| Contratto | Vendita |
| Tipologia | Ufficio |
| Superficie | 91 m2 |
| Locali | 2 (2 altro), 1 bagno |
| Piano | Terra, 3 totali |
| Occupato | Libero |
| Arredamento | Parziale |
Costi
| Prezzo | 65.000 € |
| Prezzo al m2 | 714 €/m2 |
Efficienza energetica
| Riscaldamento | Autonomo |
| Classe energetica | G |
| Indice di prestazione energetica (IPE) | 200 kWh/m2 anno |
Planimetrie
Indirizzo e mappa
via Como
16, Olgiate Molgora
Annuncio senza mappa,
prova a chiedere la posizione all'inserzionista
prova a chiedere la posizione all'inserzionista
Calcolo mutuo
Prezzo di vendita:
Anticipo
20,00
Mutuo
80,00
Tasso: -+
Rata: 186 al mese
I risultati sono una stima indicativa basata sui dati inseriti e non costituiscono un’offerta finanziaria.
Inserzionista

Luigi Ottolini
viale Papa Giovanni XXIII, 13, Bergamo
Mostra Cellulare
Chiama
CONTATTA

