Negozio via Donadoni 1, Pedrengo
€ 295.000
Proponiamo in vendita un ampio e luminoso locale commerciale di 322 mq situato a Pedrengo, comune dell'hinterland di Bergamo.
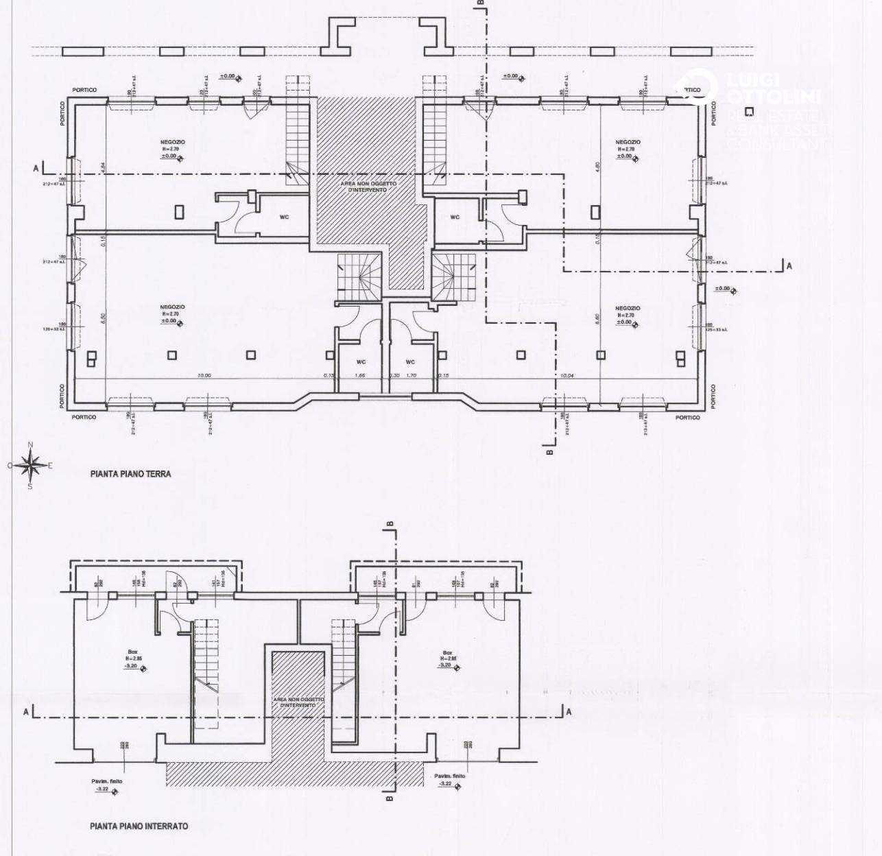
L'immobile si trova al piano terra di una palazzina di 5 piani e gode di un'ottima esposizione grazie alle 16 vetrine (delle quali 5 + ingresso fronte strada) esposte su 4 lati.
Attualmente il locale è composto da 13 locali e 2 bagni, per un totale di 322 mq di SLP, dei quali 266 al piano terra e 56 al piano seminterrato.
Le stanze sono separate da pannelli in vetro ed armadi divisori per garantire la massima privacy ed una maggiore flessibilità nell'utilizzo degli spazi interni.
Lo stato di conservazione è ottimo, è dotato di sistema di allarme e predisposizione alla Videosorveglianza interna per garantire la massima sicurezza.
Al piano interrato sono presenti due box auto di circa 22 mq ciascuno.
Il contesto in cui l'immobile si trova sulla strada principale, garantendo una buona visibilità e una facile raggiungibilità per i clienti.
Intorno al complesso immobiliare ci sono numerosi parcheggi gratuiti per i clienti.
Ideale per chi desidera avviare la propria attività in un ambiente moderno e ben curato.
Per informazioni e visite chiamare il (+39)3924774565 oppure inviare una mail a [email protected]
Visita il nostro sito web per scoprire tutte le novità e seguici sui social!
L'immobile si trova al piano terra di una palazzina di 5 piani e gode di un'ottima esposizione grazie alle 16 vetrine (delle quali 5 + ingresso fronte strada) esposte su 4 lati.
Attualmente il locale è composto da 13 locali e 2 bagni, per un totale di 322 mq di SLP, dei quali 266 al piano terra e 56 al piano seminterrato.
Le stanze sono separate da pannelli in vetro ed armadi divisori per garantire la massima privacy ed una maggiore flessibilità nell'utilizzo degli spazi interni.
Lo stato di conservazione è ottimo, è dotato di sistema di allarme e predisposizione alla Videosorveglianza interna per garantire la massima sicurezza.
Al piano interrato sono presenti due box auto di circa 22 mq ciascuno.
Il contesto in cui l'immobile si trova sulla strada principale, garantendo una buona visibilità e una facile raggiungibilità per i clienti.
Intorno al complesso immobiliare ci sono numerosi parcheggi gratuiti per i clienti.
Ideale per chi desidera avviare la propria attività in un ambiente moderno e ben curato.
Per informazioni e visite chiamare il (+39)3924774565 oppure inviare una mail a [email protected]
Visita il nostro sito web per scoprire tutte le novità e seguici sui social!
Dati principali
| Riferimento | BG-PEDRENGO |
| Data annuncio | 15/05/2025 |
| Contratto | Vendita |
| Tipologia | Negozio |
| Superficie | 304 m2 |
| Locali | più di 5 (13 altro), 2 bagni |
| Piano | Terra, 5 totali |
| Occupato | Libero |
| Box auto | Doppio |
| Arredamento | Parziale |
Caratteristiche
Costi
| Prezzo | 295.000 € |
| Prezzo al m2 | 970 €/m2 |
Efficienza energetica
| Stato | Ottimo |
| Riscaldamento | Autonomo |
| Tipo Alimentazione Riscaldamento | Altro |
| Classe energetica | E |
| Indice di prestazione energetica (IPE) | 200 kWh/m2 anno |
Planimetrie
Indirizzo e mappa
via Donadoni
1, Pedrengo
Annuncio senza mappa,
prova a chiedere la posizione all'inserzionista
prova a chiedere la posizione all'inserzionista
Calcolo mutuo
Prezzo di vendita:
Anticipo
20,00
Mutuo
80,00
Tasso: -+
Rata: 844 al mese
I risultati sono una stima indicativa basata sui dati inseriti e non costituiscono un’offerta finanziaria.
Inserzionista

Luigi Ottolini
viale Papa Giovanni XXIII, 13, Bergamo
Mostra Cellulare
Chiama
CONTATTA

