Rustico C.da San Andrea s.n.c., Noto
€ 450.000
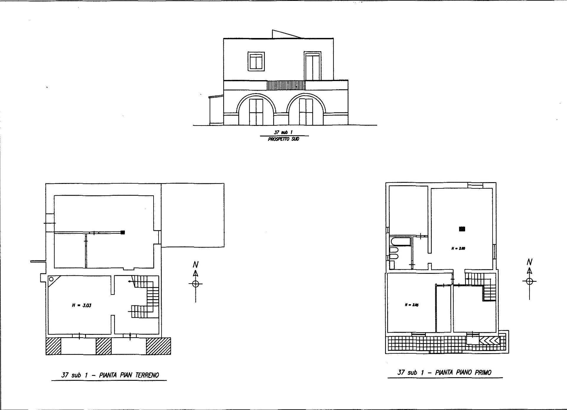
Proprietà da Ristrutturare con Ampio Terreno a Noto, Contrada San Andrea Situata nella tranquilla contrada San Andrea, a soli 3 chilometri dal centro di Noto, proponiamo in vendita una proprietà composta da più fabbricati risalenti agli anni 50, per una superficie complessiva di circa 550 mq. Gli edifici, da ristrutturare, offrono ampie possibilità di personalizzazione e sviluppo, ideali per chi desidera creare una residenza esclusiva immersa nel cuore della campagna siciliana. La proprietà è completata da un vasto terreno di circa 1,4 ettari, perfetto per la realizzazione di un giardino privato, frutteto, oliveto o qualsiasi altro progetto agricolo o paesaggistico. La posizione strategica a pochi minuti dal centro storico di Noto e dai principali servizi garantisce la giusta combinazione tra riservatezza e comodità. Questa proprietà rappresenta unottima opportunità per chi cerca un progetto di ristrutturazione con ampi spazi e la possibilità di vivere in uno dei luoghi più affascinanti della Sicilia.
Dati principali
| Riferimento | 92176 |
| Data annuncio | 15/05/2025 |
| Contratto | Vendita |
| Tipologia | Rustico |
| Superficie | 550 m2 |
| Locali | più di 5 (8 camere da letto, 11 altro), 3 bagni, cucina non presente |
| Piano | Intero edificio, 2 totali |
| Occupato | Libero |
| Box auto | Assente |
| Numero posti auto | 2 |
| Arredamento | Assente |
Caratteristiche
Costi
| Prezzo | 450.000 € |
| Prezzo al m2 | 818 €/m2 |
Efficienza energetica
| Stato | Da ristrutturare |
| Riscaldamento | Assente |
| Tipo Alimentazione Riscaldamento | Altro |
| Classe energetica | G |
| Indice di prestazione energetica (IPE) | - |
Planimetrie
Indirizzo e mappa
C.da San Andrea
s.n.c., Noto
Annuncio senza mappa,
prova a chiedere la posizione all'inserzionista
prova a chiedere la posizione all'inserzionista
Calcolo mutuo
Prezzo di vendita:
Anticipo
20,00
Mutuo
80,00
Tasso: -+
Rata: 1.287 al mese
I risultati sono una stima indicativa basata sui dati inseriti e non costituiscono un’offerta finanziaria.
Inserzionista

Oikos S.r.l.s. Unipersonale
Via Napoli, Noto
Mostra Telefono
Chiama
CONTATTA

