Casa indipendente Via Rocco Pirri 1, Noto
€ 205.000
Maison terrazzo con vista proposta di vendita della Oikos Real Estate
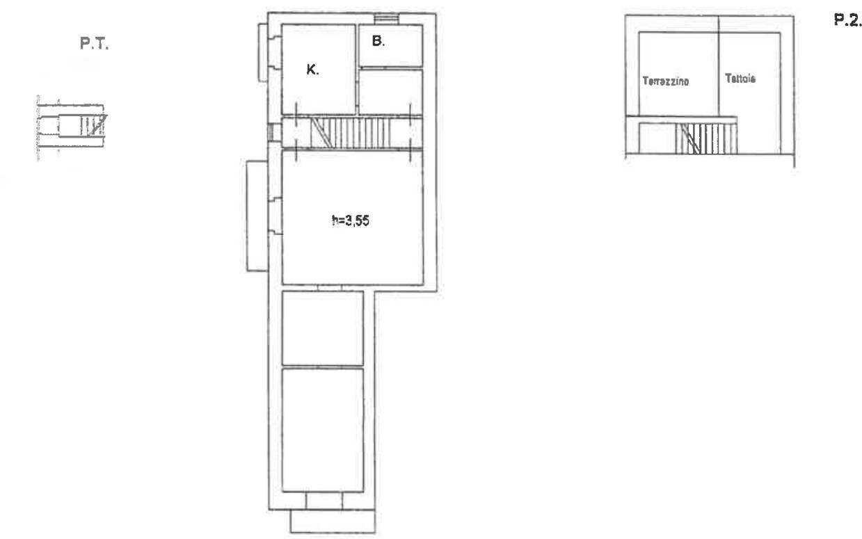
Maison terrazzo con vista si trova nel cuore del centro storico di Noto nella via della movida netina, ricca di ristopub che offrono ricette di alta qualità e originalità. Limmobile si sviluppa al primo piano e ha una superficie di circa 80 mq, con 5 vani. Maison terrazzo con vista allinterno comprende un soggiorno-cucina con balcone, due camere da letto con balcone, un ripostiglio e infine due bagni. Lambiente è ben curato in ogni dettaglio e arredato con gusto. Limmobile è dotato di climatizzatore.
USI E POTENZIALITA
Maison terrazzo con vista ha una posizione strategica in quanto trovandosi in pieno centro storico ha nelle vicinanze tutti i servizi utili al cittadino, oltre la suggestiva cornice di palazzi storici e chiese di architettura barocca. Pertanto rappresenta un ottimo investimento immobiliare per chi vuole viverla come casa per uso privato o realizzare una casa vacanza.
NEI DINTORNI
Limmobile dista circa 6 km dal lido di Noto, qualche chilometro in più per raggiungere la riserva naturale di Vendicari e Marzamemi col suo porticciolo e lantica tonnara. Dista circa 87 km dallaeroporto Fontanarossa di Catania.
Maison terrazzo con vista si trova nel cuore del centro storico di Noto nella via della movida netina, ricca di ristopub che offrono ricette di alta qualità e originalità. Limmobile si sviluppa al primo piano e ha una superficie di circa 80 mq, con 5 vani. Maison terrazzo con vista allinterno comprende un soggiorno-cucina con balcone, due camere da letto con balcone, un ripostiglio e infine due bagni. Lambiente è ben curato in ogni dettaglio e arredato con gusto. Limmobile è dotato di climatizzatore.
USI E POTENZIALITA
Maison terrazzo con vista ha una posizione strategica in quanto trovandosi in pieno centro storico ha nelle vicinanze tutti i servizi utili al cittadino, oltre la suggestiva cornice di palazzi storici e chiese di architettura barocca. Pertanto rappresenta un ottimo investimento immobiliare per chi vuole viverla come casa per uso privato o realizzare una casa vacanza.
NEI DINTORNI
Limmobile dista circa 6 km dal lido di Noto, qualche chilometro in più per raggiungere la riserva naturale di Vendicari e Marzamemi col suo porticciolo e lantica tonnara. Dista circa 87 km dallaeroporto Fontanarossa di Catania.
Dati principali
| Riferimento | 79541 |
| Data annuncio | 15/05/2025 |
| Contratto | Vendita |
| Tipologia | Casa indipendente |
| Superficie | 80 m2 |
| Locali | 5 (2 camere da letto, 3 altro), 2 bagni, cucina abitabile |
| Piano | 1 di 3 totali |
| Tipo di costruzione | Media |
| Occupato | Libero |
| Box auto | Assente |
Costi
| Prezzo | 205.000 € |
| Prezzo al m2 | 2.563 €/m2 |
Efficienza energetica
| Stato | Ottimo |
| Riscaldamento | Autonomo |
| Tipo Alimentazione Riscaldamento | Elettrico |
| Classe energetica | G |
| Indice di prestazione energetica (IPE) | - |
Planimetrie
Indirizzo e mappa
Via Rocco Pirri
1, Noto
Annuncio senza mappa,
prova a chiedere la posizione all'inserzionista
prova a chiedere la posizione all'inserzionista
Calcolo mutuo
Prezzo di vendita:
Anticipo
20,00
Mutuo
80,00
Tasso: -+
Rata: 586 al mese
I risultati sono una stima indicativa basata sui dati inseriti e non costituiscono un’offerta finanziaria.
Inserzionista

Oikos S.r.l.s. Unipersonale
Via Napoli, Noto
Mostra Telefono
Chiama
CONTATTA

