Villa a Schiera c.da vaddeddi 1, Noto
Trattativa riservata
Proprietà con più unità abitative in contrada Vaddeddi Oikos Real Estate
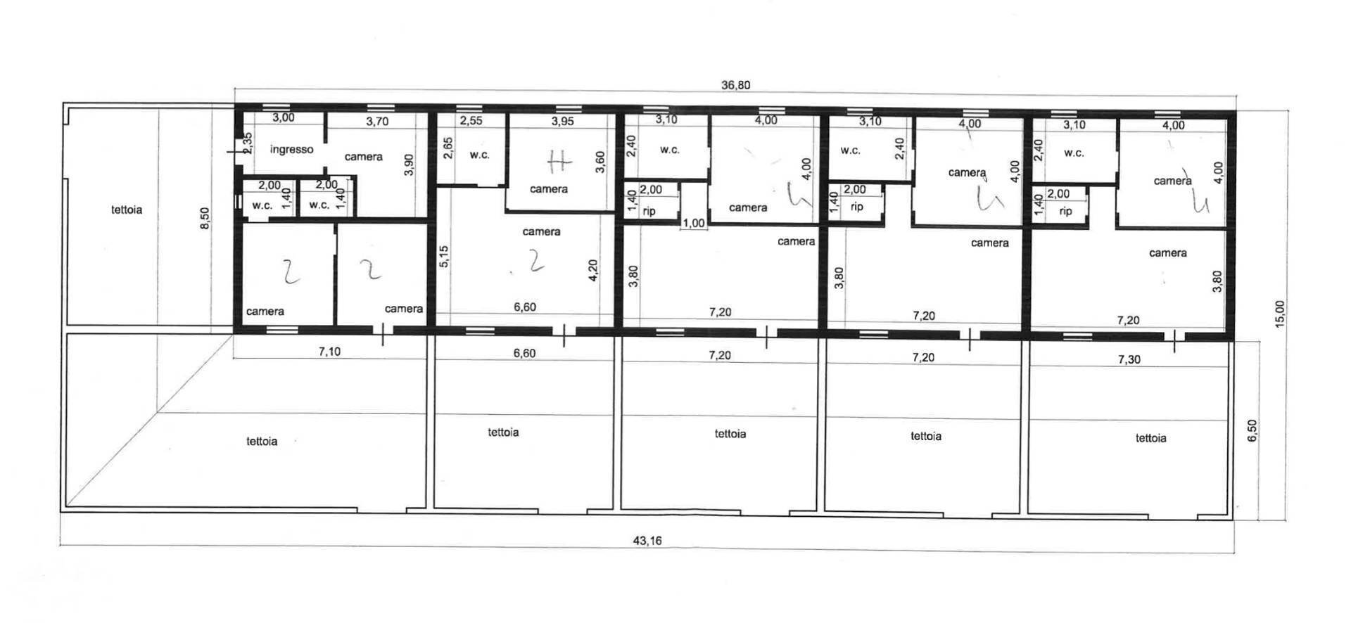
Proprietà con più unità abitative si trova nella bella campagna del Val di Noto con la tipica vegetazione della macchia mediterranea. La proprietà è costituita da una prima struttura grande circa 85 mq da ristrutturare e ha una veranda di circa 25 mq. La seconda struttura è costituita da 6 unità e comprendono la cucina, la camera da letto e il bagno per una superficie complessiva di circa 320 mq. Ogni unità ha una verandina attigua. La proprietà dispone di due piscine, di cui una con idromassaggio. Vi è inoltre un barbecue e un giardino con alberi di ulivi secolari. Lintera proprietà è grande ettari 2,8. La proposta di vendita è ancora più interessante per la possibilità di poter costruire altri 180 mq.
USI E POTENZIALITA
La proprietà potrebbe essere gestita come struttura ricettiva per il turismo.
NEI DINTORNI
La proprietà dista pochi chilometri dal lido di Noto e dal piccolo borgo marinaro di Marzamemi. Dista circa 90 km dallaeroporto Fontanarossa di Catania
Proprietà con più unità abitative si trova nella bella campagna del Val di Noto con la tipica vegetazione della macchia mediterranea. La proprietà è costituita da una prima struttura grande circa 85 mq da ristrutturare e ha una veranda di circa 25 mq. La seconda struttura è costituita da 6 unità e comprendono la cucina, la camera da letto e il bagno per una superficie complessiva di circa 320 mq. Ogni unità ha una verandina attigua. La proprietà dispone di due piscine, di cui una con idromassaggio. Vi è inoltre un barbecue e un giardino con alberi di ulivi secolari. Lintera proprietà è grande ettari 2,8. La proposta di vendita è ancora più interessante per la possibilità di poter costruire altri 180 mq.
USI E POTENZIALITA
La proprietà potrebbe essere gestita come struttura ricettiva per il turismo.
NEI DINTORNI
La proprietà dista pochi chilometri dal lido di Noto e dal piccolo borgo marinaro di Marzamemi. Dista circa 90 km dallaeroporto Fontanarossa di Catania
Dati principali
| Riferimento | 78251 |
| Data annuncio | 15/05/2025 |
| Contratto | Vendita |
| Tipologia | Villa a Schiera |
| Superficie | 320 m2 |
| Locali | più di 5 (6 camere da letto, 6 altro), 9 bagni |
| Occupato | Libero |
Costi
| Prezzo | Trattativa riservata |
Efficienza energetica
| Tipo Alimentazione Riscaldamento | Altro |
| Classe energetica | G |
| Indice di prestazione energetica (IPE) | - |
Planimetrie
Indirizzo e mappa
c.da vaddeddi
1, Noto
Annuncio senza mappa,
prova a chiedere la posizione all'inserzionista
prova a chiedere la posizione all'inserzionista
Inserzionista

Oikos S.r.l.s. Unipersonale
Via Napoli, Noto
Mostra Telefono
Chiama
CONTATTA

