Villa a Schiera Via Suro, Salzano
€ 164.000
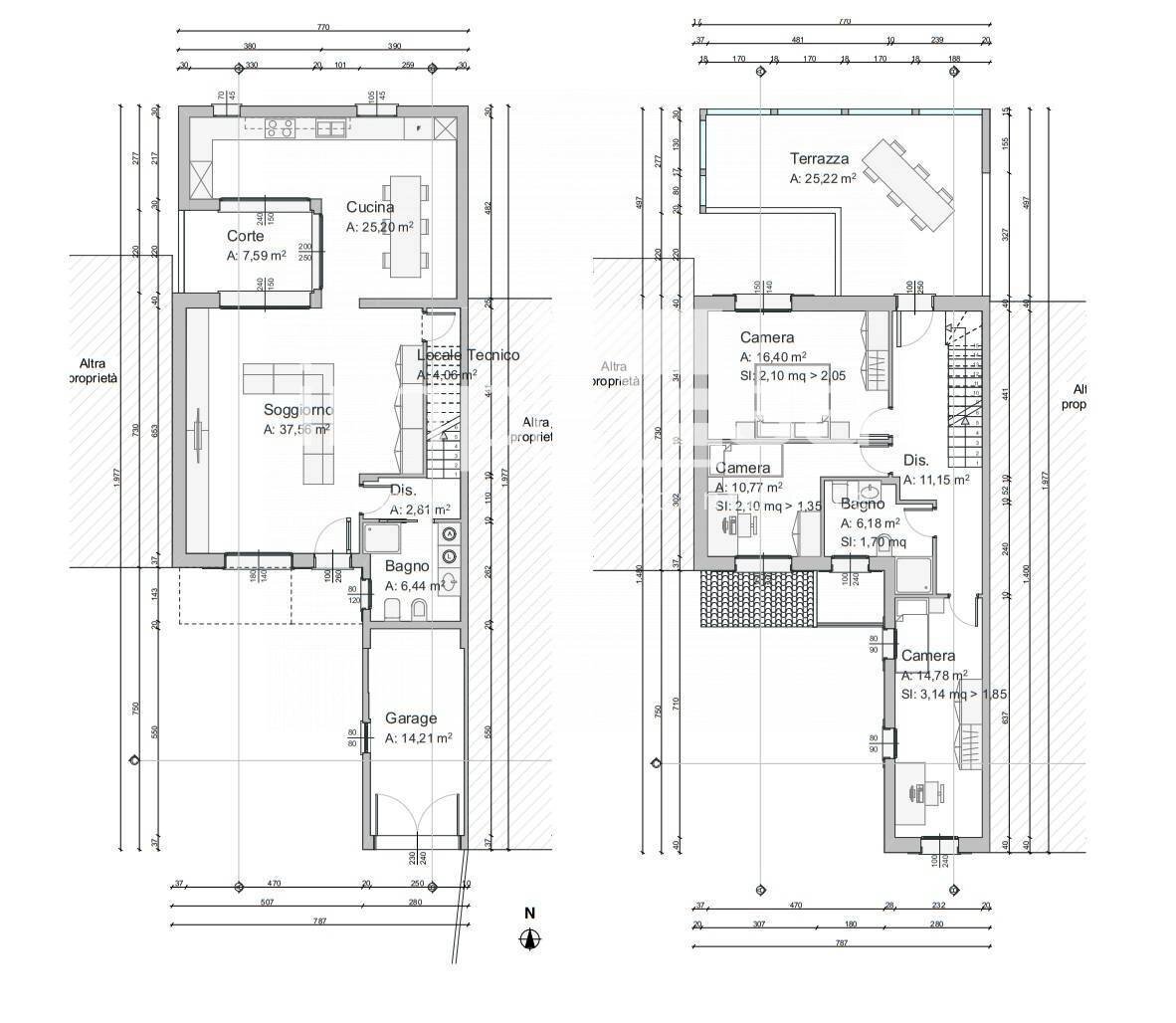
Porzione di trivilla centrale a Salzano al grezzo avanzato Proponiamo una porzione centrale di trivilla in centro Salzano, completamente ricostruita a nuovo dalle fondamenta, con ampi spazi interni e consegnata al grezzo avanzato. La soluzione ci accoglie con un ampia zona giorno di 37 mq dal quale abbiamo accesso ad una cucina abitabile di 25 mq provvista di loggia ed ad un bagno finestrato. Attraverso la scala posta nella zona living possiamo raggiungere il primo piano dell'abitazione dove troviamo una camera da 10 mq, una seconda camera da 14mq, la spaziosa camera matrimoniale da 16mq, bagno finestrato dotato di poggiolo ed un ampia terrazza di 25 mq. Al secondo ed ultimo piano troviamo un piccolo sottotetto con acceso ad un'altra terrazza di 20 mq. A concludere il tutto troviamo uno scoperto privato ed un garage fuori terra di 14 mq. Consegna al grezzo avanzato che comprende: intonaci esterni, piane, casse-matte, scuri esterni, ringhiere, cancelli, fognature bianche e nere. Possibilità di modifica degli spazi interni. Possibile recuperare il 50% delle spese sulle opere di finitura. Per maggiori informazioni su questa porzione di trivilla a Salzano potete contattare l'agenzia immobiliare impREsa di Martellago al numero 041 2030742 citando il rif. TG134, oppure visitate il nostro sito web www.impresaimmobiliare.com
Dati principali
| Riferimento | I/TG134 |
| Data annuncio | 15/05/2025 |
| Contratto | Vendita |
| Tipologia | Villa a Schiera |
| Superficie | 170 m2 |
| Locali | 5 (3 camere da letto, 2 altro), 2 bagni, cucina abitabile |
| Piano | Su più livelli |
| Tipo di costruzione | Media |
| Occupato | Libero |
| Box auto | Singolo |
| Numero posti auto | 1 |
Caratteristiche
Costi
| Prezzo | 164.000 € |
| Prezzo al m2 | 965 €/m2 |
Efficienza energetica
| Stato | Scarso |
| Riscaldamento | Autonomo |
| Classe energetica | Immobile esente da certificazione energetica |
Planimetrie
Indirizzo e mappa
Via Suro, Salzano
Annuncio senza mappa,
prova a chiedere la posizione all'inserzionista
prova a chiedere la posizione all'inserzionista
Calcolo mutuo
Prezzo di vendita:
Anticipo
20,00
Mutuo
80,00
Tasso: -+
Rata: 469 al mese
I risultati sono una stima indicativa basata sui dati inseriti e non costituiscono un’offerta finanziaria.
Inserzionista
Chiama
CONTATTA


