Capannone via NOVARA, Legnano
€ 450.000
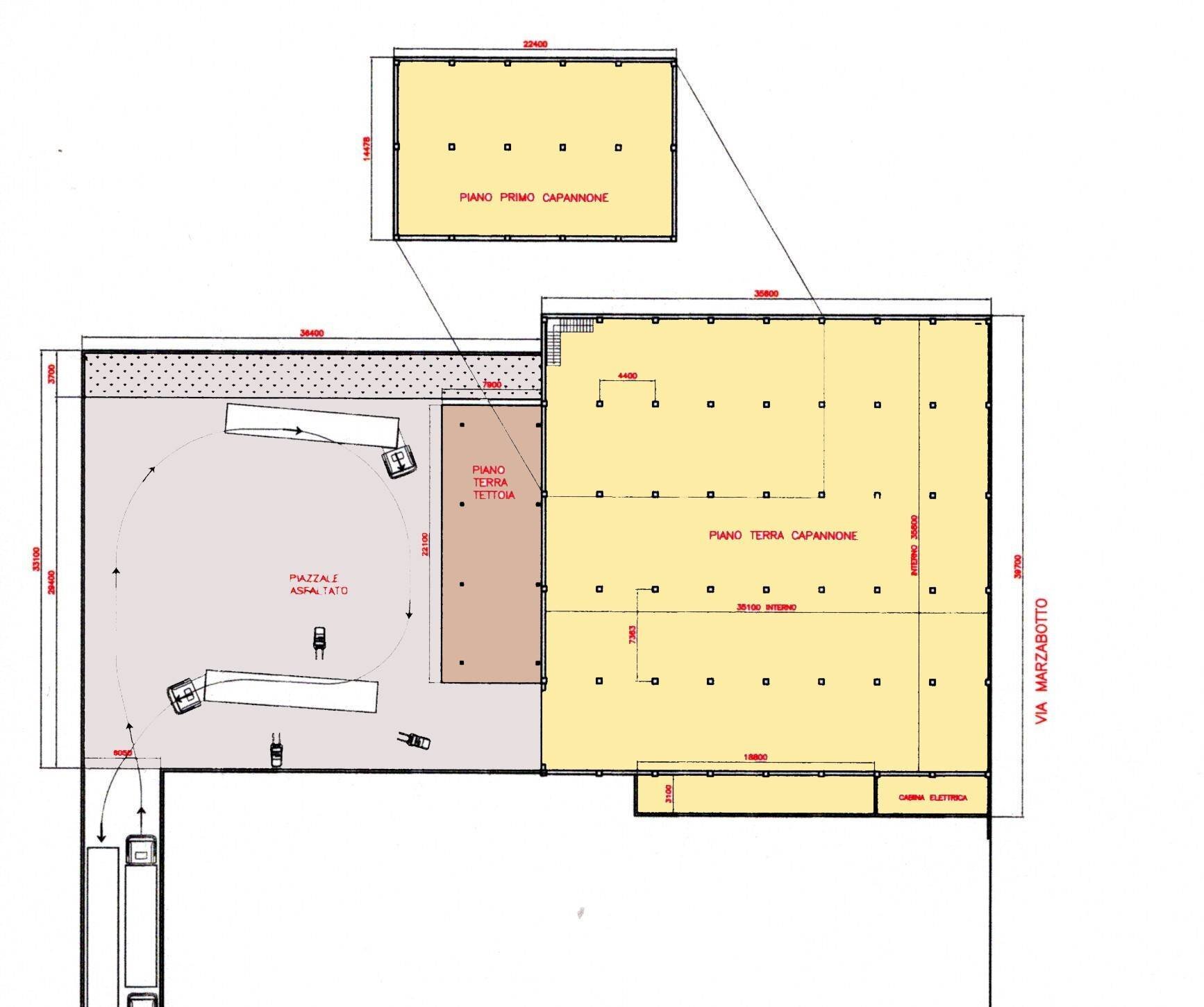
Capannone di circa 1400 mq a piano terra, 330 mq piano primo, tettoia di circa 120 mq e area di manovra esclusiva di 1200 mq. Disponibile subito. AESSE Studio Immobiliare nasce dall'unione di Professionisti con oltre 25 anni di esperienza nel settore immobiliare, in grado di soddisfare le esigenze più svariate della clientela, supporto completo all'acquisto e alla vendita, ricerca specifica per l'acquirente, selezione immobili, visure ipotecarie, servizi per il venditore, valutazioni gratuite, servizi catastali, Certificazioni Energetiche, sanatorie edilizie.
Dati principali
| Riferimento | 505L |
| Data annuncio | 15/05/2025 |
| Contratto | Vendita |
| Tipologia | Capannone |
| Superficie | 1725 m2 |
| Occupato | Libero |
Costi
| Prezzo | 450.000 € |
| Prezzo al m2 | 261 €/m2 |
Efficienza energetica
| Stato | Discreto |
| Tipo Alimentazione Riscaldamento | Altro |
| Classe energetica | G |
| Indice di prestazione energetica (IPE) | 68 kWh/m2 anno |
Planimetrie
Indirizzo e mappa
via NOVARA, Legnano
Annuncio senza mappa,
prova a chiedere la posizione all'inserzionista
prova a chiedere la posizione all'inserzionista
Calcolo mutuo
Prezzo di vendita:
Anticipo
20,00
Mutuo
80,00
Tasso: -+
Rata: 1.287 al mese
I risultati sono una stima indicativa basata sui dati inseriti e non costituiscono un’offerta finanziaria.
Inserzionista
Chiama
CONTATTA


