Azienda agricola Via Marconi 57, Ispra
€ 390.000
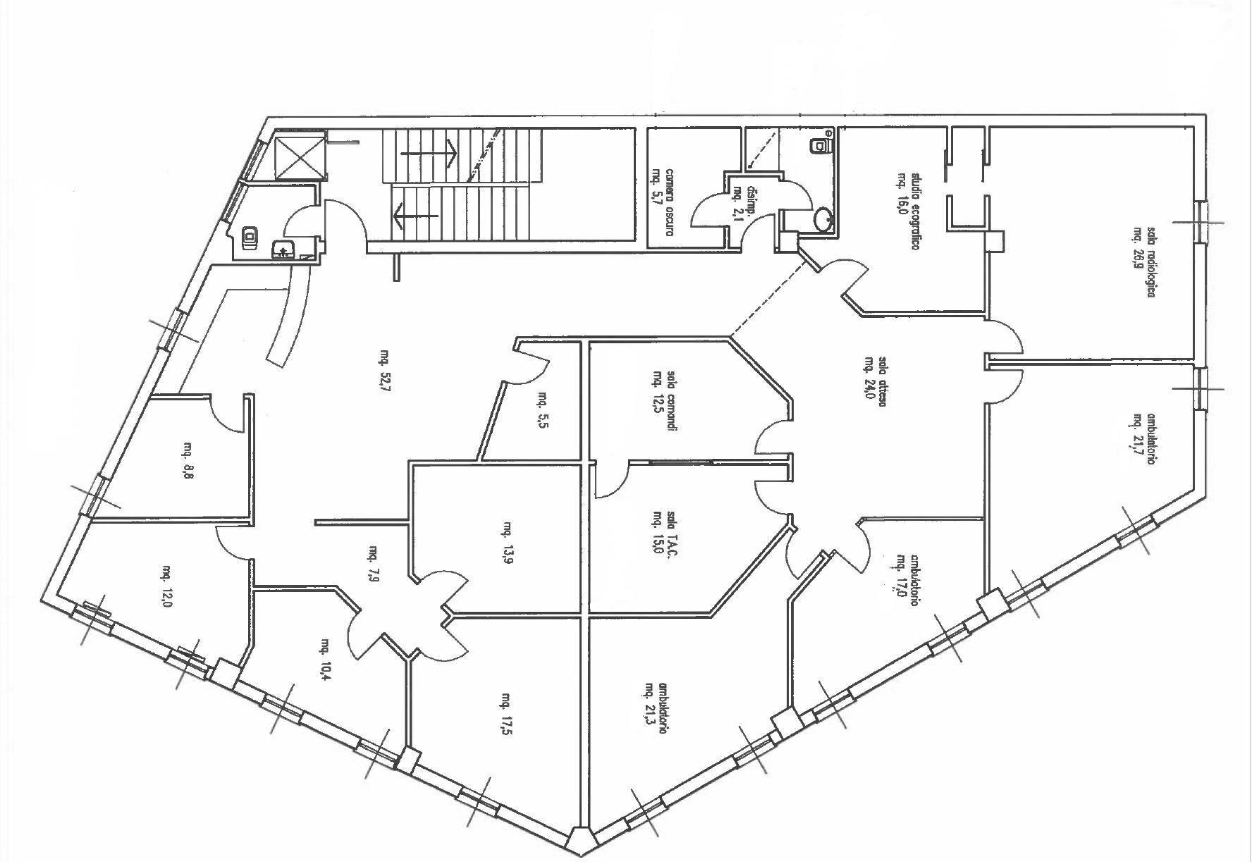
ISPRA Vendesi Attività di Poliambulatorio Medico a Ispra (VA) - Centro Nella bellissima e prospera località sulle sponde del lago Maggiore, nel centro di Ispra, proponiamo in vendita un'attività di poliambulatorio ben avviata e consolidata da oltre 10 anni, in posizione strategica, comoda a tutti i servizi, nel pieno centro cittadino. Lattività è punto di riferimento per alcune importanti realtà quali ad esempio il JRC (Joint Research Centre - European Commission) ed i residenti di Ispra. Struttura Autorizzata dallASL, offre 360 mq, disposti su due livelli con mq 304,00 al piano primo e mq 62,00 al piano terra, costituiti da spazi ampi, luminosi e ben strutturati, ideali per l'accoglienza e la cura dei pazienti. Al primo piano, accessibile tramite una scala interna e un elevatore che abbatte tutte le barriere architettoniche, è situata la reception principale, accompagnata da due sale d'attesa, due bagni e ben 11 locali, di cui 9 sono studi attrezzati, 2 in fase di allestimento. Al piano terra si trovano una sala dattesa, due studi ed un bagno, con vetrine che si affacciano direttamente sulla strada del centro, garantendo ottima visibilità. Il Centro Medico Polispecialistico Medical House Cmp Sas, offre competenza e massima professionalità in ambito medico sanitario con lausilio ed il supporto di esami diagnostici quali ecografie, ecocolordoppler, radiografie, esami di laboratorio, test genetici, gastroscopie e colonscopie, ecografie ed ecocolordoppler cardiaco, TSA, arterioso e venoso arti inferiori, aorta addominale e renale, spirometria, Ecg a riposo, Ecg dinamico Holter 24H e Multiday(da 1 a 7 gg), Holter Pressorio. Uno staff di medici e specialisti altamente qualificati, che possono vantare una consolidata esperienza, apportano valore e prestigio a questa struttura. Il centro accogliente e ben curato gode di riscaldamento autonomo e di un sistema di aerazione meccanica forzata per la ventilazione interna così da garantire ambienti salubri e confortevoli. I locali sono in affitto. Questa è un'opportunità unica per rilevare un'attività ben avviata con una clientela fidelizzata e consolidata in costante crescita. Per ulteriori informazioni e visite, contattateci!
Dati principali
| Riferimento | U13173 |
| Data annuncio | 15/05/2025 |
| Contratto | Vendita |
| Tipologia | Azienda agricola |
| Superficie | 365 m2 |
| Locali | più di 5 (11 altro), 3 bagni |
| Piano | Su più livelli, 2 totali |
| Occupato | Libero |
| Arredamento | Completo |
Caratteristiche
Costi
| Prezzo | 390.000 € |
| Prezzo al m2 | 1.068 €/m2 |
Efficienza energetica
| Stato | Ottimo |
| Riscaldamento | Autonomo |
| Classe energetica | G |
| Indice di prestazione energetica (IPE) | 168 kWh/m2 anno |
Planimetrie
Indirizzo e mappa
Via Marconi
57, Ispra
Annuncio senza mappa,
prova a chiedere la posizione all'inserzionista
prova a chiedere la posizione all'inserzionista
Calcolo mutuo
Prezzo di vendita:
Anticipo
20,00
Mutuo
80,00
Tasso: -+
Rata: 1.115 al mese
I risultati sono una stima indicativa basata sui dati inseriti e non costituiscono un’offerta finanziaria.
Inserzionista
Chiama
CONTATTA


