Ufficio Piazzale Europa 2, Gallarate
€ 175.000
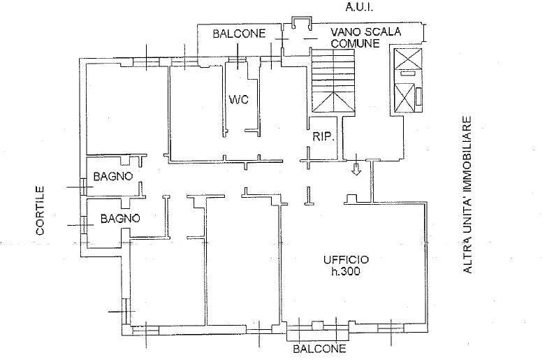
GALLARATE CENTRO - UFFICIO AD USO INVESTIMENTO Nel centro di Gallarate, a pochi passi dalla stazione ferroviaria e nelle immediate vicinanze dell'autostrada A8, di fronte all'autosilo che ne agevola il parcheggio, proponiamo in vendita UFFICIO AD USO INVESTIMENTO. La "residenza Europa" è degli anni 70 ma grazie alle costanti manutenzioni è in buone condizioni ed essendo un complesso formato da numerosi uffici oltre che ad abitazioni è perfetta per attività di carattere commerciale. L'immobile di circa 180 mq è situato al 2° piano, è composto da sei locali, ripostiglio, tre bagni ed un balcone oltre a cantina. Possibilità di acquistare un box auto al piano interrato ad 15.000,00. L'ufficio si presenta in ordine con ambienti luminosi, tutti serviti da aria condizionata e cablati. L'immobile attualmente è affittato ad un canone che garantisce una rendita superiore al 7%. In fase di certificazione energetica.
Dati principali
| Riferimento | U13086 |
| Data annuncio | 15/05/2025 |
| Contratto | Vendita |
| Tipologia | Ufficio |
| Superficie | 180 m2 |
| Locali | più di 5 (6 altro), 3 bagni |
| Piano | 2 di 7 totali |
| Occupato | Occupato da Proprietario |
Caratteristiche
Costi
| Prezzo | 175.000 € |
| Prezzo al m2 | 972 €/m2 |
Efficienza energetica
| Stato | Buono |
| Riscaldamento | Centralizzato |
| Classe energetica | G |
| Indice di prestazione energetica (IPE) | 180 kWh/m2 anno |
Planimetrie
Indirizzo e mappa
Piazzale Europa
2, Gallarate
Annuncio senza mappa,
prova a chiedere la posizione all'inserzionista
prova a chiedere la posizione all'inserzionista
Calcolo mutuo
Prezzo di vendita:
Anticipo
20,00
Mutuo
80,00
Tasso: -+
Rata: 500 al mese
I risultati sono una stima indicativa basata sui dati inseriti e non costituiscono un’offerta finanziaria.
Inserzionista
Chiama
CONTATTA


