Rustico Via D'Annunzio, Sannicola
€ 55.000
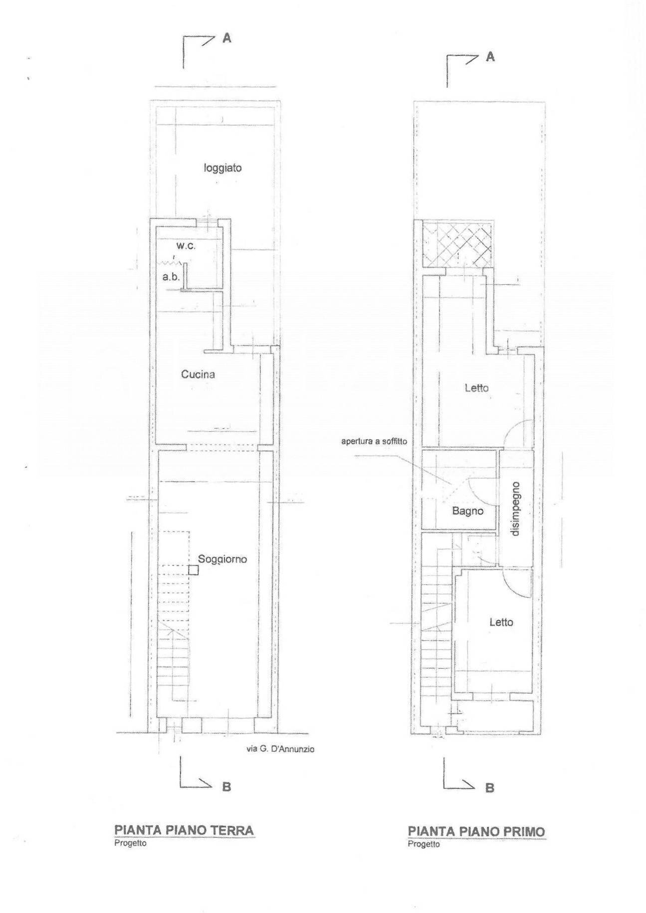
CHIESANUOVA RUSTICO COMPLETO DI IMPIANTI Puglia, Salento, Sannicola. Lady House Immobiliare, propone in vendita nella graziosa frazione di Chiesanuova immobile allo stato rustico collocato a pochi passi dal centro del paese e a pochi km dallo splendido mare della città di Gallipoli. Labitazione, disposta su più livelli, è strutturata come segue: al piano terra, ampio soggiorno con cucina a vista, bagno e comodo giardino; al primo piano, due luminose camere da letto dotate entrambe di pratici balconi, ampio bagno con lucernario. Completa la proprietà un lastrico solare provvisto di vano tecnico adibito a lavanderia. Predisposizione per tutti gli impianti. Ottima opportunità! Per info e/o appuntamento Tel 0833.18.21.211 / 380.470.54.31 e-mail: [email protected] CHI SIAMO Lady House Immobiliare nasce dalla passione di professionisti che operano nel settore dellintermediazione immobiliare da oltre 20 anni. Consulenti dedicati, leaders in Salento come PROPERTY FINDER, offriranno un supporto professionale per la ricerca del giusto investimento. Uno dei punti di forza del brand è la collaborazione tra agenti: i clienti avranno a disposizione non solo le offerte immobiliari proposte in sede, ma anche quelle gestite da altre agenzie. La pluriennale esperienza ha consentito di creare un vero e proprio contenitore di servizi a sostegno del cliente. La joint venture, con avvocati, tecnici, arredatori e home stager, permette di risolvere problematiche sempre più specifiche, in un mercato che cambia continuamente.
Dati principali
| Riferimento | LH_713 |
| Data annuncio | 15/05/2025 |
| Contratto | Vendita |
| Tipologia | Rustico |
| Superficie | 100 m2 |
| Locali | 4 (2 camere da letto, 2 altro), 2 bagni, cucina non presente |
| Piano | Terra, 2 totali |
| Tipo di costruzione | Media |
| Occupato | Libero |
| Box auto | Assente |
| Arredamento | Assente |
Caratteristiche
Costi
| Prezzo | 55.000 € |
| Prezzo al m2 | 550 €/m2 |
Efficienza energetica
| Riscaldamento | Autonomo |
| Tipo Alimentazione Riscaldamento | Altro |
| Classe energetica | Immobile esente da certificazione energetica |
Planimetrie
Indirizzo e mappa
Via D'Annunzio, Sannicola
Annuncio senza mappa,
prova a chiedere la posizione all'inserzionista
prova a chiedere la posizione all'inserzionista
Calcolo mutuo
Prezzo di vendita:
Anticipo
20,00
Mutuo
80,00
Tasso: -+
Rata: 157 al mese
I risultati sono una stima indicativa basata sui dati inseriti e non costituiscono un’offerta finanziaria.
Inserzionista

Lady House Srl
Via Lecce, 23/A, Gallipoli
Mostra Telefono
Mostra Cellulare
Chiama
CONTATTA

