Attico Via Trieste 33, Azzano Decimo
€ 455.000
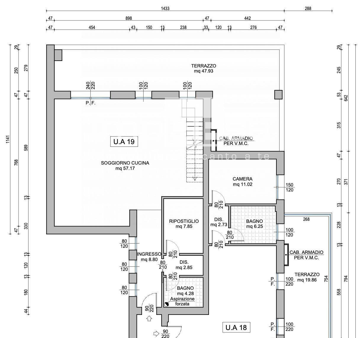
Attico di nuova costruzione su due livelli con terrazzi abitabili ad Azzano Decimo Attico su due livelli di 217 mq con terrazzi abitabili di nuova costruzione situato al quarto e quinto piano di una palazzina servita da ascensore. Al primo livello l'immobile è composto da ingresso di 9 mq, bagno di servizio con attacchi per lavanderia, ripostiglio di quasi 8 mq e soggiorno di 57 mq con angolo cottura e doppia porta finestra scorrevole che affaccia sul terrazzo a loggia abitabile di 48 mq con vano tecnico. Al secondo livello trova posto la zona notte comprensiva di disimpegno di 15 mq dal quale è possibile accedere al terrazzo di 90 mq, due camere doppie di 12 mq e 12,20 mq, il secondo bagno e la camera matrimoniale di 14,60 mq anch'essa con affaccio sul terrazzo, con cabina armadio e bagno privato finestrato. Materiali utilizzati per la realizzazione a basso impatto ambientale, classe energetica A4, impianto fotovoltaico di 10Kw per le zone comuni, cappotto esterno e massimo confort acustico e termico nelle pareti divisorie. Infissi esterni in PVC con zanzariere, serramenti interni laccati bianchi, pavimentazione in legno di Rovere o Iroko o grès porcellanato. Riscaldamento centralizzato a pavimento con pompa di calore con quadro di controllo e contabilizzazione, impianto di raffreddamento a pavimento, impianto di ventilazione controllata per scambio d'aria interno. Portoncino blindato e videocitofono. Foto pubblicate a puro scopo indicativo. Per maggiori informazioni su questo attico di nuova costruzione su due livelli con terrazzi abitabili ad Azzano Decimo, contatta l'agenzia impREsa di Pordenone al numero 0434-311665 chiedendo dell'immobile con rif. I/GM020, oppure visitate il sito www.impresaimmobiliare.com
Dati principali
| Riferimento | I/GM020 |
| Data annuncio | 15/05/2025 |
| Contratto | Vendita |
| Tipologia | Attico |
| Superficie | 217 m2 |
| Locali | 4 (3 camere da letto, 1 altro), 3 bagni, cucina angolo cottura |
| Piano | Attico, 5 totali |
| Tipo di costruzione | Signorile |
| Occupato | Libero |
| Box auto | Assente |
| Arredamento | Assente |
Caratteristiche
Costi
| Prezzo | 455.000 € |
| Prezzo al m2 | 2.097 €/m2 |
Efficienza energetica
| Stato | Ottimo |
| Riscaldamento | Autonomo |
| Tipo Impianto Di Riscaldamento | a pavimento |
| Tipo Alimentazione Riscaldamento | Fotovoltaico |
| Classe energetica | A4 |
Planimetrie
Indirizzo e mappa
Via Trieste
33, Azzano Decimo
Annuncio senza mappa,
prova a chiedere la posizione all'inserzionista
prova a chiedere la posizione all'inserzionista
Calcolo mutuo
Prezzo di vendita:
Anticipo
20,00
Mutuo
80,00
Tasso: -+
Rata: 1.301 al mese
I risultati sono una stima indicativa basata sui dati inseriti e non costituiscono un’offerta finanziaria.
Inserzionista

impREsa Pordenone
via Bertossi, 4, Pordenone
Mostra Telefono
Chiama
CONTATTA

