Appartamento Via Marche 43, Galatina
€ 110.000
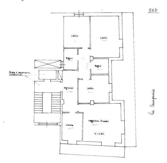
Galatina Appartamento luminoso e spazioso in zona centrale Nel cuore di Galatina, in via Marche, Coldwell Banker Galatina propone in vendita un appartamento situato al quinto piano di un edificio dotato di ascensore, in una delle zone più centrali e comode della città. La superficie complessiva è di 149 mq, distribuiti in modo funzionale e pensato per offrire vivibilità in ogni ambiente. L'immobile si presenta in buono stato, già abitabile, ed è particolarmente luminoso grazie alla posizione e alla presenza di ampie aperture. Lingresso accoglie in uno spazio ampio e ben definito, che introduce a un soggiorno-pranzo arioso, alla cucina separata e a una zona notte composta da tre camere da letto. I due bagni, entrambi completi e recentemente riammodernati, rispondono perfettamente alle esigenze di una famiglia. Due balconi molto spaziosi completano la proprietà: uno dei quali, terrazzato, rappresenta un vero e proprio valore aggiunto, grazie alle dimensioni generose che lo rendono perfettamente abitabile. Questo appartamento rappresenta una scelta ideale per chi è alla ricerca di una residenza principale elegante e funzionale, in una posizione strategica e ben collegata con il resto della città. Galatina gode di una posizione strategica, distando circa 20 km da Lecce, la splendida capitale del Barocco, 15 km da Gallipoli, rinomata per le sue spiagge incantevoli, 20 km da Otranto, con il suo affascinante centro storico e 50 km dall'aeroporto di Brindisi, agevolando gli spostamenti e permettendo di esplorare facilmente tutte le bellezze del Salento.
Dati principali
| Riferimento | CBI104-622-286 |
| Data annuncio | 15/05/2025 |
| Contratto | Vendita |
| Tipologia | Appartamento |
| Superficie | 149 m2 |
| Locali | 5 (3 camere da letto, 2 altro), 2 bagni, cucina abitabile |
| Piano | 5 di 6 totali |
| Tipo di costruzione | Media |
| Occupato | Libero |
| Box auto | Assente |
| Arredamento | Assente |
Caratteristiche
Costi
| Prezzo | 110.000 € |
| Prezzo al m2 | 738 €/m2 |
Efficienza energetica
| Stato | Buono |
| Riscaldamento | Autonomo |
| Classe energetica | D |
| Indice di prestazione energetica (IPE) | 129 kWh/m2 anno |
Planimetrie
Indirizzo e mappa
Via Marche
43, Galatina
Annuncio senza mappa,
prova a chiedere la posizione all'inserzionista
prova a chiedere la posizione all'inserzionista
Calcolo mutuo
Prezzo di vendita:
Anticipo
20,00
Mutuo
80,00
Tasso: -+
Rata: 315 al mese
I risultati sono una stima indicativa basata sui dati inseriti e non costituiscono un’offerta finanziaria.
Inserzionista

Coldwell Banker Gruppo Bodini
Piazza Dante Alighieri, 43, Galatina
Mostra Telefono
Mostra Cellulare
Chiama
CONTATTA

