

Locale Commerciale Via Bernardino Luini 3/B, Torino
€ 130.000
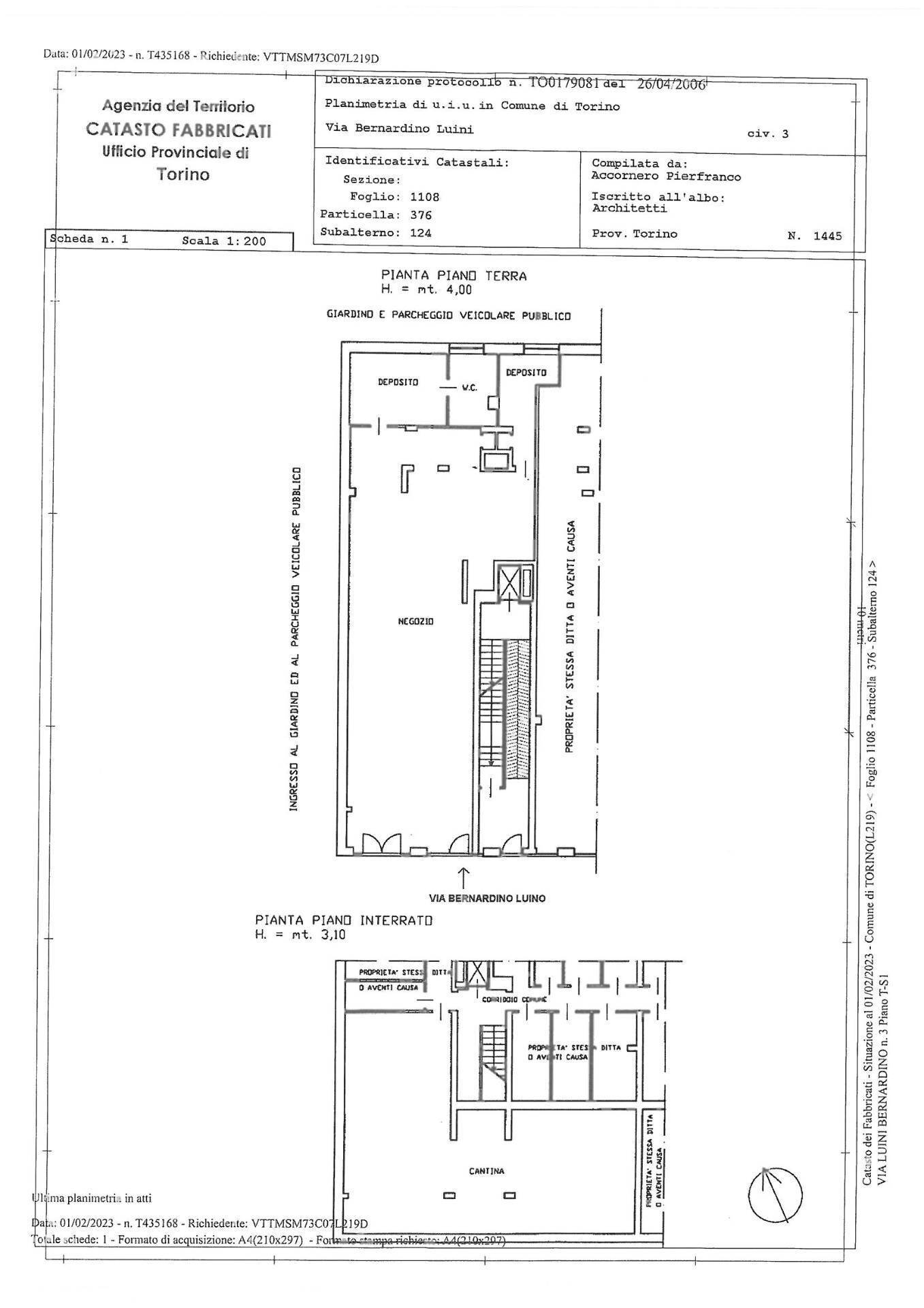
Locale commerciale in vendita in Via Bernardino Luini, Torino, situato in una delle zone più vivaci e commerciali della città. Questo ampio openspace di 170 m² offre un ambiente versatile, perfetto per adattarsi a diverse attività. Il locale dispone di un retro e servizio, garantendo funzionalità e praticità. La presenza di due ampie vetrine su strada assicura un'ottima visibilità, ideale per attrarre clienti e passanti. Inoltre, è inclusa un'ampia cantina che offre spazio aggiuntivo per lo stoccaggio o altre necessità operative. Situato al piano terra, questo spazio è facilmente accessibile, rendendolo una scelta perfetta per chi desidera stabilire la propria attività in una posizione strategica. Non perdere l'opportunità di visitare questo locale unico nel suo genere. Contattaci per ulteriori informazioni e per fissare una visita. Scopri il potenziale di questo spazio commerciale nel cuore pulsante di Torino!
Dati principali
| Riferimento | 1013034 |
| Data annuncio | 15/05/2025 |
| Contratto | Vendita |
| Tipologia | Locale Commerciale |
| Superficie | 170 m2 |
| Locali | 1 (1 altro), 1 bagno, cucina non presente |
| Piano | Terra |
| Occupato | Libero |
| Box auto | Assente |
| Arredamento | Assente |
Caratteristiche
Costi
| Prezzo | 130.000 € |
| Prezzo al m2 | 765 €/m2 |
Efficienza energetica
| Stato | Buono |
| Riscaldamento | Autonomo |
| Classe energetica | F |
| Indice di prestazione energetica (IPE) | 219 kWh/m2 anno |
Planimetrie
Indirizzo e mappa
Via Bernardino Luini
3/B, Torino
Annuncio senza mappa,
prova a chiedere la posizione all'inserzionista
prova a chiedere la posizione all'inserzionista
Calcolo mutuo
Prezzo di vendita:
Anticipo
20,00
Mutuo
80,00
Tasso: -+
Rata: 372 al mese
I risultati sono una stima indicativa basata sui dati inseriti e non costituiscono un’offerta finanziaria.
Inserzionista

Compagnia Immobiliare Collegno
Viale XXIV Maggio, 5, Collegno
Mostra Telefono
Chiama
CONTATTA