Casa indipendente Via Roma 108, Torre Mondovì
€ 58.000
In Torre Mondovì con accesso dalla centralissima via Roma, eredi vendono intero fabbricato da cielo a terra, libero a tre lati con annesso terreno esclusivo pertinenziale.
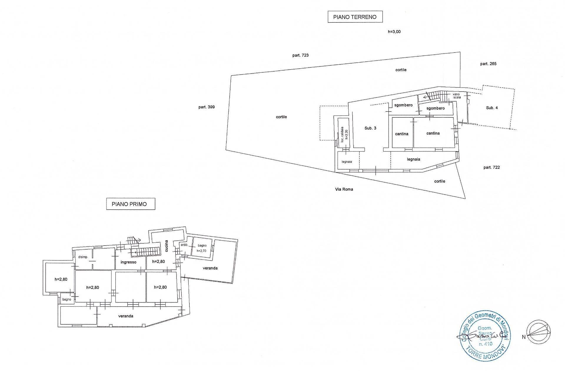
Il fabbricato civile si sviluppa su due livelli ed è completamente libero al rogito, pronto per essere abitato, risulta composto da piano cortile da due ampie autorimesse, locali di sgombero, cantina e vano pluriuso. Il piano primo del fabbricato adibito ad abitazione è accessibile sia da comoda scala interna, sia da accesso pedonale/carrabile retrostante.
L'appartamento è composto da ampio e comodo disimpegno, cucina abitabile, sala tre ampie camere letto, bagno con servizi, ulteriori due vani/camere pluriuso con wc sullo stesso livello di piano. Ampie, luminose e panoramiche terrazze verandate con accesso dalle varie camere, permettono di utilizzare gli spazi esterni in tutti i periodi dell'anno.
Tutti gli ambienti sono dotati di impianto riscaldamento a radiatori. La casa è circondata da un ampio giardino privato, perfetto per trascorrere piacevoli momenti all'aperto in compagnia della famiglia e degli amici. Il terreno di proprietà offre la possibilità di coltivare ortaggi e piante aromatiche.
In sintesi, vi stiamo proponendo un'ottima soluzione abitativa adatta a chi desidera vivere in una casa indipendente, immersa nel verde in contesto residenziale tranquillo necessario per una vita confortevole.
Contattaci per fissare un appuntamento e scoprire di persona tutti i dettagli di questo immobile
Il fabbricato civile si sviluppa su due livelli ed è completamente libero al rogito, pronto per essere abitato, risulta composto da piano cortile da due ampie autorimesse, locali di sgombero, cantina e vano pluriuso. Il piano primo del fabbricato adibito ad abitazione è accessibile sia da comoda scala interna, sia da accesso pedonale/carrabile retrostante.
L'appartamento è composto da ampio e comodo disimpegno, cucina abitabile, sala tre ampie camere letto, bagno con servizi, ulteriori due vani/camere pluriuso con wc sullo stesso livello di piano. Ampie, luminose e panoramiche terrazze verandate con accesso dalle varie camere, permettono di utilizzare gli spazi esterni in tutti i periodi dell'anno.
Tutti gli ambienti sono dotati di impianto riscaldamento a radiatori. La casa è circondata da un ampio giardino privato, perfetto per trascorrere piacevoli momenti all'aperto in compagnia della famiglia e degli amici. Il terreno di proprietà offre la possibilità di coltivare ortaggi e piante aromatiche.
In sintesi, vi stiamo proponendo un'ottima soluzione abitativa adatta a chi desidera vivere in una casa indipendente, immersa nel verde in contesto residenziale tranquillo necessario per una vita confortevole.
Contattaci per fissare un appuntamento e scoprire di persona tutti i dettagli di questo immobile
Dati principali
| Riferimento | 1003 |
| Data annuncio | 15/05/2025 |
| Contratto | Vendita |
| Tipologia | Casa indipendente |
| Superficie | 319 m2 |
| Locali | più di 5 (3 camere da letto, 8 altro), 2 bagni, cucina abitabile |
| Piano | Intero edificio, 2 totali |
| Tipo di costruzione | Media |
| Occupato | Libero |
| Box auto | Doppio |
| Arredamento | Assente |
Caratteristiche
Costi
| Prezzo | 58.000 € |
| Prezzo al m2 | 182 €/m2 |
Efficienza energetica
| Stato | Buono |
| Riscaldamento | Autonomo |
| Classe energetica | G |
| Indice di prestazione energetica (IPE) | 490 kWh/m2 anno |
Planimetrie
Video
Indirizzo e mappa
Via Roma
108, Torre Mondovì
Annuncio senza mappa,
prova a chiedere la posizione all'inserzionista
prova a chiedere la posizione all'inserzionista
Calcolo mutuo
Prezzo di vendita:
Anticipo
20,00
Mutuo
80,00
Tasso: -+
Rata: 166 al mese
I risultati sono una stima indicativa basata sui dati inseriti e non costituiscono un’offerta finanziaria.
Inserzionista

CAMPERI IMMOBILIARE
Via Alessandria, 9, Mondovì
Mostra Telefono
Mostra Cellulare
Chiama
CONTATTA

