Magazzino contrada torreamando, Ariano Irpino
€ 340.000
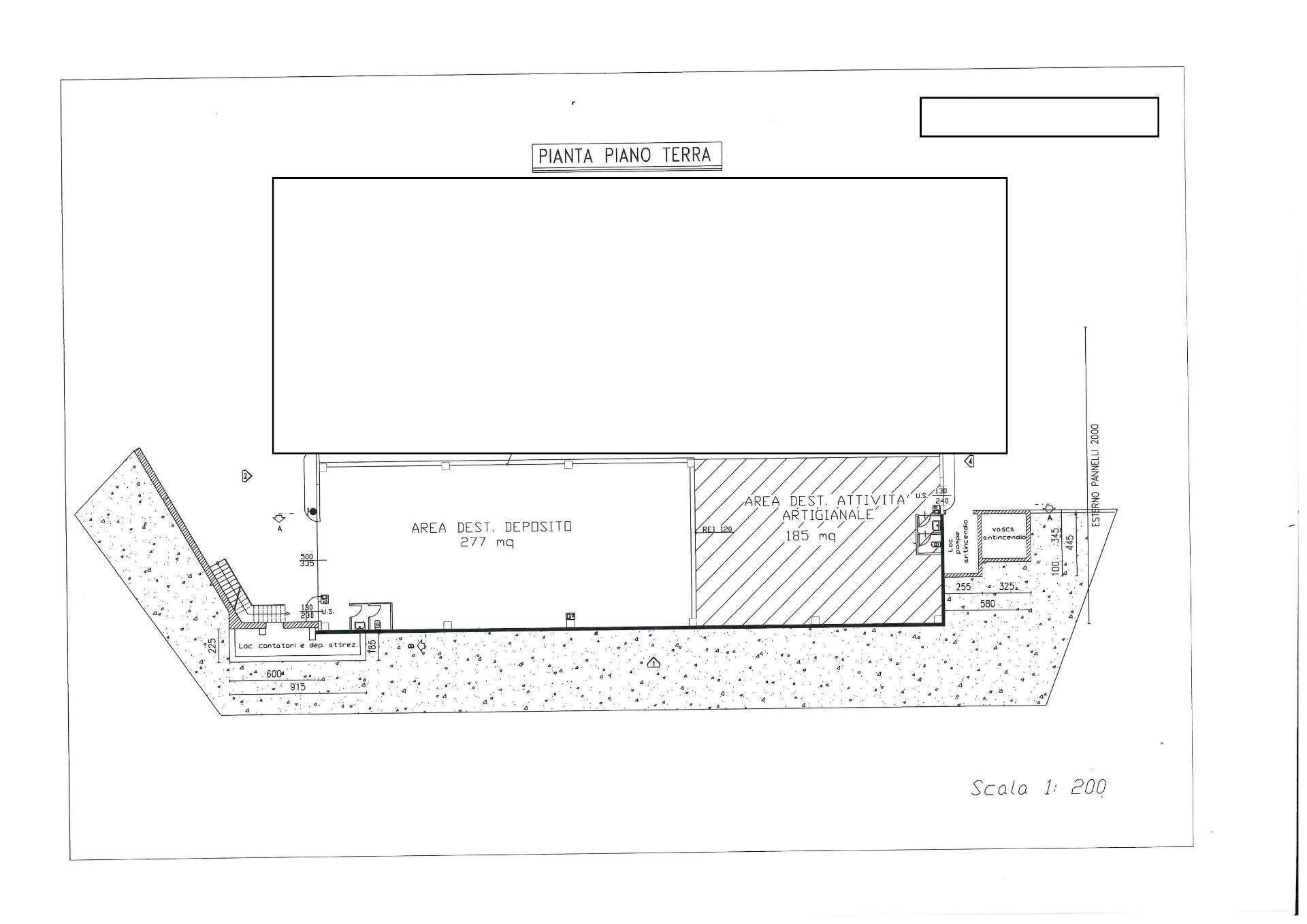
In area industriale ed in forte espansione commerciale, a pochi km dalla Stazione Hirpinia e dall'uscita dell'autostrada di Grottaminarda La Real House Immobiliare propone in vendita capannone industriale di circa 620 mq completo di piazzale esterno di 400 mq. Limmobile si sviluppa su due livelli, al piano terra open space di 300 mq con altezza utile di 4,50 metri e locale caldaia di 20 mq. Al piano primo deposito/magazzino di circa 250 mq con altezza utile 3.90, è possibile accedervi tramite scala o piazzale esterno, è interamente finestrata su due lati e comprende ulteriori 50 mq composti da 3 uffici e bagni. L'acquisto del suddetto immobile rientra nel credito d'imposta per investimenti ZES, le imprese possono beneficiare di agevolazioni fiscali ed amministrative commisurato al costo complessivo di beni acquistati, come gli immobili di nuova costruzione, valida fino all'anno 2028. Ideale per ogni attività.
Dati principali
| Riferimento | ar907 |
| Data annuncio | 15/05/2025 |
| Contratto | Vendita |
| Tipologia | Magazzino |
| Superficie | 620 m2 |
| Occupato | Libero |
Costi
| Prezzo | 340.000 € |
| Prezzo al m2 | 548 €/m2 |
Efficienza energetica
| Stato | Scarso |
| Tipo Alimentazione Riscaldamento | Altro |
| Classe energetica | Immobile esente da certificazione energetica |
Planimetrie
Indirizzo e mappa
contrada torreamando, Ariano Irpino
Annuncio senza mappa,
prova a chiedere la posizione all'inserzionista
prova a chiedere la posizione all'inserzionista
Calcolo mutuo
Prezzo di vendita:
Anticipo
20,00
Mutuo
80,00
Tasso: -+
Rata: 972 al mese
I risultati sono una stima indicativa basata sui dati inseriti e non costituiscono un’offerta finanziaria.
Inserzionista

Real House Immobiliare Srls
Piazza Pebliscito 15, Ariano Irpino
Mostra Telefono
Mostra Cellulare
Chiama
CONTATTA

