Bilocale Porto San Giorgio
€ 167.000
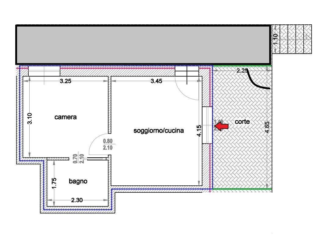
PROPRIO COME LO CERCAVI !!!! -*PICCOLO - VICINO A TUTTO - GIARDINETTO PRIVATO . L' agenzia immobiliare Aedes propone per la vendita in esclusiva piccolo e comodo appartamento al piano terra in zona vicinissima al centro , al mare ed ai servizi . L' appartamento è di ultima generazione, viene ceduto completamente arredato e climatizzato .L' unità immobiliare è composta da ingresso privato su giardinetto esclusivo , soggiorno con angolo cottura , camera da letto matrimoniale e bagno . FACILITA' DI PARCHEGGIO . Rif A538 . C.e. '' A3'' Prezzo 167.000,00
Dati principali
| Riferimento | A538 |
| Data annuncio | 15/05/2025 |
| Contratto | Vendita |
| Tipologia | Appartamento |
| Superficie | 35 m2 |
| Locali | 2 (1 camera da letto, 1 altro), 1 bagno, cucina a vista |
| Piano | Terra |
| Tipo di costruzione | Signorile |
| Occupato | Libero |
| Box auto | Assente |
| Arredamento | Completo |
Caratteristiche
Costi
| Prezzo | 167.000 € |
| Prezzo al m2 | 4.771 €/m2 |
Efficienza energetica
| Stato | Ottimo |
| Riscaldamento | Autonomo |
| Tipo Impianto Di Riscaldamento | a pavimento |
| Classe energetica | A3 |
Planimetrie
Indirizzo e mappa
Porto San Giorgio
Annuncio senza mappa,
prova a chiedere la posizione all'inserzionista
prova a chiedere la posizione all'inserzionista
Calcolo mutuo
Prezzo di vendita:
Anticipo
20,00
Mutuo
80,00
Tasso: -+
Rata: 478 al mese
I risultati sono una stima indicativa basata sui dati inseriti e non costituiscono un’offerta finanziaria.
Inserzionista

AG. IMMOBILIARE AEDES DI SARA ROMBINI
VIALE DEI PINI N.99, Porto San Giorgio
Mostra Telefono
Mostra Cellulare
Chiama
CONTATTA

