Laboratorio C.da Grazie Fiastra 50, Loro Piceno
€ 1.400.000
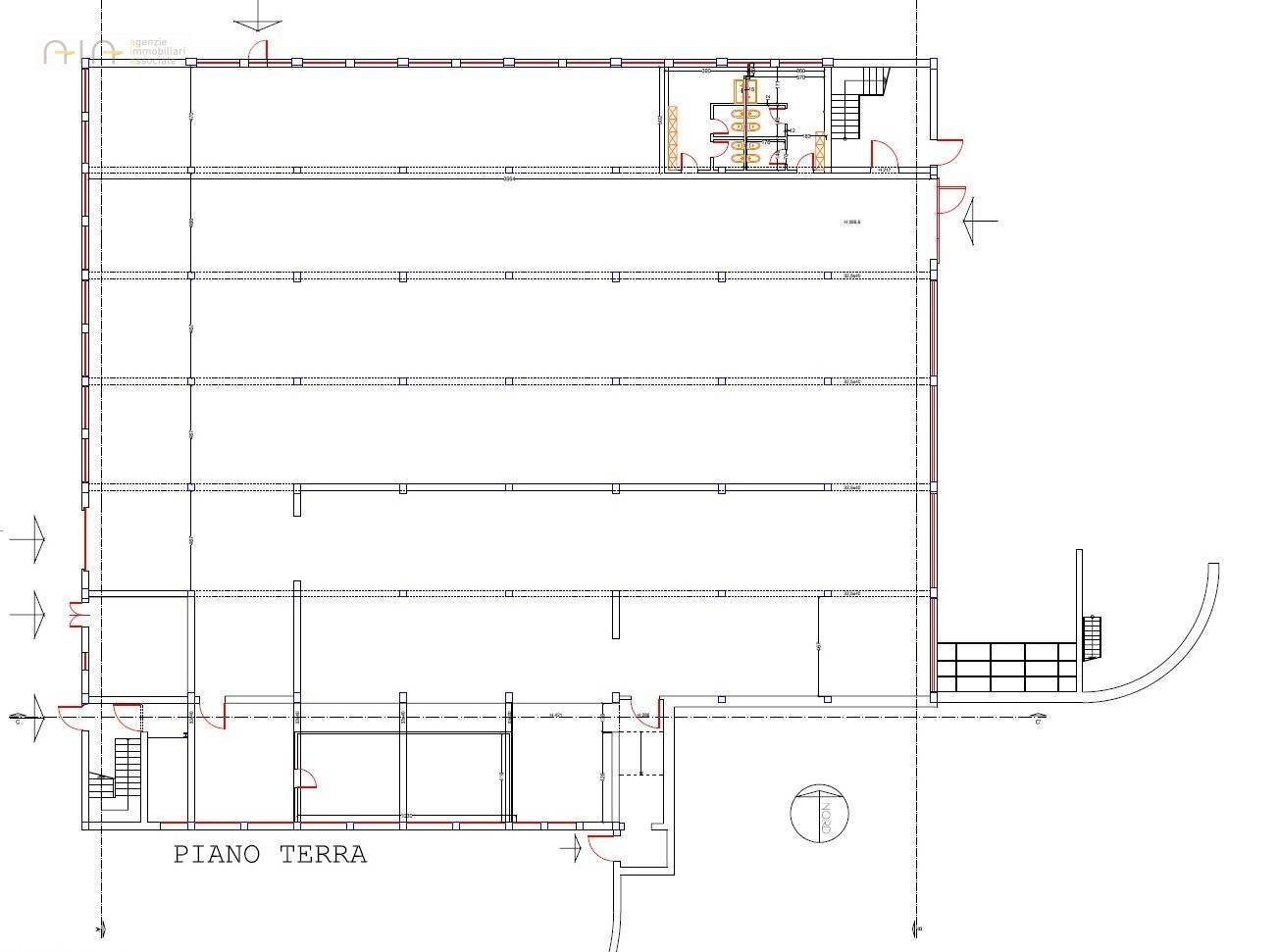
Complesso produttivo, completamente ristrutturato post-sisma nel 2024, per una superficie coperta di complessivi 2700 mq su due livelli. Il piano terra, di 1350 mq, è composto da zona destinata a laboratorio e magazzino (H. mt 3,60) per 1200 mq circa e zona mensa, servizi igienici e spogliatoi per circa 160 mq. Il piano superiore, di pari dimensioni, è adibito a laboratorio per circa 1200 mq (H. mt 3,30) e uffici e servizi per complessivi 160 mq. Esternamente troviamo una corte di pertinenza completamente recintata, in parte asfaltata e in parte sistemata a verde e parcheggi privati, di circa 6000 mq, in cui è presente anche in annesso. Il capannone è stato realizzato con accorgimenti tecnico strutturali funzionali e completamente a norma, così come sono state rispettate tutte le direttive in materia antinfortunistica ed antisismica. Al servizio nel fabbricato è stata realizzata una cabina elettrica. Vista la posizione, lo stato e la consistenza dell'intero immobile compresi gli accessori annessi e la sistemazione esterna delle aree destinate a parcheggio e verde, questa proprietà è ideale per iniziare o spostare un'attività artigianale o industriale in zona comoda e ben servita. Localizzato in posizione periferica, comunque in zona artigianale/produttiva, risulta facilmente raggiungibile, sia per la clientela che per i fornitori stessi, grazie alla vicinanza alla SS78 Picena (2 Km circa), e quindi alla superstrada SS77 Val di Chienti, che collegano facilmente l'immobile all'autostrada A14, alla città di Macerata ed Ascoli Piceno oltre che al versante tirrenico.
Dati principali
| Riferimento | 33355 |
| Data annuncio | 15/05/2025 |
| Contratto | Vendita |
| Tipologia | Laboratorio |
| Superficie | 2700 m2 |
| Occupato | Libero |
Costi
| Prezzo | 1.400.000 € |
| Prezzo al m2 | 519 €/m2 |
Efficienza energetica
| Stato | Ottimo |
| Tipo Alimentazione Riscaldamento | Altro |
| Classe energetica | Immobile esente da certificazione energetica |
Planimetrie
Indirizzo e mappa
C.da Grazie Fiastra
50, Loro Piceno
Annuncio senza mappa,
prova a chiedere la posizione all'inserzionista
prova a chiedere la posizione all'inserzionista
Calcolo mutuo
Prezzo di vendita:
Anticipo
20,00
Mutuo
80,00
Tasso: -+
Rata: 4.004 al mese
I risultati sono una stima indicativa basata sui dati inseriti e non costituiscono un’offerta finanziaria.
Inserzionista

Fioravanti Agenzia Immobiliare
Piazza Garibaldi n° 8, Comunanza
Mostra Telefono
Mostra Cellulare
Chiama
CONTATTA

