Appartamento Venezia
€ 1.650.000
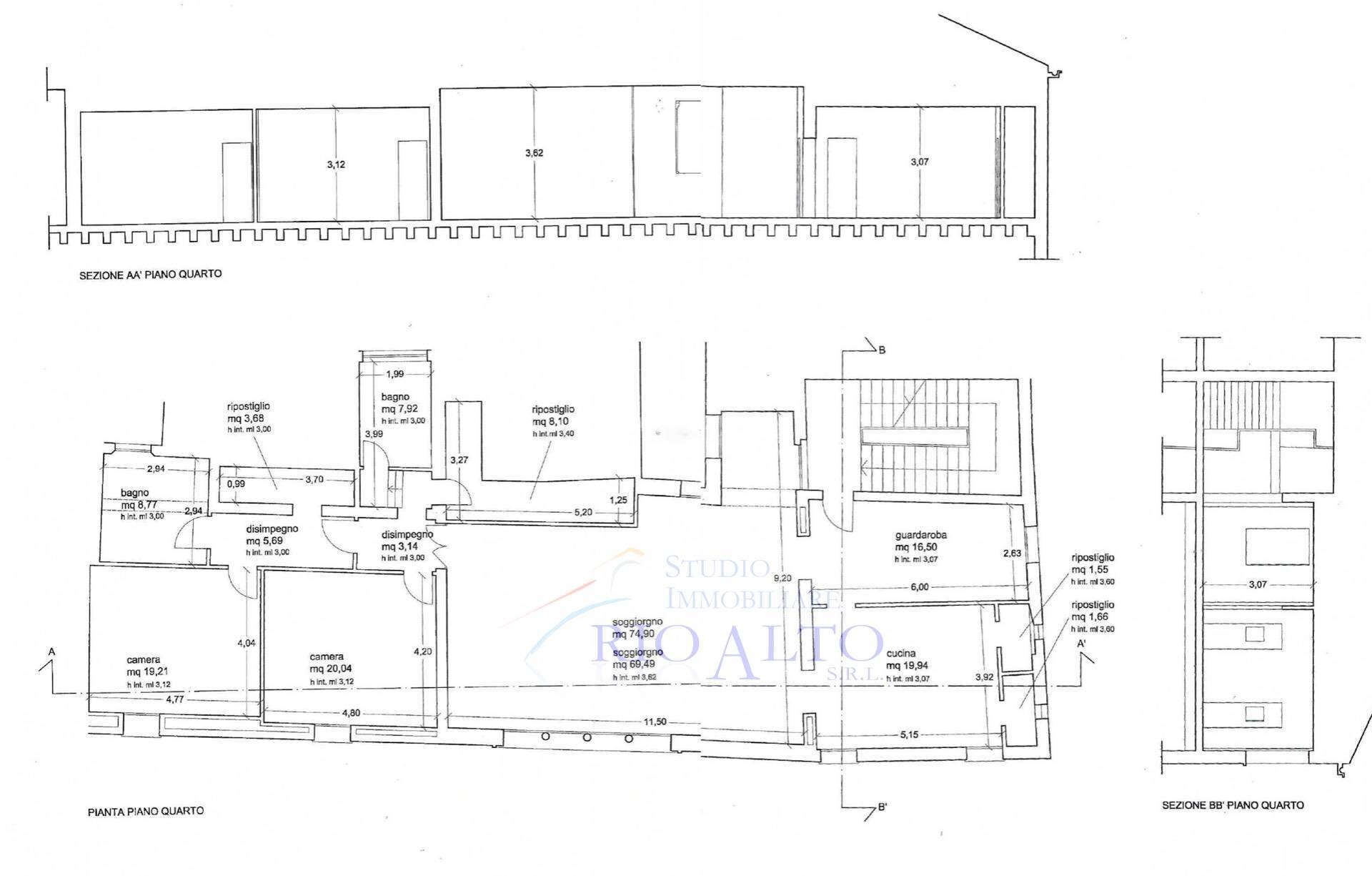
VENEZIA CASTELLO a pochi passi da SANTA MARIA FORMOSA su palazzo storico vincolato stupendo piano di palazzo molto luminoso, in buone condizioni, con vista panoramica sui tetti, appartamento composto da ingresso, cucina abitabile, ampio salone, 3 camere doppie, lavanderia, due bagni, guardaroba e ripostigli. magazzino al piano terra.
Autonomo gas e aria condizionata .
1.650.000 trattabili
riferimento CA530
Autonomo gas e aria condizionata .
1.650.000 trattabili
riferimento CA530
Dati principali
| Riferimento | CA530 |
| Data annuncio | 15/05/2025 |
| Contratto | Vendita |
| Tipologia | Appartamento |
| Superficie | 215 m2 |
| Locali | più di 5 (3 camere da letto, 8 altro), 2 bagni, cucina abitabile |
| Piano | 3 di 7 totali |
| Tipo di costruzione | Signorile |
| Occupato | Libero |
| Arredamento | Parziale |
Costi
| Prezzo | 1.650.000 € |
| Prezzo al m2 | 7.674 €/m2 |
Efficienza energetica
| Stato | Buono |
| Riscaldamento | Autonomo |
| Classe energetica | F |
| Indice di prestazione energetica (IPE) | 146 kWh/m2 anno |
Planimetrie
Virtual tour
Indirizzo e mappa
Venezia
Annuncio senza mappa,
prova a chiedere la posizione all'inserzionista
prova a chiedere la posizione all'inserzionista
Calcolo mutuo
Prezzo di vendita:
Anticipo
20,00
Mutuo
80,00
Tasso: -+
Rata: 4.719 al mese
I risultati sono una stima indicativa basata sui dati inseriti e non costituiscono un’offerta finanziaria.
Inserzionista

Studio Immobiliare Rio Alto
San Polo 56, Venezia
Mostra Telefono
Chiama
CONTATTA

