Appartamento Via Voltattorni 32, San Benedetto del Tronto
€ 195.000
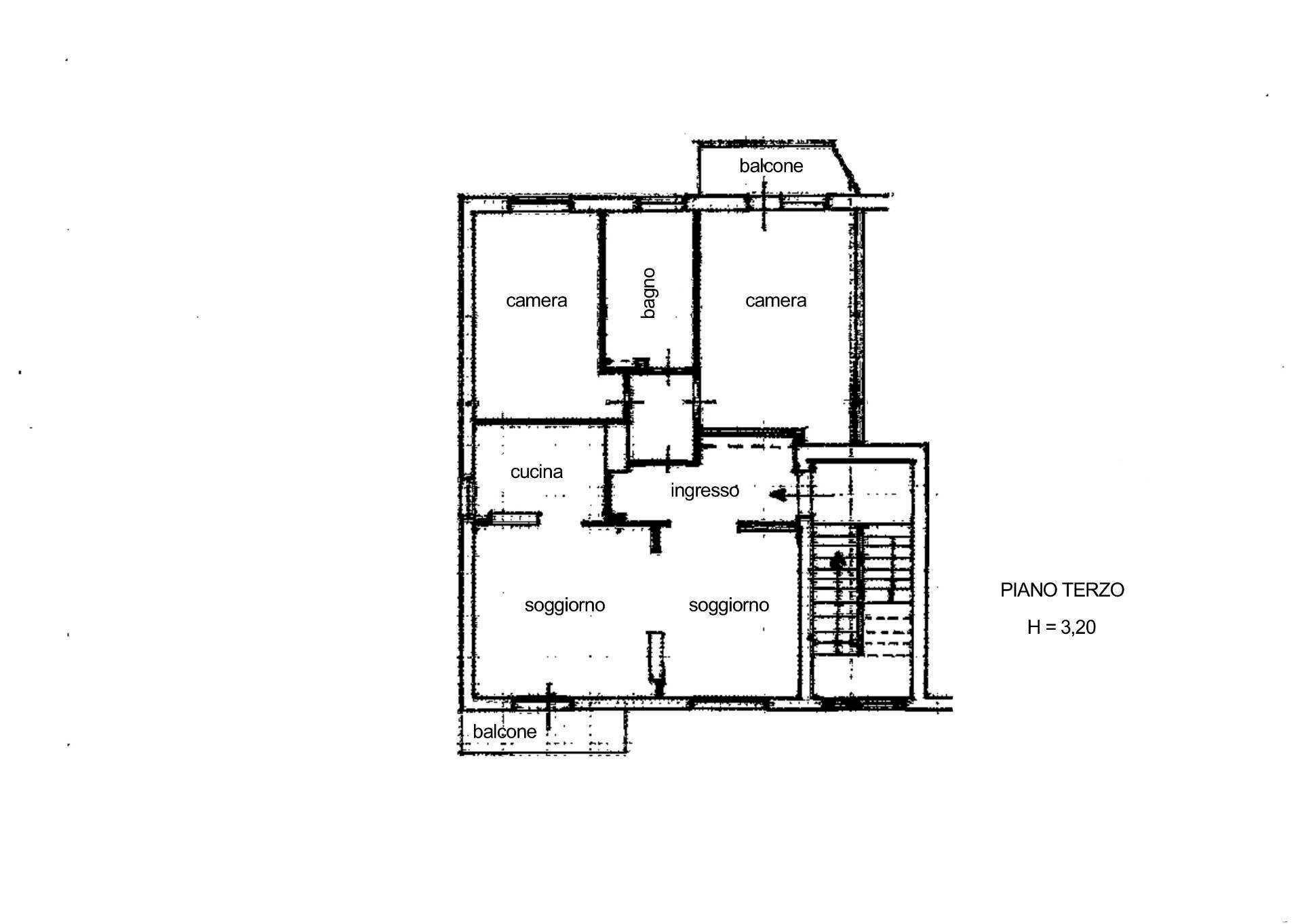
Appartamento al terzo piano senza ascensore, delle dimensioni di 105 mq circa composto da: ampio soggiorno, cucina abitabile, disimpegno, 2 camere camere da letto matrimoniali, 1 bagno e 2 balconi.
Completo di ampio fondaco al piano seminterrato capace anche per la rimessa di biciclette.
Buono stato di conservazione, con finiture tipiche della sua epoca costruttiva (anni '70) quali pavimentazioni in monocottura e marmittoni, infissi in alluminio nel reparto giorno e legno nel reparto notte - entrambi provvisti di vetri termici - clima nel reparto giorno e nella matrimoniale, impianti a norma.
Buona posizione a pochi passi dal mare e dai servizi.
N.B. Possibilità di ricavare agevolmente terza camera da letto o secondo bagno.
Completo di ampio fondaco al piano seminterrato capace anche per la rimessa di biciclette.
Buono stato di conservazione, con finiture tipiche della sua epoca costruttiva (anni '70) quali pavimentazioni in monocottura e marmittoni, infissi in alluminio nel reparto giorno e legno nel reparto notte - entrambi provvisti di vetri termici - clima nel reparto giorno e nella matrimoniale, impianti a norma.
Buona posizione a pochi passi dal mare e dai servizi.
N.B. Possibilità di ricavare agevolmente terza camera da letto o secondo bagno.
Dati principali
| Riferimento | 33393 |
| Data annuncio | 15/05/2025 |
| Contratto | Vendita |
| Tipologia | Appartamento |
| Superficie | 105 m2 |
| Locali | 5 (2 camere da letto, 3 altro), 1 bagno, cucina abitabile |
| Piano | 3 di 4 totali |
| Tipo di costruzione | Media |
| Occupato | Libero |
| Box auto | Assente |
| Arredamento | Assente |
Caratteristiche
Costi
| Prezzo | 195.000 € |
| Prezzo al m2 | 1.857 €/m2 |
Efficienza energetica
| Stato | Buono |
| Riscaldamento | Autonomo |
| Classe energetica | G |
| Indice di prestazione energetica (IPE) | 289 kWh/m2 anno |
Planimetrie
Indirizzo e mappa
Via Voltattorni
32, San Benedetto del Tronto
Annuncio senza mappa,
prova a chiedere la posizione all'inserzionista
prova a chiedere la posizione all'inserzionista
Calcolo mutuo
Prezzo di vendita:
Anticipo
20,00
Mutuo
80,00
Tasso: -+
Rata: 558 al mese
I risultati sono una stima indicativa basata sui dati inseriti e non costituiscono un’offerta finanziaria.
Inserzionista

Spina & Marchei
Viale De Gasperi 113, San Benedetto del Tronto
Mostra Telefono
Mostra Cellulare
Chiama
CONTATTA

