Bilocale Via Formentini 1, San Benedetto del Tronto
€ 280.000
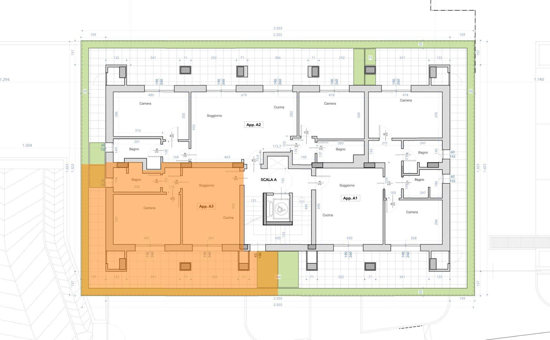
Proponiamo in vendita un raffinato appartamento di 47 m², situato al primo piano del prestigioso complesso residenziale Caroselli Garden House. L'immobile è composto da un ampio soggiorno con angolo cottura, una camera matrimoniale, un bagno finestrato con doccia, e un pratico disimpegno. La proprietà è arricchita da una terrazza loggiata esterna di ben 45 m², ideale per godersi la bella stagione all'aperto.
L'appartamento, pronto per la consegna, è rifinito con pavimentazione in parquet di rovere su tutta la superficie, infissi Shuko certificati e impianto di riscaldamento e raffrescamento canalizzato, controllabile tramite app per una gestione ottimale della temperatura in ogni stanza. L'unità è situata all'interno di un elegante fabbricato di cinque piani, accessibile esclusivamente ai residenti attraverso tastierino numerico, per garantire sicurezza e privacy.
Il complesso residenziale è circondato da un incantevole giardino interno e piante su tutte le balconate e logge esterne, con un sistema centrale di irrigazione che utilizza acqua recuperata in accumulo. Inoltre, ledificio è stato progettato in classe energetica NZEB (Near Zero Energy Building) con impianto fotovoltaico centrale da 44 kW e soluzioni ecocompatibili come il cappotto esterno e l'ottimizzazione dellirraggiamento naturale.
Posizione: L'appartamento si trova in una zona centrale, vicina a scuole, banche, farmacia, supermercati, e a soli 650 metri dal mare. Una soluzione ideale per chi cerca un immobile di prestigio, con un design moderno e impatto estetico distintivo, enfatizzato dalla suggestiva illuminazione notturna dell'intero complesso.
Note:
Garage disponibile a partire da 42.000, con predisposizione per ricarica auto elettriche (prezzo separato).
Cantina disponibile a partire da 10.000 (prezzo separato).
Posto auto esterno disponibile a partire da 26.000 allinterno del complesso (prezzo separato).
Nessuna commissione a carico dellacquirente.
L'appartamento, pronto per la consegna, è rifinito con pavimentazione in parquet di rovere su tutta la superficie, infissi Shuko certificati e impianto di riscaldamento e raffrescamento canalizzato, controllabile tramite app per una gestione ottimale della temperatura in ogni stanza. L'unità è situata all'interno di un elegante fabbricato di cinque piani, accessibile esclusivamente ai residenti attraverso tastierino numerico, per garantire sicurezza e privacy.
Il complesso residenziale è circondato da un incantevole giardino interno e piante su tutte le balconate e logge esterne, con un sistema centrale di irrigazione che utilizza acqua recuperata in accumulo. Inoltre, ledificio è stato progettato in classe energetica NZEB (Near Zero Energy Building) con impianto fotovoltaico centrale da 44 kW e soluzioni ecocompatibili come il cappotto esterno e l'ottimizzazione dellirraggiamento naturale.
Posizione: L'appartamento si trova in una zona centrale, vicina a scuole, banche, farmacia, supermercati, e a soli 650 metri dal mare. Una soluzione ideale per chi cerca un immobile di prestigio, con un design moderno e impatto estetico distintivo, enfatizzato dalla suggestiva illuminazione notturna dell'intero complesso.
Note:
Garage disponibile a partire da 42.000, con predisposizione per ricarica auto elettriche (prezzo separato).
Cantina disponibile a partire da 10.000 (prezzo separato).
Posto auto esterno disponibile a partire da 26.000 allinterno del complesso (prezzo separato).
Nessuna commissione a carico dellacquirente.
Dati principali
| Riferimento | 33226 |
| Data annuncio | 15/05/2025 |
| Contratto | Vendita |
| Tipologia | Appartamento |
| Superficie | 47 m2 |
| Locali | 2 (1 camera da letto, 1 altro), 1 bagno, cucina angolo cottura |
| Piano | 1 di 5 totali |
| Tipo di costruzione | Signorile |
| Occupato | Libero |
| Box auto | Singolo |
| Numero posti auto | 1 |
Caratteristiche
Costi
| Prezzo | 280.000 € |
| Prezzo al m2 | 5.957 €/m2 |
Efficienza energetica
| Stato | Ottimo |
| Riscaldamento | Autonomo |
| Tipo Impianto Di Riscaldamento | ad aria |
| Tipo Alimentazione Riscaldamento | Fotovoltaico |
| Classe energetica | A4 |
Planimetrie
Indirizzo e mappa
Via Formentini
1, San Benedetto del Tronto
Annuncio senza mappa,
prova a chiedere la posizione all'inserzionista
prova a chiedere la posizione all'inserzionista
Calcolo mutuo
Prezzo di vendita:
Anticipo
20,00
Mutuo
80,00
Tasso: -+
Rata: 801 al mese
I risultati sono una stima indicativa basata sui dati inseriti e non costituiscono un’offerta finanziaria.
Inserzionista

Spina & Marchei
Viale De Gasperi 113, San Benedetto del Tronto
Mostra Telefono
Mostra Cellulare
Spina Giovanni
Mostra Telefono
Chiama
CONTATTA

