

Locale Commerciale Calcinaia
€ 3.500 al mese
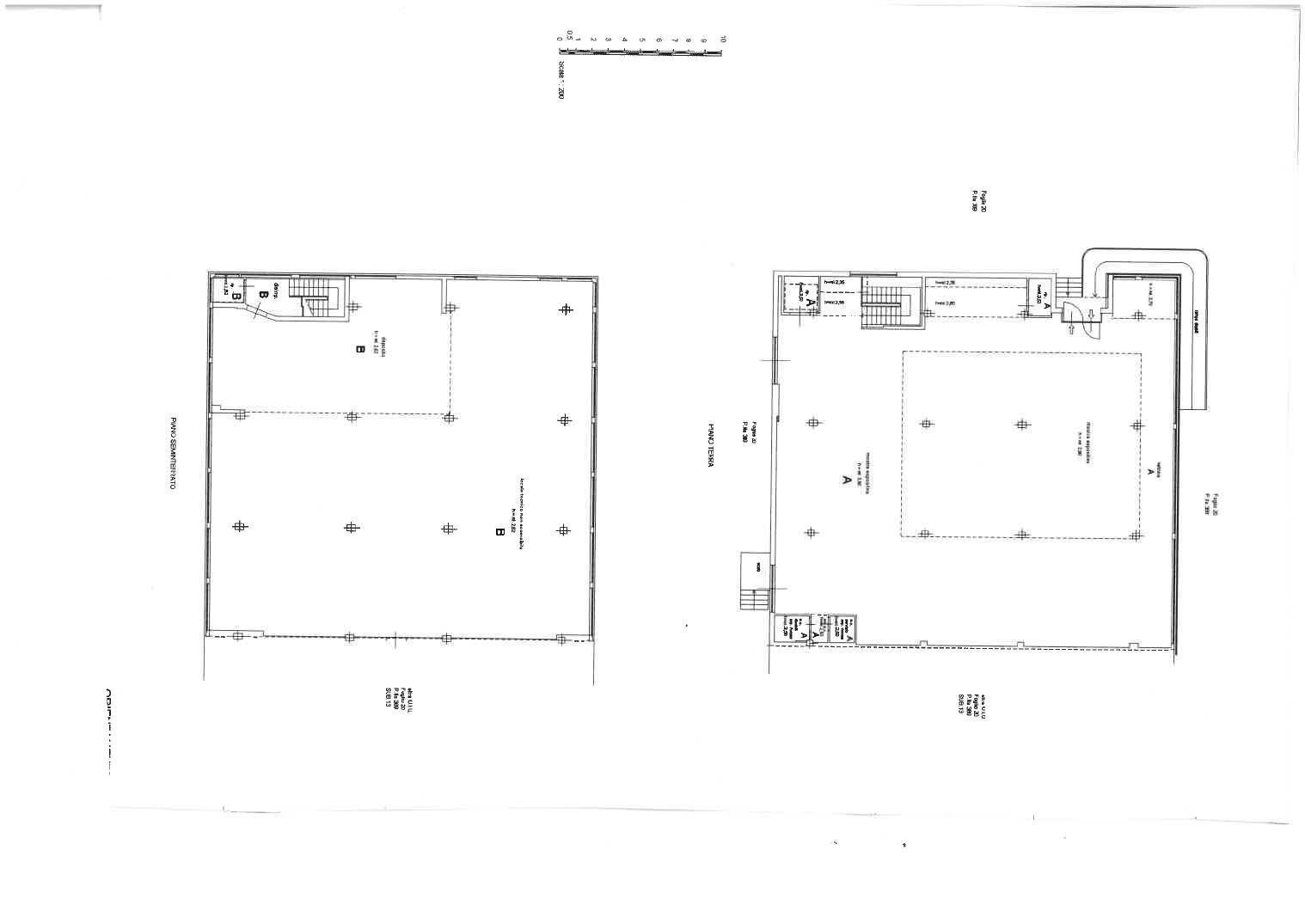
Affittasi su strada di forte traffico e lata visibilita' in località FORNACETTE , sulla Tosco Romagnola locale commerciale di mq 540 con vetrine fronte strada. Corredato di due locali wc e locale magazzino/deposito di ulteriori mq 500. Ambienti disponibili da luglio 2022
Dati principali
| Riferimento | CR1531 |
| Data annuncio | 15/05/2025 |
| Contratto | Affitto |
| Tipologia | Locale Commerciale |
| Superficie | 540 m2 |
| Locali | 2 bagni |
| Occupato | Libero |
Costi
| Prezzo | 3.500 € al mese |
Efficienza energetica
| Stato | Ottimo |
| Tipo Alimentazione Riscaldamento | Elettrico |
| Classe energetica | G |
| Indice di prestazione energetica (IPE) | - |
Indirizzo e mappa
Calcinaia
Annuncio senza mappa,
prova a chiedere la posizione all'inserzionista
prova a chiedere la posizione all'inserzionista
Inserzionista

Agenzia Immobiliare Belfiore di Zingoni Riccardo & C. S.A.S.
Via 1 maggio, 46, Pontedera
Mostra Telefono
Zingoni Riccardo
Mostra Telefono
Chiama
CONTATTA