Appartamento Via San Ginesio 117, Arcevia
€ 45.000
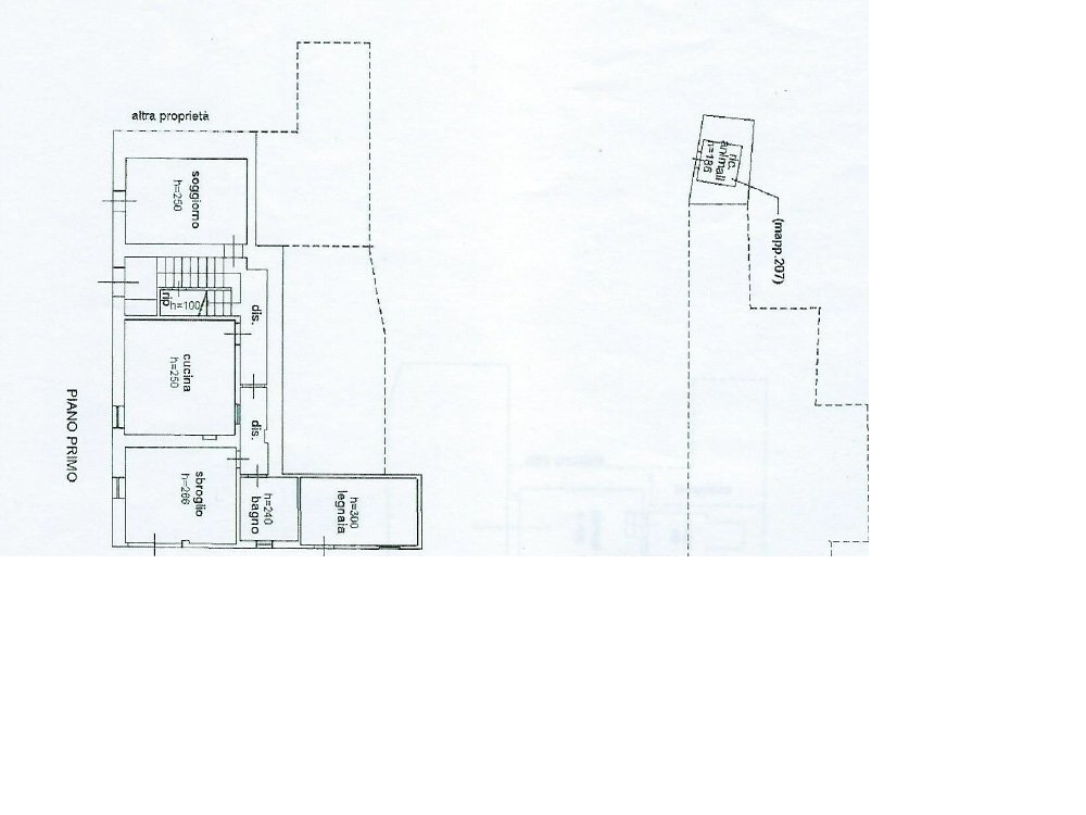
In media collina a 30 minuti dal mare , piccolo borgo facilmente raggiungibile e vicino ai principali servizi , porzione di casa in pietra di complessivi 180 mq con ampio magazzino di 37 mq .Zona idonea per la raccolta di funghi e tartufi, passeggiate a cavallo e mount - bike La struttura muraria in pietra e' in ottime condizioni , sono necessari lavori di ristrutturazione interna su alcuni locali , altri mantengono pavimenti antichi . L' ingresso principale porta al 1 ° piano dove troviamo ampia cucina con caminetto e 2 camere . La rampa di scale successiva, interrotta da un pianerottolo con balcone panoramico , porta al piano secondo dove abbiamo 2 camere matrimoniali, una cameretta e un bagno . L' accesso alla casa e' senza barriere architettoniche perché all' ampia cucina si puo' accedere anche direttamente da un cortile interno . Il riscaldamento e' con termosifoni e caldaia a gasolio. Vi e' la possibilita' di installare deposito gpl o stufe a pellets. Nelle vicinanze vi e' anche un piccolo locale originariamente destinato al ricovero animali . Il prezzo e' trattabile
Dati principali
| Riferimento | CC64 |
| Data annuncio | 15/05/2025 |
| Contratto | Vendita |
| Tipologia | Appartamento |
| Superficie | 180 m2 |
| Locali | più di 5 (5 camere da letto, 1 altro), 2 bagni, cucina abitabile |
| Piano | Terra, 2 totali |
| Occupato | Libero |
| Box auto | Doppio |
Caratteristiche
Costi
| Prezzo | 45.000 € |
| Prezzo al m2 | 250 €/m2 |
Efficienza energetica
| Riscaldamento | Autonomo |
| Tipo Alimentazione Riscaldamento | Altro |
| Classe energetica | Immobile esente da certificazione energetica |
Planimetrie
Indirizzo e mappa
Via San Ginesio
117, Arcevia
Annuncio senza mappa,
prova a chiedere la posizione all'inserzionista
prova a chiedere la posizione all'inserzionista
Calcolo mutuo
Prezzo di vendita:
Anticipo
20,00
Mutuo
80,00
Tasso: -+
Rata: 129 al mese
I risultati sono una stima indicativa basata sui dati inseriti e non costituiscono un’offerta finanziaria.
Inserzionista

Ing Giulio Pennacchietti - Agenzia Immobiliare
Corso Giacomo Matteotti 16, Jesi
Mostra Telefono
Mostra Cellulare
Chiama
CONTATTA

