Quadrilocale via san Giorgio 1, Monte Roberto
€ 95.000
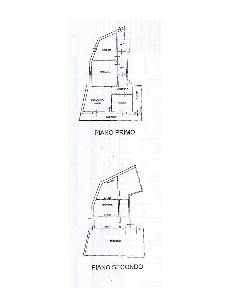
Vicino a tutti i servizi , alla citta di Jesi, alla superstrada e stazione ferroviaria , in un piccolo borgo a 25 km dal mare , appartamento di 98 mq al 1° piano in buone condizioni e con ampia terrazza di 40 mq circa , garage di 16 mq , posto auto coperto e giardino riservato di 100 mq . L' ampia soffitta ha una finestra e altezza al colmo di 2,5 mt L' appartamento e' in una bifamiliare degli anni 70, edificio in cemento armato con bei mattoni a vista nella facciata, in ottime condizioni strutturali e antisismiche. L' ampia e panoramica terrazza con gazebo molto comoda nella bella stagione , il giardino riservato con il posto macchina , il garage con altezza di 3,4 mt , la posizione nella piazzetta, l' ampia soffitta con finestra , rendono l' appartamento veramente comodo per tutte le esigenze di famiglia . All'ingresso troviamo piccolo disimpegno che immette alla zona giorno, molto luminosa per la presenza di finestrone e balcone , formata da cucina abitabile con cucinotto e una sala soggiorno. La parte notte e' con ampia camera matrimoniale di 18 mq, cameretta e bagno con vasca . La struttura in cemento armato dell' edificio permette anche modifiche in fase di ristrutturazione . Riscaldamento autonomo con caldaia a metano e termosifoni . Le spese condominiali sono minime.
Dati principali
| Riferimento | CC58 |
| Data annuncio | 15/05/2025 |
| Contratto | Vendita |
| Tipologia | Appartamento |
| Superficie | 98 m2 |
| Locali | 4 (2 camere da letto, 2 altro), 1 bagno, cucina abitabile |
| Piano | 1 di 2 totali |
| Tipo di costruzione | Signorile |
| Occupato | Libero |
| Box auto | Singolo |
| Numero posti auto | 1 |
Caratteristiche
Costi
| Prezzo | 95.000 € |
| Prezzo al m2 | 969 €/m2 |
Efficienza energetica
| Stato | Buono |
| Riscaldamento | Autonomo |
| Tipo Alimentazione Riscaldamento | Altro |
| Classe energetica | Immobile esente da certificazione energetica |
Planimetrie
Indirizzo e mappa
via san Giorgio
1, Monte Roberto
Annuncio senza mappa,
prova a chiedere la posizione all'inserzionista
prova a chiedere la posizione all'inserzionista
Calcolo mutuo
Prezzo di vendita:
Anticipo
20,00
Mutuo
80,00
Tasso: -+
Rata: 272 al mese
I risultati sono una stima indicativa basata sui dati inseriti e non costituiscono un’offerta finanziaria.
Inserzionista

Ing Giulio Pennacchietti - Agenzia Immobiliare
Corso Giacomo Matteotti 16, Jesi
Mostra Telefono
Mostra Cellulare
Chiama
CONTATTA

