Terreno edificabile villa Torre, Cingoli
€ 75.000
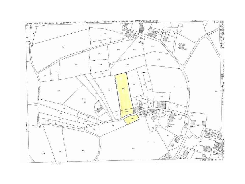
In collina con un bellissimo paesaggio di ulivi secolari, vicino un piccolo borgo con tutti i servizi terreno agricolo di 4810 mq con 20 ulivi secolari della cultivar Mignola compresa area edificabile che permette di costruire fino a 1235 mq . Esistono gli allacci di energia elettrica, acqua e gas metano . Vi e' la possibilita' di acquisire anche i materiali ricavati dalla demolizione di un vecchio rudere. Possibilita' di costruire casa in legno con oneri ridotti e ripristinare vecchio pozzo di vena . Il prezzo e' trattabile
Dati principali
| Riferimento | TE09 |
| Data annuncio | 15/05/2025 |
| Contratto | Vendita |
| Tipologia | Terreno edificabile |
| Superficie | 4810 m2 |
| Occupato | Libero |
Costi
| Prezzo | 75.000 € |
| Prezzo al m2 | 16 €/m2 |
Efficienza energetica
| Tipo Alimentazione Riscaldamento | Altro |
| Classe energetica | Immobile esente da certificazione energetica |
Planimetrie
Indirizzo e mappa
villa Torre, Cingoli
Annuncio senza mappa,
prova a chiedere la posizione all'inserzionista
prova a chiedere la posizione all'inserzionista
Calcolo mutuo
Prezzo di vendita:
Anticipo
20,00
Mutuo
80,00
Tasso: -+
Rata: 214 al mese
I risultati sono una stima indicativa basata sui dati inseriti e non costituiscono un’offerta finanziaria.
Inserzionista

Ing Giulio Pennacchietti - Agenzia Immobiliare
Corso Giacomo Matteotti 16, Jesi
Mostra Telefono
Mostra Cellulare
Chiama
CONTATTA

