Casa indipendente via fonte ottone 5, Colonnella
€ 156.000
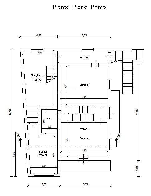
Lagenzia Re Casa Immobiliare propone in vendita casa singola con giardino sita a Colonnella. La casa delle dimensioni di 290 mq circa, si sviluppa su tre piani. Il piano terra, delle dimensioni di 100 mq, risulta essere composto da un grande salone con cucina abitabile con camino, contiguo ad un ampio locale garage e magazzino con camino. Il primo piano, sempre delle stesse dimensioni e raggiungibile solo tramite scala interna in modo indipendente, è adibito ad appartamento composto da ingresso su corridoio, cucina abitabile, soggiorno, due ampie camere da letto matrimoniali e bagno a livello ammezzato tra terra e primo. Il piano sottotetto, delle dimensioni di 90 mq, risulta essere composto da 4 locali oltre ad un bagno con doccia e finestra. L'abitazione necessita di ristrutturazione sia negli impianti che nelle finiture Completa la proprietà una corte esterna parte pavimentata parte a giardino di 300 mq circa con annesso presente accatastato. Riscaldamento autonomo con gas cittadino; la zona tranquilla e lontana dai rumori molesti. Ideale per una famiglia numerosa, come casa vacanze e da adibire a piccolo B&B (progetto già realizzato pronto per la presentazione), l'immobile è stato regolarizzato dal punto di vista urbanistico/catastale, a pochi km dal mare e dall'uscita dell'autostrada. Per info e appuntamenti contattare 347.3891923 - Rif: 9594
Dati principali
| Riferimento | 9594 |
| Data annuncio | 15/05/2025 |
| Contratto | Vendita |
| Tipologia | Casa indipendente |
| Superficie | 290 m2 |
| Locali | più di 5 (5 camere da letto, 5 altro), 2 bagni, cucina abitabile |
| Piano | Su più livelli, 3 totali |
| Tipo di costruzione | Media |
| Occupato | Libero |
| Box auto | Singolo |
| Numero posti auto | 2 |
| Arredamento | Assente |
Caratteristiche
Costi
| Prezzo | 156.000 € |
| Prezzo al m2 | 538 €/m2 |
Efficienza energetica
| Stato | Da ristrutturare |
| Riscaldamento | Autonomo |
| Classe energetica | G |
| Indice di prestazione energetica (IPE) | 208 kWh/m2 anno |
Planimetrie
Indirizzo e mappa
via fonte ottone
5, Colonnella
Annuncio senza mappa,
prova a chiedere la posizione all'inserzionista
prova a chiedere la posizione all'inserzionista
Calcolo mutuo
Prezzo di vendita:
Anticipo
20,00
Mutuo
80,00
Tasso: -+
Rata: 446 al mese
I risultati sono una stima indicativa basata sui dati inseriti e non costituiscono un’offerta finanziaria.
Inserzionista

Re Casa S.r.l.s.
Via San Francesco n. 13 b/c, San Benedetto del Tronto
Mostra Telefono
Mostra Cellulare
Neroni Giuseppe Pino
Mostra Telefono
Chiama
CONTATTA

