Hotel via castello 55, Cupra Marittima
€ 369.000
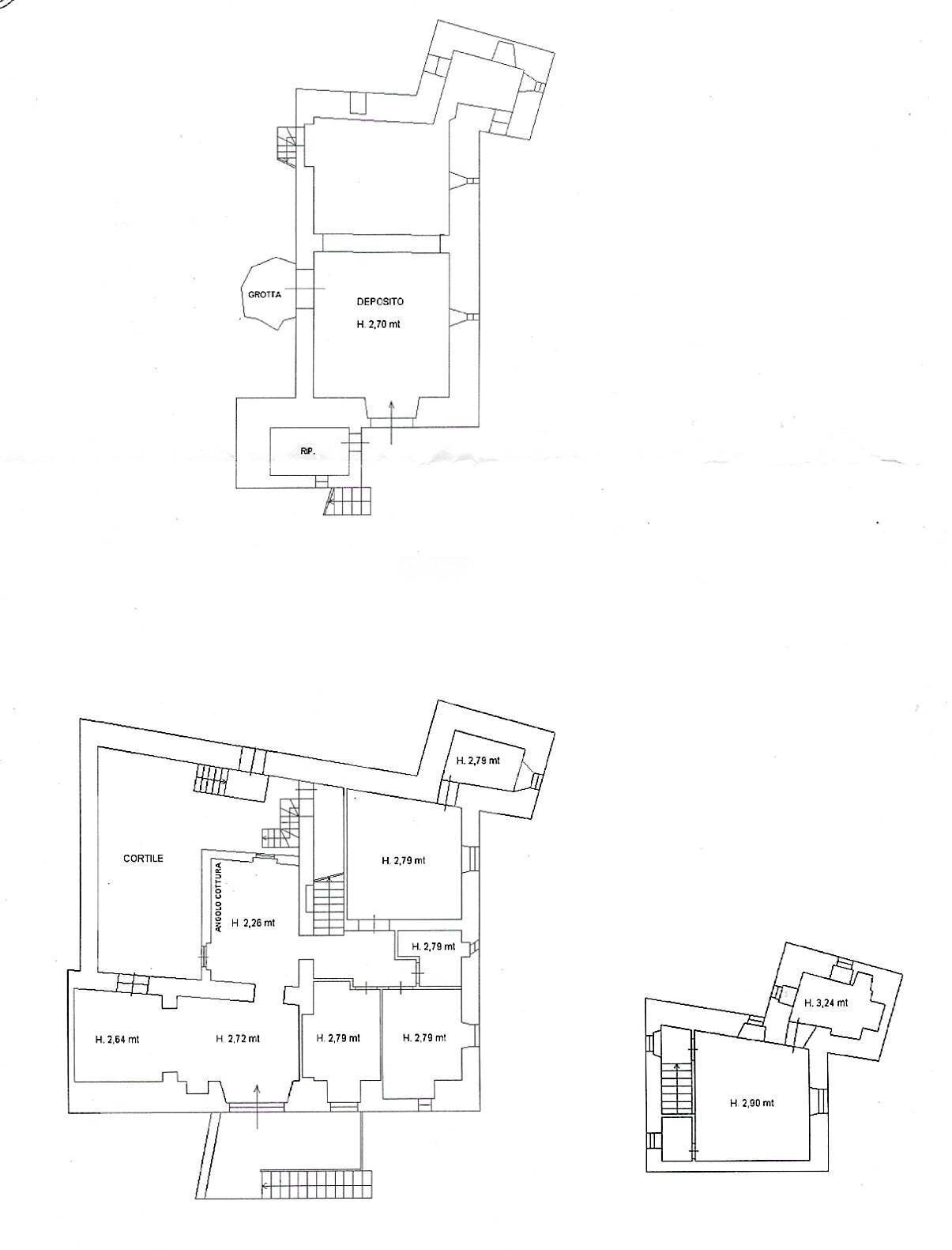
Appartamento storico in vendita situato nel cuore del borgo medievale di Cupra Marittima con una splendida vista mare. L'unità è adiacente al nobile palazzo Sforza e al Museo del Territorio, uno dei simboli principali del borgo. Completamente ristrutturato, l'immobile è curato in ogni singolo dettaglio, ed è composto da un appartamento con ingresso indipendente suddiviso in 2 unità distinte ma collegate esternamente tra loro, per un totale di 240 mq circa commerciali, ed è cosi suddiviso appartamento disposto su due livelli di 125 mq con: piano terra, ingresso da terrazzino panoramico su ampio soggiorno, con affaccio su di un patio privato, cucina abitabile, disimpegno, 3 camere e 2 bagni (di cui uno in camera), dal disimpegno si accede alla torretta privata dell'immobile dove è stata ricavata un'ulteriore camera (la quarta) con bagno privato, da cui si può godere di un'incantevole vista mare unica e molto suggestiva; al piano sottostante vi è un bilocale con bagno e ripostiglio, e grotta privata per un totale di 60 mq. Completata la proprietà un giardino di mq. 350 circa con accesso interno dal patio. L'immobile è stata ristrutturato preservando lo stile medievale con il quale era stata anticamente concepito, mantenendo finiture quali mattoni e pietre a vista ed internamente dispone di ogni comfort; al momento è adibita a Bed & Breakfast con la possibilità di affitta camere, e di utilizzare diversi ambienti godibili per gli ospiti presenti e può rivelarsi un ottimo investimento per avere un' abitazione privata abbinata ad un'attività commerciale altamente redditizia. Per info e appuntamenti contattare 347.3891923 - Rif:9568
Dati principali
| Riferimento | 9568 |
| Data annuncio | 15/05/2025 |
| Contratto | Vendita |
| Tipologia | Hotel |
| Superficie | 240 m2 |
| Locali | più di 5 (5 camere da letto, 2 altro), 4 bagni, cucina abitabile |
| Piano | Su più livelli, 3 totali |
| Tipo di costruzione | Signorile |
| Occupato | Libero |
| Box auto | Assente |
| Numero posti auto | 1 |
| Arredamento | Assente |
Caratteristiche
Costi
| Prezzo | 369.000 € |
| Prezzo al m2 | 1.538 €/m2 |
Efficienza energetica
| Stato | Buono |
| Riscaldamento | Autonomo |
| Classe energetica | G |
| Indice di prestazione energetica (IPE) | 150 kWh/m2 anno |
Planimetrie
Indirizzo e mappa
via castello
55, Cupra Marittima
Annuncio senza mappa,
prova a chiedere la posizione all'inserzionista
prova a chiedere la posizione all'inserzionista
Calcolo mutuo
Prezzo di vendita:
Anticipo
20,00
Mutuo
80,00
Tasso: -+
Rata: 1.055 al mese
I risultati sono una stima indicativa basata sui dati inseriti e non costituiscono un’offerta finanziaria.
Inserzionista

Re Casa S.r.l.s.
Via San Francesco n. 13 b/c, San Benedetto del Tronto
Mostra Telefono
Mostra Cellulare
Neroni Giuseppe Pino
Mostra Telefono
Chiama
CONTATTA

