Appartamento Contrada san martino 49, Colonnella
€ 125.000
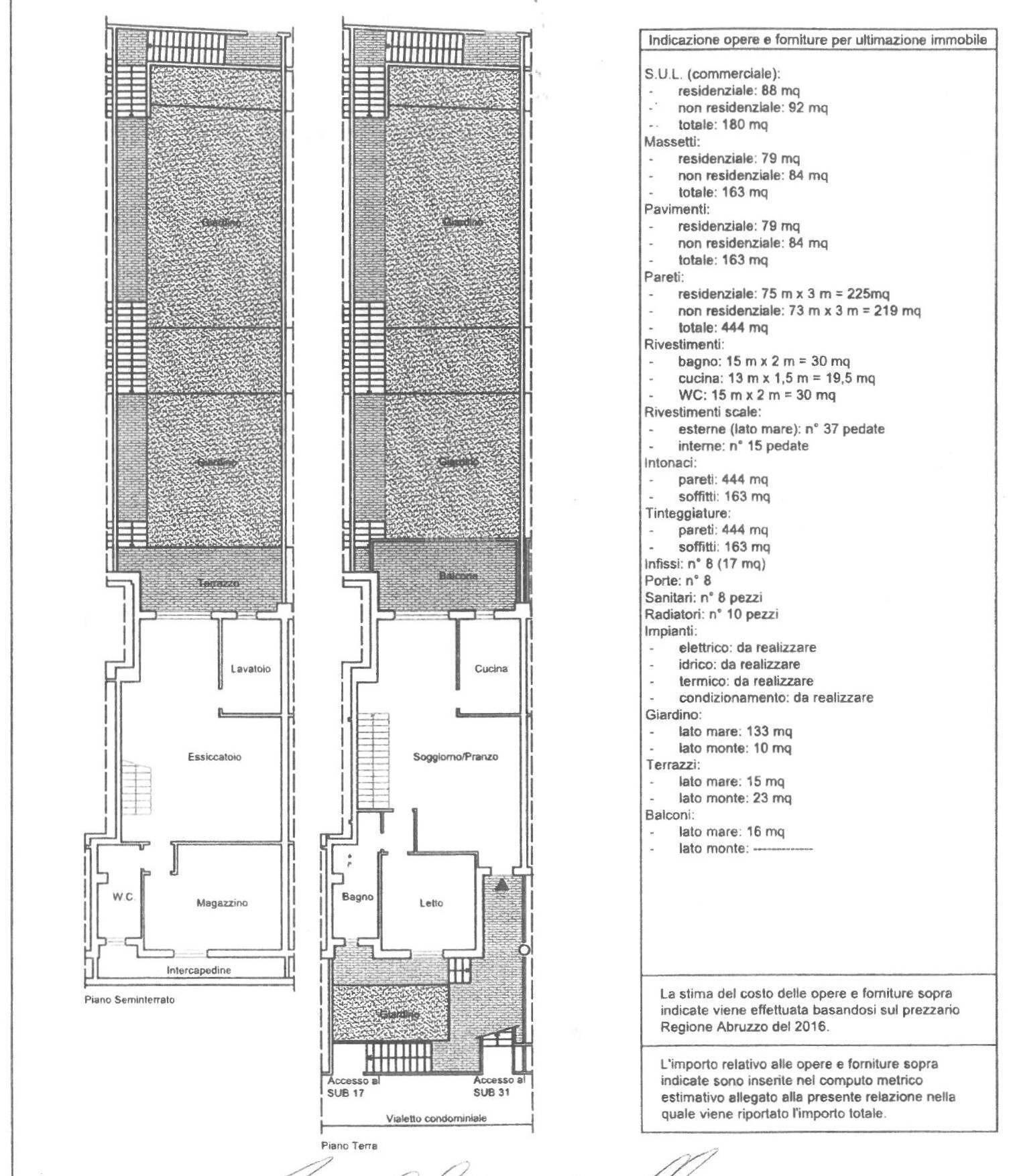
Lagenzia Re Casa Immobiliare propone in vendita villino a schiera grezza a Colonnella, prima collina. Villino GREZZO in complesso a schiera di nuova realizzazione, ubicato in zona residenziale a Colonnella. Splendida vista mare. Così composto: Piano terra delle dimensioni di mq 88 circa, vista su soggiorno con cucina abitabile separata, una camera matrimoniale da letto con balcone di 10 mq, un bagno con finestra, uno sgabuzzino lavatoio, balcone coperto vista mare di 23 mq. Scala interna per accesso al piano seminterrato per un totale di mq 92, suddiviso con predisposizione cucina separata, bagno ad areazione forzata, camera/ magazzino con affaccio su cavedio, affaccio su terrazzo coperto di 15 mq vista mare e giardino privato di 133 mq. Il fabbricato dispone di un ingresso pedonale con passerella pavimentata e piccolo giardino privato ad ovest di 10 mq, e di un con cancello per ingresso pedonale al piano terra fronte mare. Classe energetica non censibile. Possibilità di apportare modifiche alla distribuzione interna. Internamente l'unità abitativa è grezza, portone d'ingresso del tipo blindato, persiane il alluminio con alette regolabili. Possibilità di costruire una piscina sulla corte privata antistante.
Dati principali
| Riferimento | 9210 |
| Data annuncio | 15/05/2025 |
| Contratto | Vendita |
| Tipologia | Appartamento |
| Superficie | 180 m2 |
| Locali | 5 (2 camere da letto, 3 altro), 2 bagni, cucina abitabile |
| Piano | Su più livelli, 2 totali |
| Tipo di costruzione | Signorile |
| Occupato | Libero |
| Box auto | Assente |
| Arredamento | Assente |
Caratteristiche
Costi
| Prezzo | 125.000 € |
| Prezzo al m2 | 694 €/m2 |
Efficienza energetica
| Riscaldamento | Autonomo |
| Tipo Impianto Di Riscaldamento | a pavimento |
| Classe energetica | Immobile esente da certificazione energetica |
Planimetrie
Indirizzo e mappa
Contrada san martino
49, Colonnella
Annuncio senza mappa,
prova a chiedere la posizione all'inserzionista
prova a chiedere la posizione all'inserzionista
Calcolo mutuo
Prezzo di vendita:
Anticipo
20,00
Mutuo
80,00
Tasso: -+
Rata: 357 al mese
I risultati sono una stima indicativa basata sui dati inseriti e non costituiscono un’offerta finanziaria.
Inserzionista

Re Casa S.r.l.s.
Via San Francesco n. 13 b/c, San Benedetto del Tronto
Mostra Telefono
Mostra Cellulare
Re Casa Immobiliare
Chiama
CONTATTA

