Annuncio senza foto,
prova a chiederle all'inserzionista
prova a chiederle all'inserzionista
Monolocale Calegna, Gaeta
Trattativa riservata
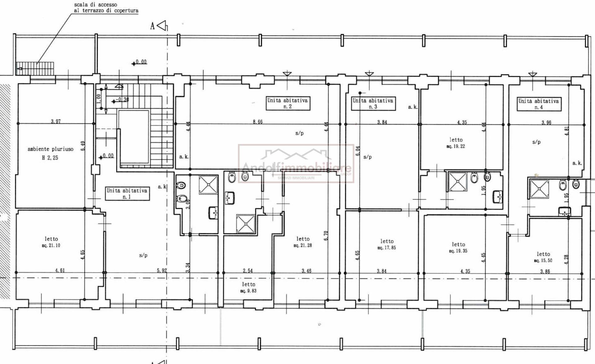
Gaeta Calegna. In zona tranquilla e residenziale, proponiamo in vendita, porzione di fabbricato al primo piano da ristrutturare. Limmobile, sviluppa 355mq interni oltre e 125mq di balconi, 2 vani tecnici di 35mq totali (con eventuale possibilità di cambio di destinazione) posti auto esterni e viene venduto con progetto già approvato per la realizzazione di 4 appartamenti di varie metrature. Possibilità di modificare la superficie interna degli appartamenti già progettati se si desidera ricavare più appartamenti rispetto al progetto esistente. N.B. Per ulteriori info, come lubicazione del fabbricato ecc, si prega di fissare un appuntamento direttamente nel nostro ufficio.
Dati principali
| Riferimento | G125 |
| Data annuncio | 15/05/2025 |
| Contratto | Vendita |
| Tipologia | Appartamento |
| Superficie | 355 m2 |
| Locali | 1 (1 altro), cucina abitabile |
| Piano | 1 di 1 totali |
| Tipo di costruzione | Media |
| Occupato | Libero |
| Box auto | Assente |
| Numero posti auto | 5 |
| Arredamento | Assente |
Costi
| Prezzo | Trattativa riservata |
Efficienza energetica
| Stato | Da ristrutturare |
| Tipo Alimentazione Riscaldamento | Altro |
| Classe energetica | G |
| Indice di prestazione energetica (IPE) | 175 kWh/m2 anno |
Planimetrie
Indirizzo e mappa
Calegna, Gaeta
Annuncio senza mappa,
prova a chiedere la posizione all'inserzionista
prova a chiedere la posizione all'inserzionista
Inserzionista

ANDOLFIMMOBILIARE
Via Indipendenza, 67, Gaeta
Mostra Telefono
Mostra Cellulare
Chiama
CONTATTA