Casa semi indipendente Capannori
€ 660.000
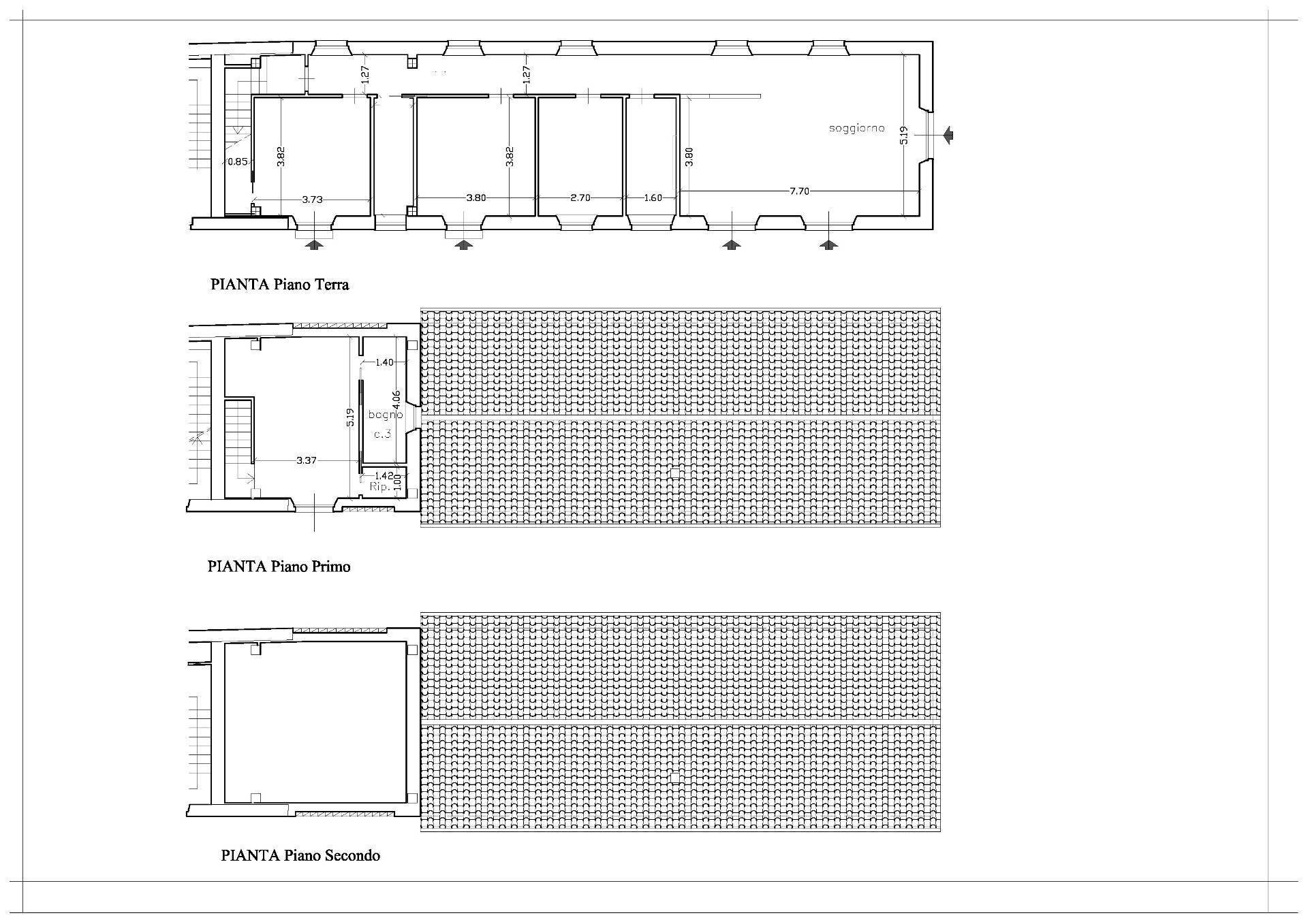
in contesto completamente ristrutturato in stile rustico, proponiamo finale indipendente su tre lati, sviluppato quasi completamente su un unico piano. L'immobile viene venduto completamente ristrutturato con la formula "Chiavi in mano", ma se interessati potrebbe esserci la possibilità di un acquisto in fase progettuale. Internamente la suddivisione attuale è puramente indicativa, atta a definire le potenzialità e gi spazi realizzabili. Si compone di ampia zona giorno d'ingresso con cucina, disimpegno notte, 4 camere grandi e tre bagni. A corredo posti auto esclusivi e area a giardino completamente recintata. Possibilità di personalizzare il capitolato, con la scelta dei materiali di rifiniture, per pavimenti e rivestimenti, oltre ovviamente ai sanitari dei bagni. Proprietà unica nel suo genere, sia per tipologia che per l'attenzione ai dettagli costruttivi. l'immobile, una volta terminato avrà un'alta classe energetica pari o superiore alla "A".
Dati principali
| Riferimento | 660 VERCIANO |
| Data annuncio | 15/05/2025 |
| Contratto | Vendita |
| Tipologia | Casa semi indipendente |
| Superficie | 182 m2 |
| Locali | 5 (4 camere da letto, 1 altro), 3 bagni |
| Piano | Terra |
| Tipo di costruzione | Signorile |
Costi
| Prezzo | 660.000 € |
| Prezzo al m2 | 3.626 €/m2 |
Efficienza energetica
| Riscaldamento | Autonomo |
| Tipo Impianto Di Riscaldamento | a pavimento |
| Tipo Alimentazione Riscaldamento | Fotovoltaico |
| Classe energetica | Immobile esente da certificazione energetica |
Indirizzo e mappa
Capannori
Annuncio senza mappa,
prova a chiedere la posizione all'inserzionista
prova a chiedere la posizione all'inserzionista
Calcolo mutuo
Prezzo di vendita:
Anticipo
20,00
Mutuo
80,00
Tasso: -+
Rata: 1.888 al mese
I risultati sono una stima indicativa basata sui dati inseriti e non costituiscono un’offerta finanziaria.
Inserzionista

RM Immobiliare
Viale Pacini, 21, Lucca
Mostra Telefono
Mostra Cellulare
Misale Riccardo
Mostra Telefono
Chiama
CONTATTA

