Quadrilocale Via Vittorio Veneto, Seravezza
€ 240.000
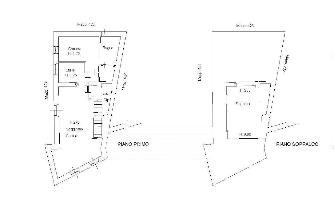
Appartamento ristrutturato in vendita a Seravezza Spazioso, moderno e pronto da abitare In vendita a Seravezza, splendido appartamento ristrutturato nel 2015, situato in una zona tranquilla ma centrale, comoda a tutti i servizi. Caratteristiche dellimmobile Labitazione si sviluppa su due livelli, al primo piano e mansarda, con spazi ben distribuiti e finiture moderne. Piano terra: ingresso con disimpegno e scala di accesso al primo piano. Primo piano: Ampia zona giorno open space con camino e cucina a vista, perfetta per momenti di convivialità. Zona notte composta da camera matrimoniale, cameretta, antibagno con lavanderia e bagno finestrato con doccia. Scala a vista che conduce alla mansarda. Mansarda: spazio versatile, ideale come terza camera matrimoniale o come studio. Limmobile è in ottime condizioni, pronto per essere abitato e disponibile anche completamente arredato. Perché scegliere questo appartamento? ' Spazioso e moderno, ideale per famiglie o professionisti in smart working. ' Zona tranquilla e centrale, vicina ai principali servizi (scuole, negozi, trasporti). ' Ottima qualità abitativa, grazie a una recente ristrutturazione e a finiture curate. La posizione: vivere a Seravezza Situata alle porte della Versilia, Seravezza è una cittadina che unisce il fascino della storia alla comodità della vita moderna. A pochi minuti dalle spiagge di Forte dei Marmi, offre un contesto residenziale immerso nel verde, con servizi, cultura e natura a portata di mano. Il centro storico, con le sue piazze e i palazzi depoca, è un luogo ricco di fascino, mentre la vicinanza alle Alpi Apuane garantisce splendide opportunità per gli amanti della natura e delle escursioni. Se cerchi una casa accogliente, moderna e ben posizionata, questa è la soluzione perfetta per te! Contattaci per maggiori informazioni e per fissare una visita. Rif. S419 www.immobiliare-leonardo.it Vuoi altre informazioni? Vuoi valutare altre offerte immobiliari? Devi vendere il tuo immobile? Contattaci allo 0584961129 / +393756339708 Oppure vieni a trovarci nella nostra sede di Viareggio in Corso Garibaldi, 170 L'indirizzo proposto può essere nelle vicinanze per ragioni di privacy
Dati principali
| Riferimento | S419 |
| Data annuncio | 15/05/2025 |
| Contratto | Vendita |
| Tipologia | Appartamento |
| Superficie | 110 m2 |
| Locali | 4 (3 camere da letto, 1 altro), 1 bagno, cucina a vista |
| Piano | Su più livelli, 3 totali |
| Tipo di costruzione | Media |
| Occupato | Libero |
| Box auto | Assente |
| Arredamento | Assente |
Caratteristiche
Costi
| Prezzo | 240.000 € |
| Prezzo al m2 | 2.182 €/m2 |
Efficienza energetica
| Stato | Ottimo |
| Riscaldamento | Autonomo |
| Classe energetica | G |
| Indice di prestazione energetica (IPE) | 150 kWh/m2 anno |
Planimetrie
Indirizzo e mappa
Via Vittorio Veneto, Seravezza
Annuncio senza mappa,
prova a chiedere la posizione all'inserzionista
prova a chiedere la posizione all'inserzionista
Calcolo mutuo
Prezzo di vendita:
Anticipo
20,00
Mutuo
80,00
Tasso: -+
Rata: 686 al mese
I risultati sono una stima indicativa basata sui dati inseriti e non costituiscono un’offerta finanziaria.
Inserzionista

Agenzia Immobiliare Leonardo
Corso Garibaldi, 170, Viareggio
Mostra Telefono
Mostra Cellulare
Chiama
CONTATTA

