Casa indipendente Monsagrati, Pescaglia
€ 115.000
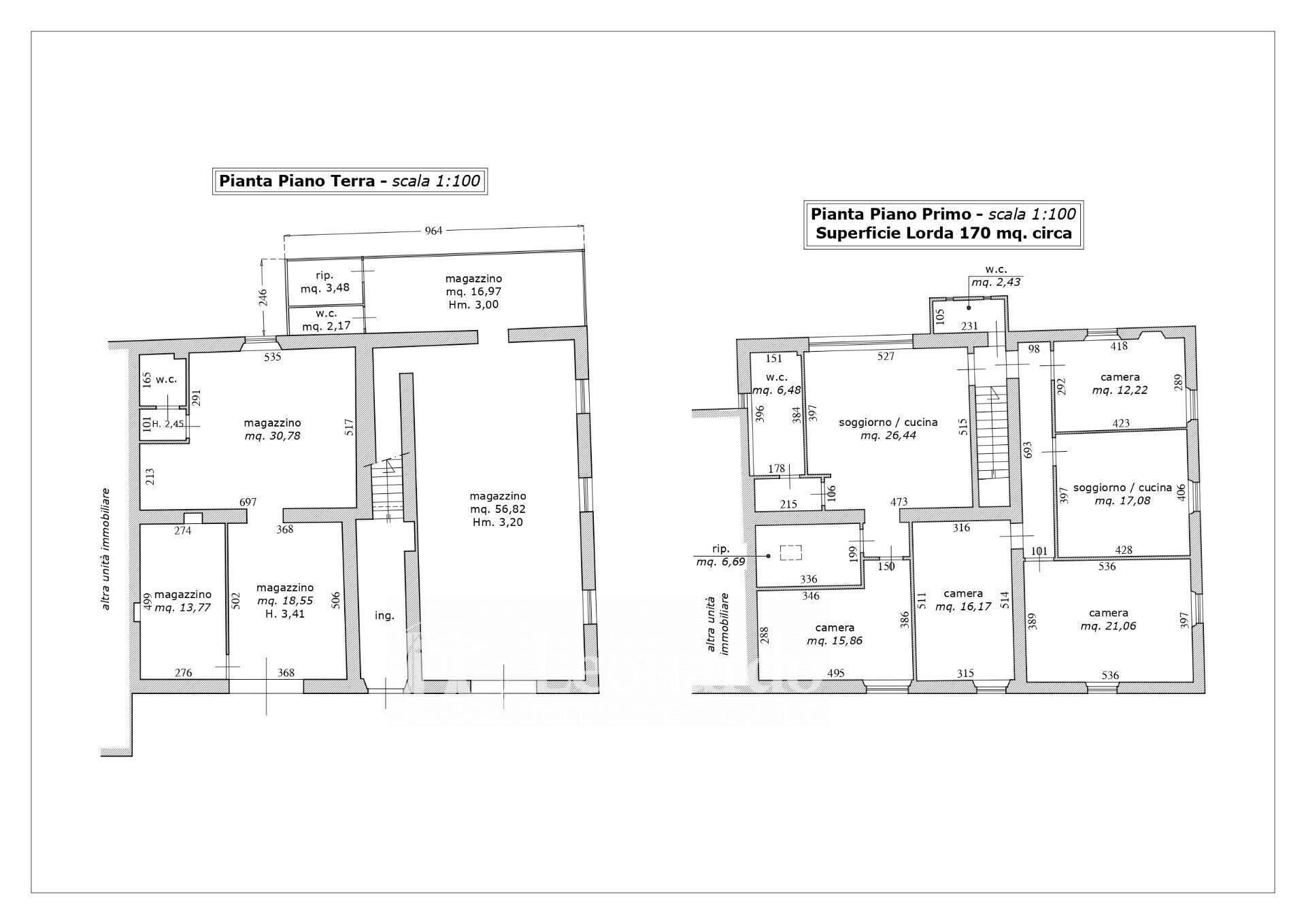
Casa indipendente con appartamento, magazziini e resede In posizione centrale e comoda ai servizi di località strategica fra Lucca e la costa versiliese, disponiamo in vendita di ampia proprietà disposta su due livelli e libera su tre lati completamente da ristrutturare. L'appartamento si sviluppa al primo piano e si compone di ambienti luminosi e spaziosi: cucina openspace, quattro camere, ripostiglio, bagno, secondo bagno di servizio e seconda cucina. Al pian terreno insistono i due locali commerciali che consistono in un'area con tre stanze e servizio, mentre l'altro è composto da una grande sala con servizio, che si apre in una veranda di fronte ad un piccolo giardino di proprietà. Il fabbricato è COMPLETAMENTE DA RISTRUTTURARE e si presta a modellarsi secondo le esigenze con le potenzialità di diventare una comodissima abitazione. Rif. L335 www.immobiliare-leonardo.it Vuoi altre informazioni? Vuoi valutare altre offerte immobiliari? Devi vendere il tuo immobile? Contattaci allo 0584961129 / +393756339708 Oppure vieni a trovarci nella nostra sede di Viareggio in Corso Garibaldi, 170 L'indirizzo proposto può essere nelle vicinanze per ragioni di privacy
Dati principali
| Riferimento | L335 |
| Data annuncio | 15/05/2025 |
| Contratto | Vendita |
| Tipologia | Casa indipendente |
| Superficie | 170 m2 |
| Locali | più di 5 (4 camere da letto, 6 altro), 4 bagni, cucina abitabile |
| Piano | Su più livelli, 2 totali |
| Occupato | Libero |
| Box auto | Triplo |
| Numero posti auto | 2 |
Caratteristiche
Costi
| Prezzo | 115.000 € |
| Prezzo al m2 | 676 €/m2 |
Efficienza energetica
| Stato | Da ristrutturare |
| Riscaldamento | Assente |
| Tipo Alimentazione Riscaldamento | Altro |
| Classe energetica | G |
| Indice di prestazione energetica (IPE) | 150 kWh/m2 anno |
Planimetrie
Indirizzo e mappa
Monsagrati, Pescaglia
Annuncio senza mappa,
prova a chiedere la posizione all'inserzionista
prova a chiedere la posizione all'inserzionista
Calcolo mutuo
Prezzo di vendita:
Anticipo
20,00
Mutuo
80,00
Tasso: -+
Rata: 329 al mese
I risultati sono una stima indicativa basata sui dati inseriti e non costituiscono un’offerta finanziaria.
Inserzionista

Agenzia Immobiliare Leonardo
Corso Garibaldi, 170, Viareggio
Mostra Telefono
Mostra Cellulare
Chiama
CONTATTA

