Rustico via al borgo, Albenga
€ 398.000
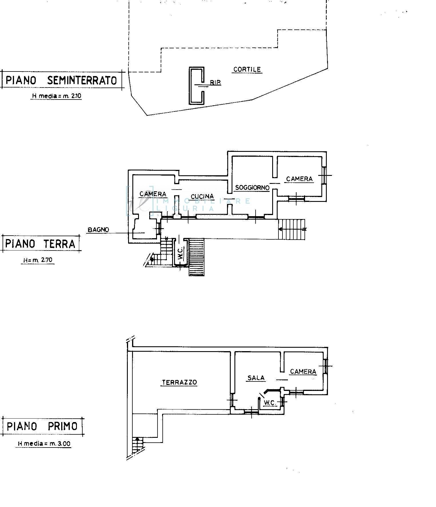
Incantevole Rustico in Pietra con Terrazzo e Vista Panoramica Bastia, Albenga Sogni di vivere il fascino della storia ligure a pochi minuti dal mare? Nella suggestiva frazione di Bastia, borgo medievale del 1300, proponiamo in vendita un affascinante rustico finemente ristrutturato che coniuga tradizione e comfort moderno. Situata a soli 4 km dalle spiagge di Albenga, la proprietà è un'oasi di pace ideale sia come prima casa che come rifugio per le vacanze. Distribuzione degli Spazi Labitazione si sviluppa su più livelli, offrendo ambienti caldi e versatili: Primo Piano: L'ingresso avviene attraverso un'area verde protetta. All'interno, un ampio salone con soffitti a volta e camino a legna accoglie gli ospiti in un'atmosfera d'altri tempi. Il piano dispone inoltre di una cucina abitabile, due camere, un bagno e un pratico locale lavanderia esterno. Secondo Piano (Indipendente): Tramite una scala esterna si accede al livello superiore, composto da soggiorno con angolo cottura, camera da letto e bagno. Questa configurazione lo rende perfetto per ospitare amici o per creare una zona totalmente autonoma. Outdoor: Un delizioso terrazzo panoramico offre uno spazio ideale per il relax e per godersi il sole della Liguria. Finiture e Comfort Dettagli architettonici di pregio: pavimenti in cotto e pareti con pietra a vista. Condizioni interne ottime e riscaldamento autonomo a gas per la massima efficienza in ogni stagione. Completa la proprietà una spaziosa cantina al piano terra. Posizione Strategica e Distanze La frazione di Bastia è perfettamente collegata ai principali punti di riferimento della zona: Trasporti: Stazione Ferroviaria di Albenga: 4,8 km (circa 11 minuti). Aeroporto di Villanova d'Albenga: 4,6 km (circa 8 minuti). Aeroporto di Genova (GOA): 82 km (circa 1 ora e 8 minuti). Aeroporto di Nizza (NCE): 118 km (circa 1 ora e 22 minuti). Tempo Libero e Località Rinomate: Alassio: 9,9 km (circa 10 minuti). Albenga: circa 4 km Golf Club Garlenda: 7,4 km (circa 9 minuti). Servizi (Supermercati e centri commerciali): a meno di 1 km. Per maggiori informazioni e visite: ð Agenzia Immobiliare Liguria Via Genova n. 80, Albenga (SV) ð Tel: 0182 554730 | Cell: 392 9488202
Dati principali
| Riferimento | 869 |
| Data annuncio | 15/05/2025 |
| Contratto | Vendita |
| Tipologia | Rustico |
| Superficie | 135 m2 |
| Locali | più di 5 (3 camere da letto, 3 altro), 3 bagni, cucina abitabile |
| Piano | Su più livelli, 2 totali |
| Occupato | Libero |
| Box auto | Assente |
| Arredamento | Parziale |
Caratteristiche
Costi
| Prezzo | 398.000 € |
| Prezzo al m2 | 2.948 €/m2 |
Efficienza energetica
| Stato | Ottimo |
| Riscaldamento | Autonomo |
| Classe energetica | F |
| Indice di prestazione energetica (IPE) | 165 kWh/m2 anno |
Planimetrie
Indirizzo e mappa
via al borgo, Albenga
Annuncio senza mappa,
prova a chiedere la posizione all'inserzionista
prova a chiedere la posizione all'inserzionista
Calcolo mutuo
Prezzo di vendita:
Anticipo
20,00
Mutuo
80,00
Tasso: -+
Rata: 1.138 al mese
I risultati sono una stima indicativa basata sui dati inseriti e non costituiscono un’offerta finanziaria.
Inserzionista

Immobiliare Liguria
Via Genova, 81, Albenga
Mostra Telefono
Chiama
CONTATTA

