Rustico Ragusa
€ 585.000
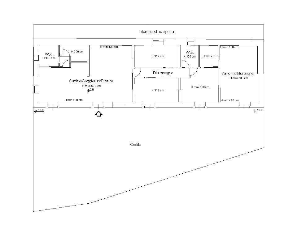
Immerso tra le campagne ragusane proponiamo in vendita un affascinante casale in pietra di circa 180 mq che insiste su un lotto di terreno di circa 1000 mq. Limmobile, interamente ristrutturato, con pavimentazione dotata di impianto radiante che consente il riscaldamento ed il raffreddamento dellintero casale, è dotato di pannelli solari. Composto da unampia zona living, una luminosa cucina, 3 camere da letto di cui una con cabina armadio, 2 bagni ed un locale lavanderia. A completare la proprietà un locale tecnico dove sono posizionate le batterie di accumulo dei pannelli solari.
Dati principali
| Riferimento | 1246 |
| Data annuncio | 15/05/2025 |
| Contratto | Vendita |
| Tipologia | Rustico |
| Superficie | 180 m2 |
| Locali | più di 5 (3 camere da letto, 3 altro), 2 bagni, cucina abitabile |
| Piano | Terra, 1 totali |
| Tipo di costruzione | Signorile |
| Occupato | Libero |
| Box auto | Assente |
| Arredamento | Assente |
Caratteristiche
Costi
| Prezzo | 585.000 € |
| Prezzo al m2 | 3.250 €/m2 |
Efficienza energetica
| Stato | Ottimo |
| Riscaldamento | Centralizzato |
| Tipo Impianto Di Riscaldamento | a pavimento |
| Tipo Alimentazione Riscaldamento | Fotovoltaico |
| Classe energetica | F |
| Indice di prestazione energetica (IPE) | - |
Planimetrie
Indirizzo e mappa
Ragusa
Annuncio senza mappa,
prova a chiedere la posizione all'inserzionista
prova a chiedere la posizione all'inserzionista
Calcolo mutuo
Prezzo di vendita:
Anticipo
20,00
Mutuo
80,00
Tasso: -+
Rata: 1.673 al mese
I risultati sono una stima indicativa basata sui dati inseriti e non costituiscono un’offerta finanziaria.
Inserzionista

Millevani Immobiliare
Corso Vittorio Veneto n. 119, Pozzallo
Mostra Telefono
Chiama
CONTATTA

