Quadrilocale monigo treviso, Treviso
€ 429.000
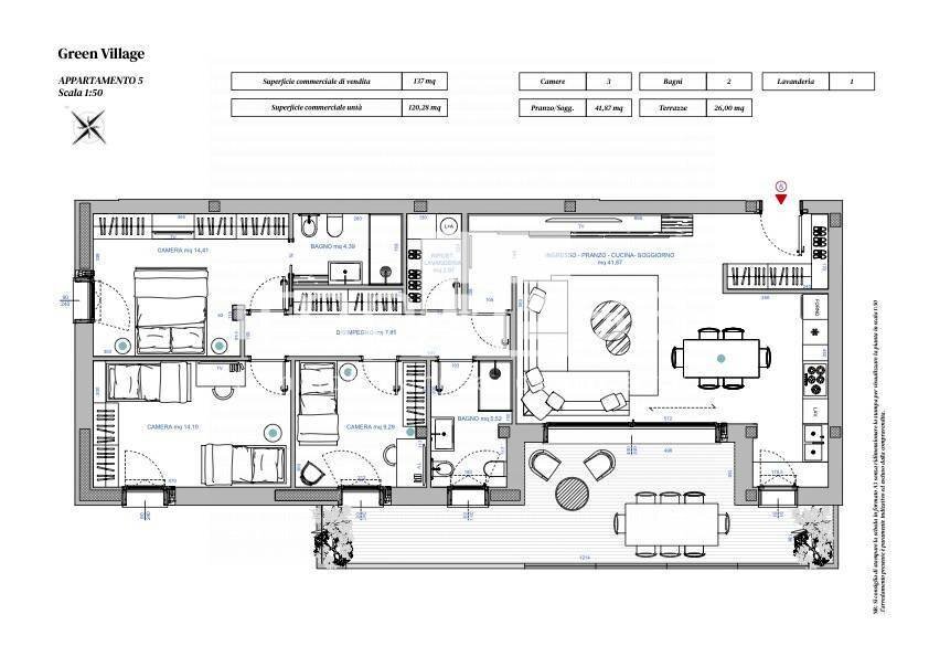
Appartamento tre camere in vendita a Treviso. Nella prima periferia cittadina, proponiamo in vendita questo splendido appartamento posto al primo piano di un moderno e stiloso contesto condominiale in fase di realizzazione, con consegna prevista ottobre/novembre 2025. L'immobile, inserito in un polmone verde alle porte della citta', risulta cosi' distribuito: zona giorno/pranzo con angolo cottura di oltre 40 mq ottimamente distribuiti, disimpegno, tre camere letto di cui la principale con bagno personale, secondo bagno ed ulteriore lavanderia/ripostiglio. Splendida terrazza fruibile dalla zona giorno arricchita da spendido serramento scorrevole e da una camera. Completano la proposta il garage, il magazzino ed il posto auto assegnato in proprieta'. Di riferimento le dotazioni impiantistiche ed il livello delle finiture, tra cui: impianto a pavimento, fotovoltaico di ultima generazione, sistema per controllo impianti da remoto, videocitofono, ricambio d'aria con recupero di calore, predisposizione di ricariche auto elettriche. Pavimentazione in legno a listoni di rovere su tutto l'appartamento ad esclusione dei bagni. Classe energetica A/4. Ampio capitolato descrittivo a disposizione presso le Ns agenzie. Per informazioni ed eventuali visite presso questo appartamento tre camere in vendita a Treviso chiamare il N. 0422/454323 con rif. I/LF280B5 oppure consultate il nostro sito www.impresaimmobillare.com
Dati principali
| Riferimento | I/LF280B5 |
| Data annuncio | 15/05/2025 |
| Contratto | Vendita |
| Tipologia | Appartamento |
| Superficie | 120 m2 |
| Locali | 4 (3 camere da letto, 1 altro), 2 bagni |
| Piano | 1 di 2 totali |
| Tipo di costruzione | Signorile |
| Occupato | Libero |
| Box auto | Singolo |
| Numero posti auto | 1 |
Caratteristiche
Costi
| Prezzo | 429.000 € |
| Prezzo al m2 | 3.575 €/m2 |
Efficienza energetica
| Riscaldamento | Semi-autonomo |
| Tipo Impianto Di Riscaldamento | a pavimento |
| Tipo Alimentazione Riscaldamento | Fotovoltaico |
| Classe energetica | A4 |
Indirizzo e mappa
monigo treviso, Treviso
Annuncio senza mappa,
prova a chiedere la posizione all'inserzionista
prova a chiedere la posizione all'inserzionista
Calcolo mutuo
Prezzo di vendita:
Anticipo
20,00
Mutuo
80,00
Tasso: -+
Rata: 1.227 al mese
I risultati sono una stima indicativa basata sui dati inseriti e non costituiscono un’offerta finanziaria.
Inserzionista

impREsa Paese
Via Roma 148, Paese
Mostra Telefono
Chiama
CONTATTA

