Magazzino Montespertoli
€ 147.000
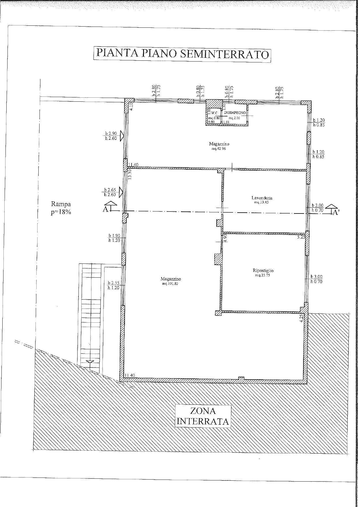
Rif. 1153 - Montespertoli, inizio paese, a pochi metri dal centro, VENDESI O AFFITTASI locale ad uso magazzino di mq 200 ca. posto al piano seminterrato e composto da tre ampi locali oltre all' ingresso e a due bagni-wc.Ottime finiture e possibilità di realizzare due appartamenti. Disponibile da subito.
Dati principali
| Riferimento | 1153 |
| Data annuncio | 15/05/2025 |
| Contratto | Vendita |
| Tipologia | Magazzino |
| Superficie | 200 m2 |
| Locali | 3 (3 altro), 2 bagni |
| Occupato | Libero |
| Arredamento | Assente |
Costi
| Prezzo | 147.000 € |
| Prezzo al m2 | 735 €/m2 |
Efficienza energetica
| Stato | Buono |
| Tipo Impianto Di Riscaldamento | ad aria |
| Classe energetica | G |
| Indice di prestazione energetica (IPE) | 275 kWh/m2 anno |
Planimetrie
Indirizzo e mappa
Montespertoli
Annuncio senza mappa,
prova a chiedere la posizione all'inserzionista
prova a chiedere la posizione all'inserzionista
Calcolo mutuo
Prezzo di vendita:
Anticipo
20,00
Mutuo
80,00
Tasso: -+
Rata: 420 al mese
I risultati sono una stima indicativa basata sui dati inseriti e non costituiscono un’offerta finanziaria.
Inserzionista

Ag. Imm. SERGIO MONTAGNANI
Via D. Alighieri, 40, Montespertoli
Mostra Telefono
Mostra Cellulare
Chiama
CONTATTA

