Villa Montespertoli
€ 1.100.000
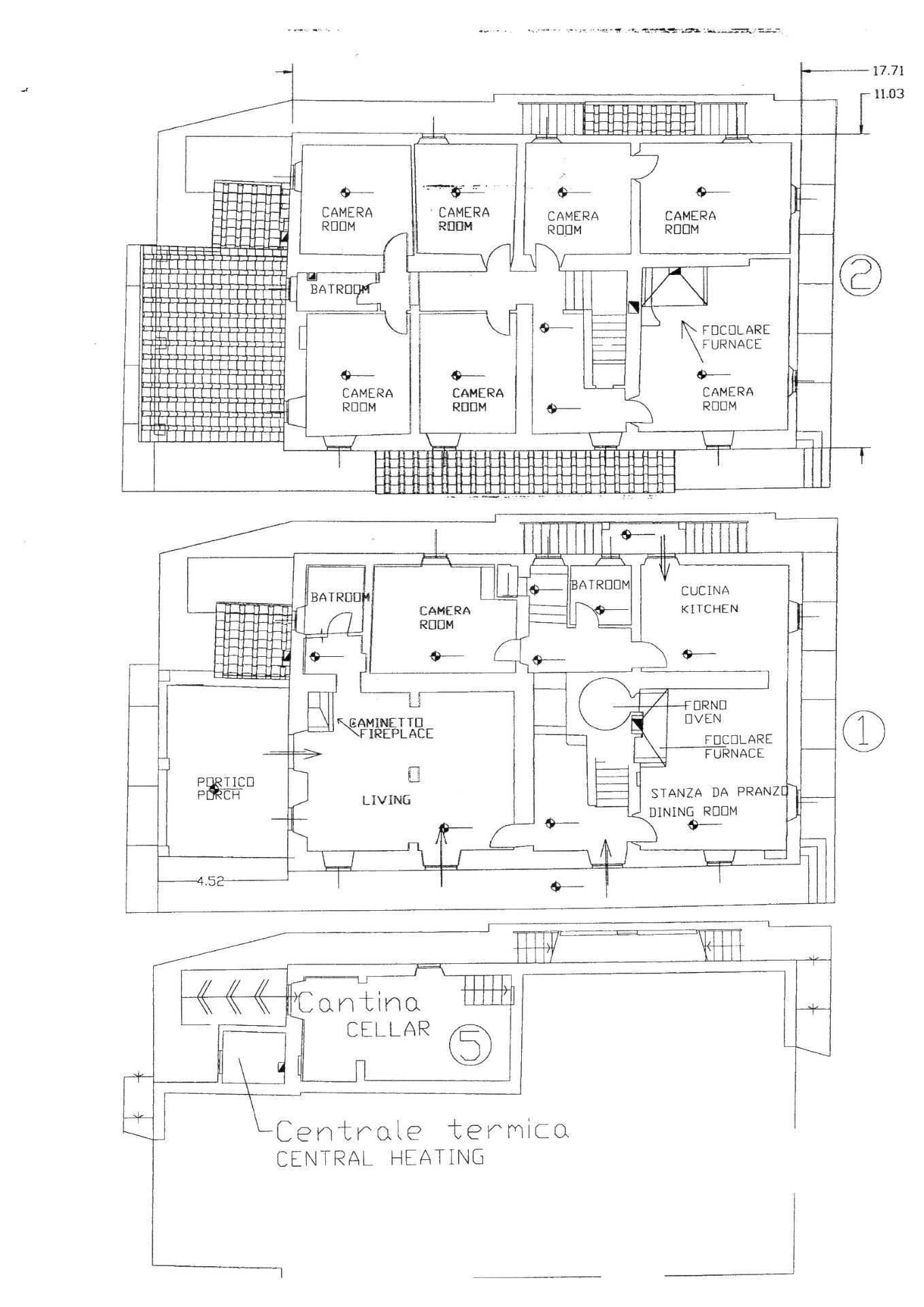
Rif. 1023 - Montespertoli - Sulle colline fiorentine, in una splendida posizione panoramica troviamo questo casale da sogno, elegante e raffinato, ristrutturato rispettando pienamente la tradizione toscana con lutilizzo di materiali antichi e originali. Emozionante latmosfera che trasmette il vivere questa proprietà, sia al suo interno con la suggestiva zona living che al suo esterno con i meravigliosi panorami. Il casale principale di circa 400 mq, disposto in modo molto classico e tradizionale si sviluppa su due livelli, con la zona giorno al piano terra caratterizzata da vari ingressi, al salone con il camino a parete, alla zona pranzo e alla grande cucina, proseguendo, è possibile accedere ad una camera da letto e due bagni con doccia. Comode scale conducono alla zona notte al piano superiore da dove si accede a cinque camere, ad un ulteriore camera matrimoniale con anticamera, ad una camera matrimoniale con caminetto a parete e ad un bagno-wc con doccia. Tutte le camere sono dotate di impianto di climatizzazione estate/inverno.Poco distante si trova il fienile di mq 60 ca. da ristrutturare. Ilcasale, è dotato inoltre di un locale cantina ed un locale ad uso centrale termica al piano seminterrato. La piscina fuori-terra è contornata da alcuni olivi e cipressi ed è collocata nel parco con un bellissimo prato circostante. La proprietà è alimentata da acquedotto comunale. Il terreno agricolo ha una superficie di circa 4.0 ettari oltre al resede urbano. Principali distanze: Firenze 32 km, Siena 50 km, Pisa 70 km.
Dati principali
| Riferimento | 1023 |
| Data annuncio | 15/05/2025 |
| Contratto | Vendita |
| Tipologia | Villa |
| Superficie | 460 m2 |
| Locali | più di 5 (8 camere da letto, 3 altro), 3 bagni, cucina abitabile |
| Piano | Su più livelli, 2 totali |
| Tipo di costruzione | Signorile |
| Occupato | Libero |
| Numero posti auto | 2 |
Caratteristiche
Costi
| Prezzo | 1.100.000 € |
| Prezzo al m2 | 2.391 €/m2 |
Efficienza energetica
| Stato | Ottimo |
| Riscaldamento | Autonomo |
| Tipo Alimentazione Riscaldamento | Gpl |
| Classe energetica | G |
| Indice di prestazione energetica (IPE) | - |
Planimetrie
Indirizzo e mappa
Montespertoli
Annuncio senza mappa,
prova a chiedere la posizione all'inserzionista
prova a chiedere la posizione all'inserzionista
Calcolo mutuo
Prezzo di vendita:
Anticipo
20,00
Mutuo
80,00
Tasso: -+
Rata: 3.146 al mese
I risultati sono una stima indicativa basata sui dati inseriti e non costituiscono un’offerta finanziaria.
Inserzionista

Ag. Imm. SERGIO MONTAGNANI
Via D. Alighieri, 40, Montespertoli
Mostra Telefono
Mostra Cellulare
Chiama
CONTATTA

