Casa semi indipendente Via Treforni Paese tv, Paese
€ 230.000
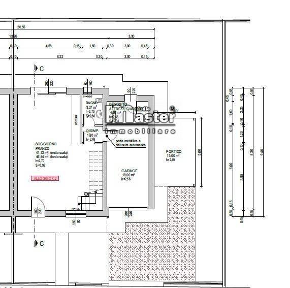
A Paese vendesi villa abbinata al grezzo avanzato su due comodi livelli fuori terra di 180mq. con bel giardino privato di 200mq. La villetta bifamiliare in vendita a Paese si compone al piano terra da un'ampia zona giorno di 42mq. con possibilità di avere la cucina abitabile, disimpegno, bagno, garage fuori terra con adiacente un ricovero attrezzi da giardino, oltre ad un bel portico esterno da poter sfruttare da posto auto coperto o per pranzi e cene all'aperto. L'abbinata a Paese al piano primo è composta da 4 camere di cui 2 matrimoniali di oltre 15 e 14 mq. mansardate con travi a vista sbiancate e 2 camere singole di 9 e 10mq con solaio normale, un bagno padronale ed un guardaroba/cabina armadi privata per la camera padronale ed un pratico poggiolo di 8 mq. La villa bifamiliare viene consegnata al grezzo avanzato entro fine 2025 con cappotto esterno all'avanguardia. Disponibile pure una villetta bifamiliare unita dai garage con consegna per l'estate 2026 al grezzo avanzato. L'immobile si trova in bella zona residenziale tranquilla a due passi dai servizi. Ulteriori informazioni in agenzia. Rif.CB375
Dati principali
| Riferimento | CB375 |
| Data annuncio | 15/05/2025 |
| Contratto | Vendita |
| Tipologia | Casa semi indipendente |
| Superficie | 180 m2 |
| Locali | più di 5 (4 camere da letto, 5 altro), 2 bagni, cucina angolo cottura |
| Piano | Su più livelli, 2 totali |
| Tipo di costruzione | Signorile |
| Occupato | Libero |
| Box auto | Singolo |
| Numero posti auto | 1 |
Caratteristiche
Costi
| Prezzo | 230.000 € |
| Prezzo al m2 | 1.278 €/m2 |
Efficienza energetica
| Stato | Scarso |
| Riscaldamento | Assente |
| Tipo Alimentazione Riscaldamento | Altro |
| Classe energetica | Immobile esente da certificazione energetica |
Planimetrie
Indirizzo e mappa
Via Treforni Paese tv, Paese
Annuncio senza mappa,
prova a chiedere la posizione all'inserzionista
prova a chiedere la posizione all'inserzionista
Calcolo mutuo
Prezzo di vendita:
Anticipo
20,00
Mutuo
80,00
Tasso: -+
Rata: 658 al mese
I risultati sono una stima indicativa basata sui dati inseriti e non costituiscono un’offerta finanziaria.
Inserzionista

Studio Master Immobiliare ag.Paese
Via della Resistenza n.2, Paese
Mostra Telefono
Mostra Cellulare
Chiama
CONTATTA

