Appartamento Piazza Vittorio Emanuele 17, Campobasso
Trattativa riservata
L'immobile, con una superficie totale di 250 metri quadrati, si presenta in uno stato attuale libero al rogito, pronto per essere abitato.
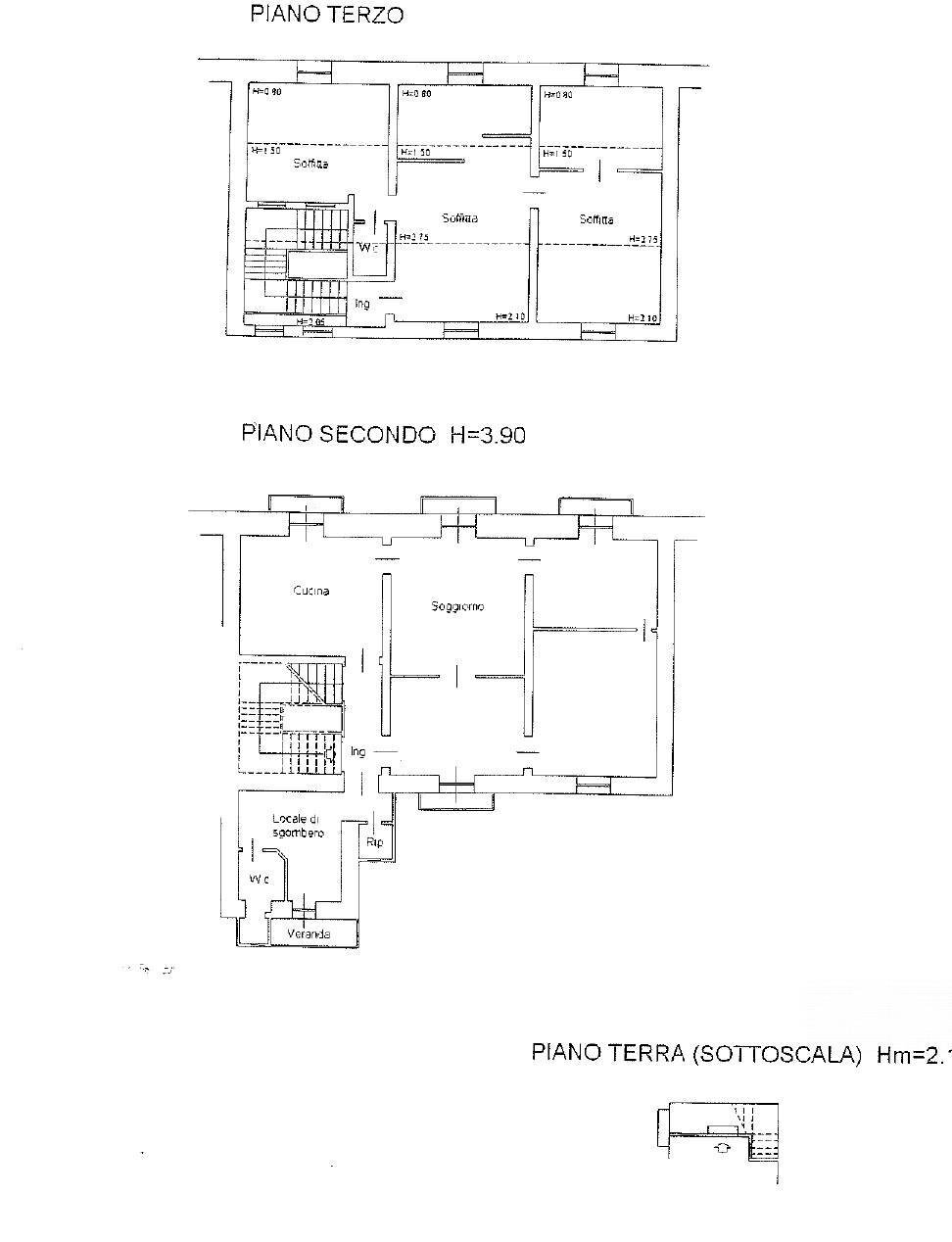
L'ingresso principale si apre su un ampio e luminoso soggiorno, che è collegato alla cucina abitabile, perfetta per chi ama cucinare e trascorrere momenti conviviali con la famiglia e gli amici.La zona notte è composta da 5 camere da letto, ideali per ospitare una famiglia numerosa o per chi desidera avere uno spazio extra per gli ospiti.
Ci sono inoltre 3 bagni, tutti finemente rifiniti e dotati di ogni comfort. L'appartamento si presenta in ottimo stato di conservazione, grazie a continui interventi di manutenzione e cura.
Il balcone presente offre uno spazio all'aperto dove godersi il panorama della città e rilassarsi all'aria aperta.Il riscaldamento è autonomo, con un sistema a metano che garantisce un'ottima efficienza energetica e costi contenuti.
In sintesi, questo appartamento in vendita a Campobasso è la soluzione ideale per chi cerca un'abitazione spaziosa, luminosa e ben posizionata, pronta per essere abitata e arricchita dal proprio gusto personale. Contatta subito l'agenzia immobiliare per organizzare una visita e scoprire di persona tutte le sue caratteristiche.
Rif: H195
L'ingresso principale si apre su un ampio e luminoso soggiorno, che è collegato alla cucina abitabile, perfetta per chi ama cucinare e trascorrere momenti conviviali con la famiglia e gli amici.La zona notte è composta da 5 camere da letto, ideali per ospitare una famiglia numerosa o per chi desidera avere uno spazio extra per gli ospiti.
Ci sono inoltre 3 bagni, tutti finemente rifiniti e dotati di ogni comfort. L'appartamento si presenta in ottimo stato di conservazione, grazie a continui interventi di manutenzione e cura.
Il balcone presente offre uno spazio all'aperto dove godersi il panorama della città e rilassarsi all'aria aperta.Il riscaldamento è autonomo, con un sistema a metano che garantisce un'ottima efficienza energetica e costi contenuti.
In sintesi, questo appartamento in vendita a Campobasso è la soluzione ideale per chi cerca un'abitazione spaziosa, luminosa e ben posizionata, pronta per essere abitata e arricchita dal proprio gusto personale. Contatta subito l'agenzia immobiliare per organizzare una visita e scoprire di persona tutte le sue caratteristiche.
Rif: H195
Dati principali
| Riferimento | H195 |
| Data annuncio | 13/05/2025 |
| Contratto | Vendita |
| Tipologia | Appartamento |
| Superficie | 250 m2 |
| Locali | più di 5 (5 camere da letto, 2 altro), 3 bagni, cucina abitabile |
| Piano | 2 di 3 totali |
| Tipo di costruzione | Signorile |
| Occupato | Libero |
| Box auto | Assente |
Costi
| Prezzo | Trattativa riservata |
Efficienza energetica
| Stato | Ottimo |
| Riscaldamento | Autonomo |
| Classe energetica | F |
| Indice di prestazione energetica (IPE) | - |
Planimetrie
Indirizzo e mappa
Piazza Vittorio Emanuele
17, Campobasso
Annuncio senza mappa,
prova a chiedere la posizione all'inserzionista
prova a chiedere la posizione all'inserzionista
Inserzionista

Centro Affari
via Principe di Piemonte n. 33, Campobasso
Mostra Telefono
Chiama
CONTATTA

