Capannone Via Donatello, Civita Castellana
€ 280.000
Proponiamo in vendita un'unità produttiva artigianale/commerciale di 387 mq, sviluppata su tre livelli fuori terra e uno seminterrato, caratterizzata da copertura a botte e da prospetto con rivestimento con elementi quadrati.
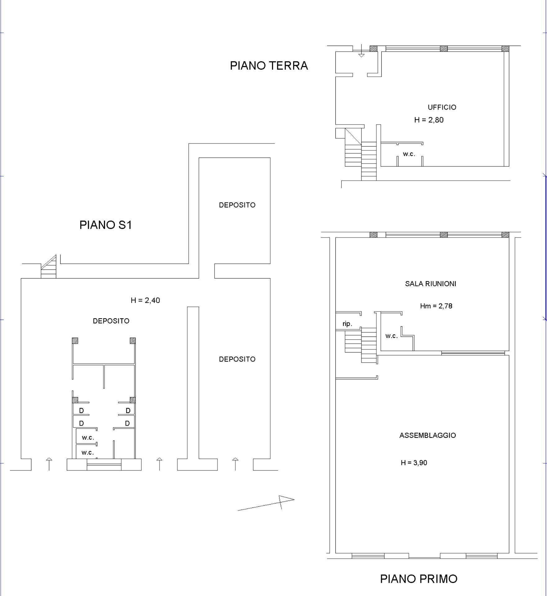
Il capannone si compone di tre ingressi, tre depositi di 92 mq e servizi igienici al piano seminterrato, di altezza interna pari a 2,40 mt.
E' presente un ufficio di 98 mq con ulteriore ingresso e servizi igienici al piano terra, di altezza 2,80 mt. Al piano primo, invece, sono presenti un locale di 86 mq e altezza 3,90 mt, una sala riunioni, un ripostiglio, un ufficio di 111 mq e un servizio igienico.
L'unità immobiliare fa parte di un più ampio complesso formato da capannoni adiacenti, realizzati in periodi diversi e con diverse caratteristiche architettoniche. Per ulteriori informazioni o appuntamenti per sopralluoghi contattare il broker Daniel Meloni al 338-7596505
Il capannone si compone di tre ingressi, tre depositi di 92 mq e servizi igienici al piano seminterrato, di altezza interna pari a 2,40 mt.
E' presente un ufficio di 98 mq con ulteriore ingresso e servizi igienici al piano terra, di altezza 2,80 mt. Al piano primo, invece, sono presenti un locale di 86 mq e altezza 3,90 mt, una sala riunioni, un ripostiglio, un ufficio di 111 mq e un servizio igienico.
L'unità immobiliare fa parte di un più ampio complesso formato da capannoni adiacenti, realizzati in periodi diversi e con diverse caratteristiche architettoniche. Per ulteriori informazioni o appuntamenti per sopralluoghi contattare il broker Daniel Meloni al 338-7596505
Dati principali
| Riferimento | CBI019-395-29002 |
| Data annuncio | 13/05/2025 |
| Contratto | Vendita |
| Tipologia | Capannone |
| Superficie | 400 m2 |
| Occupato | Libero |
Costi
| Prezzo | 280.000 € |
| Prezzo al m2 | 700 €/m2 |
Efficienza energetica
| Stato | Ottimo |
| Tipo Alimentazione Riscaldamento | Altro |
| Classe energetica | G |
| Indice di prestazione energetica (IPE) | - |
Planimetrie
Indirizzo e mappa
Via Donatello, Civita Castellana
Annuncio senza mappa,
prova a chiedere la posizione all'inserzionista
prova a chiedere la posizione all'inserzionista
Calcolo mutuo
Prezzo di vendita:
Anticipo
20,00
Mutuo
80,00
Tasso: -+
Rata: 801 al mese
I risultati sono una stima indicativa basata sui dati inseriti e non costituiscono un’offerta finanziaria.
Inserzionista

Coldwell Banker FRG & Partners
Viale dei Navigatori 68, Tarquinia
Mostra Telefono
Mostra Cellulare
Chiama
CONTATTA

