Capannone Strada 151 Ortana snc, Soriano nel Cimino
€ 337.000
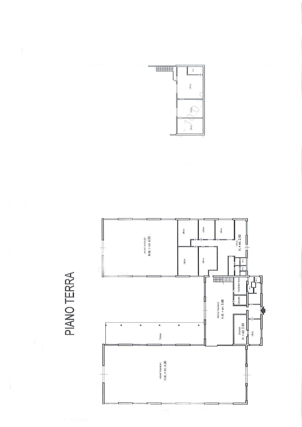
Vendiamo nelle emmediate vicinanze della superstrada viterbo/Orte un capannone produttivo e agricolo composto da tre aree per la lavorazione con altezza interna di 4,30 m e di 5,98 m. La zona adibita ad uffici si sviluppa su due livelli (piano terra e primo), oltre a questo ci sono dei locali accessori, una tettoia e un'ampia area esterna recintata.
Il fabbricato insiste all'interno di un lotto di terreno di circa 5.700 mq. Il tetto di tutto l'edificio è stato recentemente completato rifatto.
Per ulteriori informazioni o appuntamenti per sopralluoghi contattare il broker Daniel Meloni al 338 75 96 505
Il fabbricato insiste all'interno di un lotto di terreno di circa 5.700 mq. Il tetto di tutto l'edificio è stato recentemente completato rifatto.
Per ulteriori informazioni o appuntamenti per sopralluoghi contattare il broker Daniel Meloni al 338 75 96 505
Dati principali
| Riferimento | CBI019-395-28880 |
| Data annuncio | 13/05/2025 |
| Contratto | Vendita |
| Tipologia | Capannone |
| Superficie | 1100 m2 |
| Occupato | Libero |
| Box auto | Singolo |
| Numero posti auto | 10 |
Costi
| Prezzo | 337.000 € |
| Prezzo al m2 | 306 €/m2 |
Efficienza energetica
| Stato | Discreto |
| Tipo Alimentazione Riscaldamento | Altro |
| Classe energetica | G |
| Indice di prestazione energetica (IPE) | - |
Planimetrie
Indirizzo e mappa
Strada 151 Ortana
snc, Soriano nel Cimino
Annuncio senza mappa,
prova a chiedere la posizione all'inserzionista
prova a chiedere la posizione all'inserzionista
Calcolo mutuo
Prezzo di vendita:
Anticipo
20,00
Mutuo
80,00
Tasso: -+
Rata: 964 al mese
I risultati sono una stima indicativa basata sui dati inseriti e non costituiscono un’offerta finanziaria.
Inserzionista

Coldwell Banker FRG & Partners
Viale dei Navigatori 68, Tarquinia
Mostra Telefono
Mostra Cellulare
Chiama
CONTATTA

