Casa semi indipendente Filippo Corridoni, Cervia
€ 490.000
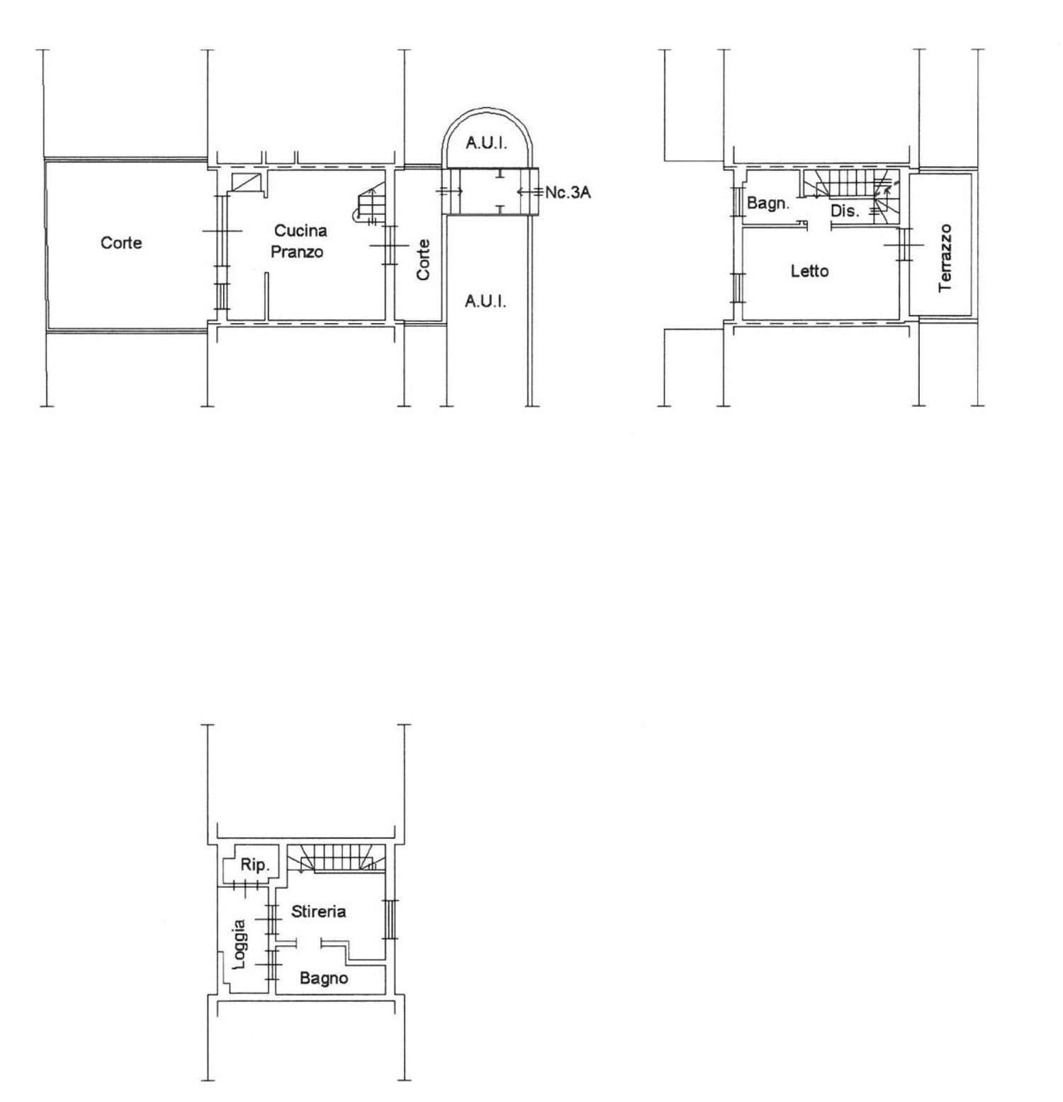
Vendiamo a Milano Marittima porzione di villa, a due passi dal mare e dal centro, in posizione tranquilla. L'ingresso indipendente ci conduce ad un luminoso soggiorno con angolo cottura con accesso diretto al giardino ideale per pranzare e cenare all'aperto. Proseguendo le scale si accede al piano primo in cui troviamo la camera da letto matrimoniale dotata di sfogo esterno con affaccio sulla pineta, servita da un comodo bagno con box doccia. Al secondo piano troviamo una seconda camera da letto con un ulteriore bagno con box doccia finestrato. Completa la soluzione un posto auto coperto al piano interrato ed un posto auto scoperto al piano terra. Soluzione ideale per chi cerca ampi spazi e indipendenza nel cuore di Milano Marittima.
Dati principali
| Riferimento | BRB603 |
| Data annuncio | 13/05/2025 |
| Contratto | Vendita |
| Tipologia | Casa semi indipendente |
| Superficie | 90 m2 |
| Locali | 3 (3 altro), 2 bagni |
| Piano | Terra |
Costi
| Prezzo | 490.000 € |
| Prezzo al m2 | 5.444 €/m2 |
Efficienza energetica
| Stato | Buono |
| Tipo Alimentazione Riscaldamento | Altro |
| Classe energetica | Immobile esente da certificazione energetica |
Planimetrie
Indirizzo e mappa
Filippo Corridoni, Cervia
Annuncio senza mappa,
prova a chiedere la posizione all'inserzionista
prova a chiedere la posizione all'inserzionista
Calcolo mutuo
Prezzo di vendita:
Anticipo
20,00
Mutuo
80,00
Tasso: -+
Rata: 1.401 al mese
I risultati sono una stima indicativa basata sui dati inseriti e non costituiscono un’offerta finanziaria.
Inserzionista
Barbieri immobiliare Srl
Viale Volturno 27, Cervia
Mostra Telefono
Chiama
CONTATTA

